查看完整案例

收藏

下载

翻译
Compuesta por cientos de paneles de vidrio, una brillante y homogénea cáscara exterior es el rasgo principal del edificio Eichgut. La piel que envuelve e integra todo el volumen en forma de L protege las 90 viviendas de las cercanas vías del ferrocarril, al tiempo que sus paneles, serigrafiados con un delicado patrón perforado, funcionan como protectores solares. Situado frente a la estación principal de tren en el municipio suizo de Winterthur, a 24 kilómetros de Zúrich, el bloque vidriado de siete plantas es visible tanto por la noche, ya que se ilumina con aspecto de linterna, como por el día, cuando destaca por su brillo esmerilado. Todos los paneles, opacos hacia el exterior y sorprendentemente transparentes desde el interior, corren sobre raíles, lo que permite al usuario controlar su funcionamiento.
Esta envolvente continua cubre tanto los huecos como el muro de hormigón, garantizando así el aislamiento y la protección contra el ruido. El colchón térmico que se crea entre estas dos capas es el elemento fundamental de una innovadora estrategia pasiva de ahorro capaz de consumir un 80 % menos de energía: dada la escasa pérdida de calor del muro exterior, el sistema de ventilación de la fachada puede funcionar también como calefacción.
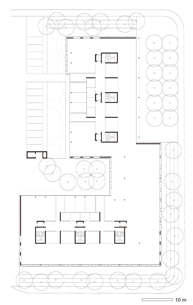
Debido a la geometría de la parcela, la sección transversal del bloque en forma de L es muy amplia y las viviendas atraviesan el ancho del edificio desde la calle hasta el patio interior. La estructura, formada por muros transversales, acompaña esta disposición y permite crear espacios pasantes de 27 metros de largo. Los armarios, la cocina y las piezas sanitarias se utilizan para delimitar las diferentes zonas que también se pueden separar mediante puertas correderas.
En lugar de usar calefacción central convencional, las viviendas se climatizan por medio de un sistema de aire descentralizado con el objetivo de mantener la temperatura ambiente lo más estable posible (al menos 20 grados centígrados). Sin embargo, los residentes pueden controlar la temperatura de manera individual así como abrir las ventanas. Para ahorrar espacio y facilitar el mantenimiento, el centro de control técnico de cada unidad —formado por un dispositivo de ventilación compacto con un intercambiador de calor, una bomba integrada y un depósito de agua caliente— está situado en el espacio común junto a las escaleras. Todas estas estrategias energéticas, que cumplen el estándar suizo Minergie-P, se complementan con paneles fotovoltaicos en la cubierta que alimentan la red pública...
客服
消息
收藏
下载
最近









