查看完整案例


收藏

下载

翻译
Tipología:Colectiva Vivienda
Material:Metal
Ciudad:Madrid
País:España
Fotógrafo:Íñigo Bujedo
Situado en el barrio madrileño de Adelfas, en el extremo sur del distrito de Retiro, muy próximo a las estaciones de Atocha y Méndez Álvaro, el proyecto nace como resultado de un concurso restringido promovido por Acciona Inmobiliaria, y consiste en un contundente volumen que contiene 98 viviendas, inicialmente destinadas a régimen de alquiler.
El edificio se configura como una pieza totalmente abstracta cuando es percibida desde el exterior, al estar alineada con la M-30. Esta condición de borde urbano que define el bloque, cuya presencia se hace visible desde las vías en una zona caracterizada por el intenso tráfico que la circunda —dada su ubicación junto a la autopista de circunvalación y la autovía A3—, ha sido una de las premisas fundamentales que ha llevado a proyectar un volumen claro y rotundo, un objeto blanco elemental que, borrando todo detalle, no distorsione esta percepción que se tiene del edificio instantánea, veloz y fugaz. El acabado de las fachadas, envueltas en chapa metálica estriada de color blanco, busca el matiz que la rica y nítida luz característica de Madrid otorga a los edificios.
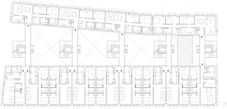
Partiendo de la consideración de que tanto la vivienda como su agrupación requieren una refinada atención a la escala doméstica, el proyecto opta por explorar y modificar la tipología zonal de bloque cerrado con patios interiores, y lo hace mediante la disposición de dos edificios a distintas alineaciones, separados entre sí por una calle interior o ‘grieta’ abierta hacia el asoleamiento y las ventilaciones, con el fin de garantizar las mejores condiciones pasivas en todas las viviendas. Asimismo, esta eficaz grieta se convierte en el espacio público compartido de acceso y de relación entre los residentes, una cualidad que queda claramente patente en la sección del edificio. Accediendo desde la plaza pública, protegida del tráfico, los vecinos pasan por debajo del bloque estrecho hasta ese jardín central compartido. En los espacios interiores, la madera construye la piel de carácter doméstico y amable que la escala reclama, frente a la solución industrial y genérica de los cerramientos exteriores.
Diseñado con el propósito de lograr reducir la demanda energética a mínimos, el proyecto es pionero en temas como la gestión de agua, la energía incorporada de los materiales y su procedencia, o las emisiones de CO2 derivadas del transporte en obra, contribuyendo además a mejorar la biodiversidad de la zona a través del análisis, estudio e implantación de nuevas especies vegetales.
客服
消息
收藏
下载
最近











