查看完整案例

收藏

下载

翻译
Tipología:Centro cívico Rehabilitación Cultura / Ocio
Fecha:2017
Ciudad:Barcelona
País:España
Fotógrafo:Aitor Estévez Olaizola
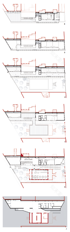
La villa Urania es una pequeña residencia de finales del siglo —hogar del astrónomo Josep Comas i Solà (1868-1937)—, última muestra de la ciudad-jardín del Farró en el distrito de Sarrià-Sant Gervasi. La redensificación del barrio dejó el edificio y el pequeño jardín circundante encajonado entre dos grandes medianeras. A través de un concurso público surgió el proyecto del Centro Cívico, que asume el reto de recuperar la villa y los jardines incorporándolos a un edificio de nueva construcción.
Se trata de un equipamiento sociocultural de carácter público que fomenta el tejido asociativo y participativo. La mayor parte del programa está formado por espacios flexibles de distintos tamaños para actividades de todo tipo. Espacios dinámicos y abiertos que se adaptan fácilmente a la diversidad de usos que los vecinos y las entidades del barrio necesitan en cada momento. La fuerte presencia de la villa establece los niveles de planta baja y planta primera de todo el conjunto. Un doble acceso a la parcela permite comunicar las dos calles colindantes. Un juego de rampas y una escalera exterior resuelven la comunicación de todo el edificio. La escalera es un elemento ligero y permeable que mediante un amplio patio da aire a las fincas vecinas.
Una vez rehabilitada, la villa se convierte en el centro neurálgico del conjunto. La ampliación se concibe como un edificio alto y estrecho orientado a sureste, con una gran galería que climatiza de forma pasiva las zonas de encuentro y de actividades informales y las circulaciones. Este espacio intermedio funciona como un invernadero en los meses de invierno y como un umbráculo en verano, y actúa como colchón térmico al separar las zonas climatizadas del exterior, reduciendo la demanda energética. La fachada se adapta de forma automática a las condiciones exteriores. Sensores de temperatura interior actúan sobre la fachada de vidrio, abriéndola completamente cuando es necesario. Sondas exteriores miden la radiación solar actuando sobre las persianas replegables. La plantación interior proporciona una agradable sensación de frescor en verano, mientras que en invierno reduce su volumen para captar la radiación solar. La envolvente se ha diseñado para conseguir una transmitancia térmica baja, minimizar los puentes térmicos y lograr un nivel alto de estanqueidad.
Concebido como un edificio de consumo energético casi nulo (nZEB), el complejo, que ha obtenido la certificación LEED Platinum, es capaz de producir gran parte de la energía que necesita, y está construido con materiales de bajo impacto ambiental, renovables y de origen reciclado.
客服
消息
收藏
下载
最近











