查看完整案例

收藏

下载

翻译
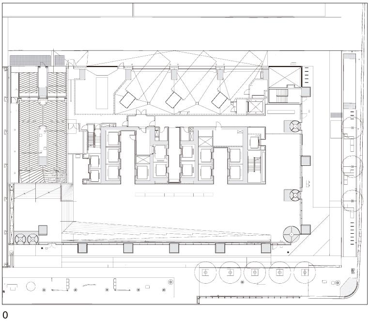
Calgary se ha desarrollado según el patrón característico de otras grandes ciudades norteamericanas: un downtown denso y compacto dominado por torres corporativas y una periferia residencial extensa y dispersa. Esta configuración fomenta el uso del coche y da lugar a centros urbanos que fuera del horario laboral se quedan vacíos e inactivos. La Telus Sky Tower ofrece un análisis crítico de este esquema y propone una combinación en altura de oficinas y vivienda que enriquezca el corazón de la ciudad.
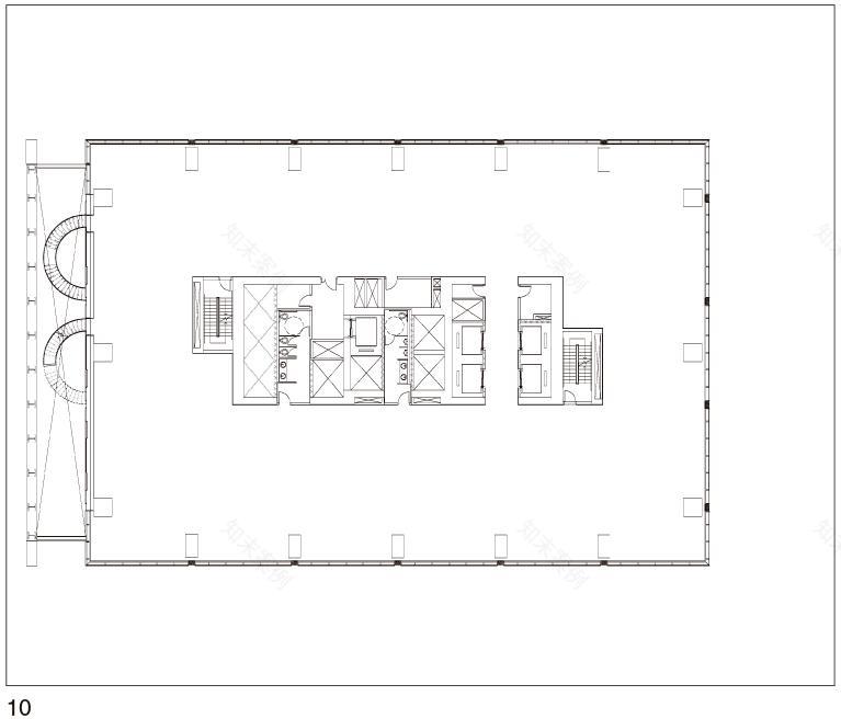
El proyecto expresa esta idea mediante la conformación de su volumen. Las oficinas, que ocupan una superficie rectangular, se colocan en la parte baja, y a medida que la torre asciende, la planta se retranquea paulatinamente y se estrecha para adaptarse a las dimensiones del programa residencial. Este gesto se enfatiza alineando las viviendas con el eje diagonal del rectángulo de las oficinas, lo cual genera un perfil sinuoso que dota a la construcción de un carácter icónico. La envolvente contribuye a subrayar esta transición programática, de modo que la fachada inferior, acristalada y plana, se descompone progresivamente en los balcones abiertos de los apartamentos. El edificio se corona con una cubierta ajardinada, y a nivel de calle, se abre con un atrio que lo conecta con el bloque colindante.
客服
消息
收藏
下载
最近

















