查看完整案例

收藏

下载

翻译
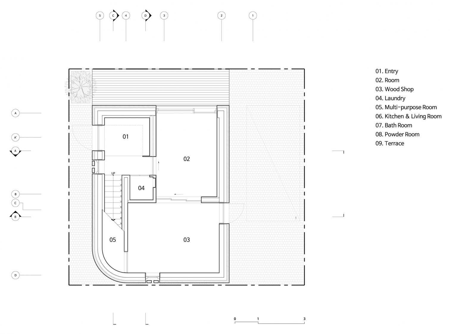
Diseñada por el estudio stpmj, fundado por Seung Teak Lee y Mi Jung Lim, con oficinas en Nueva York y Seúl, esta casa vertical se sitúa en una pequeña parcela de la capital surcoreana, una ciudad con alta densidad de población. El programa apila las diferentes zonas en función de las necesidades de los cinco miembros que componen la familia: una pareja con tres niñas. El volumen envuelto con ladrillos de tonos rojizos está definido por las líneas curvas que generan el voladizo del aparcamiento, el muro inclinado que comienza en la cuarta planta donde se encuentra una amplia terraza, y las aberturas de diferentes tamaños en cada elevación, que en la fachada sur forman celosías. El primer nivel está ocupado por un taller para la fabricación de muebles y una sala de juegos; el segundo incluye espacios comunes como la sala de estar, la cocina y el comedor; el tercero, el dormitorio principal, la habitación de la niña más pequeña y una biblioteca; el cuarto contiene un dormitorio y un baño, mientras que la habitación de la hermana mayor se encuentra en el quinto piso.
客服
消息
收藏
下载
最近



















