查看完整案例

收藏

下载

翻译
Dedicado a la figura del pensador chino Wang Jing —erudito de la corte y uno de los autores de la Enciclopedia Yongle, escrita durante la dinastía Ming—, el memorial se inserta en la trama urbana tradicional de la ciudad de Wang, deteriorada y amenazada debido al abandono y la creciente presión de la industria.
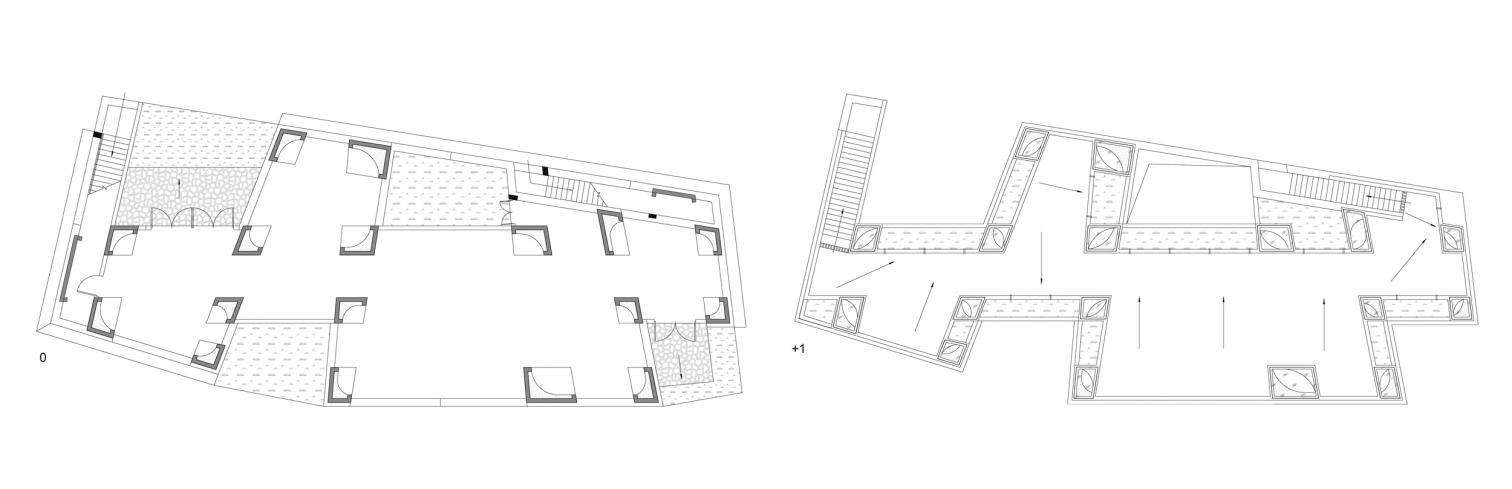
Con el objetivo de integrar el proyecto en su contexto inmediato se llevan a cabo dos estrategias diferentes. La primera consiste en fragmentar el conjunto en una serie de volúmenes, de tal forma que el edificio se adapte a la escala menuda del tejido existente, compuesto por pequeñas construcciones de tres o cuatro alturas. La segunda está basada en el empleo de materiales y técnicas constructivas similares a los de las construcciones de su entorno. Construido con muros de tierra apisonada, el pabellón contiene 17 columnas huecas de hormigón coronadas por lucernarios y decoradas con nichos de piedra con relieves que presentas momentos clave en la vida de Wang Jing. Por su parte, la cubierta transitable se transforma en un espacio multifuncional, además de en un punto de observación con vistas de la ciudad.
Inspirados en un sistema de calefacción vernáculo, los lucernarios crean una atmósfera de recogimiento, solemnidad y espiritualidad, al mismo tiempo que funcionan como puntos focales del edificio y sirven de guía a los visitantes durante el recorrido.
客服
消息
收藏
下载
最近








