查看完整案例

收藏

下载

翻译
Con objeto de convertirse en modelo de referencia en la remodelación urbana sostenible, promoviendo la innovación arquitectónica, social y energética en las ciudades, Marsella desarrolla desde hace algunos años el mayor programa de renovación en Europa, capaz de proporcionar un banco de pruebas para proyectos de ciudades sostenibles, adaptadas a los factores climáticos, geográficos, culturales, humanos y económicos específicos de la región mediterránea. Dentro de este programa, el proyecto Smartseille es una ‘eco-ciudad’ de 2,7 hectáreas al norte de la ciudad, que incluye 60.000 metros cuadrados de oficinas, viviendas y locales comerciales, con capacidad para casi 4.000 personas. Además del uso de materiales sostenibles y métodos de construcción limpios, Smartseille implementa soluciones de ahorro energético como la talasotermia —con circuitos de agua de mar— o un sistema de solidaridad energética que permite el intercambio de calor entre oficinas y viviendas, proponiendo asimismo conceptos como el co-uso del espacio o la eco-movilidad.
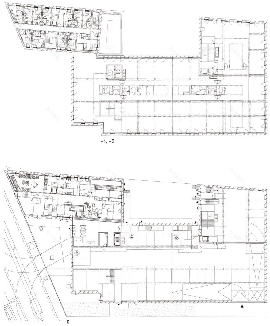
El primer conjunto en esta ‘supermanzana’ es un complejo de nueve plantas cuya fachada está vestida con un gran
vertical compuesto por 1.600 piezas de hormigón blanco de tres metros de altura.
客服
消息
收藏
下载
最近













