查看完整案例

收藏

下载

翻译
Tipología:Paisajismo / Urbanismo Plaza Deporte
Fecha:2008 - 2012
Ciudad:Chelles
País:Francia
Fotógrafo:Julien Lanoo
Marca:BETEM
Situado entre el parque Émile Fouchard, el ayuntamiento, una escuela de secundaria y el museo de arte contemporáneo –formado por dos iglesias reconvertidas–, el gimnasio se inserta en un contexto heterogéneo tanto desde el punto de vista formal como funcional. Su situación en pleno casco histórico, entre los edificios representativos de los poderes de la ciudad, dota al gimnasio de una fuerte carga simbólica. La principal estrategia de proyecto consiste en la reordenación del tejido urbano y en la cualificación del espacio público con la nueva infraestructura deportiva como elemento articulador. El volumen adopta una geometría ortogonal sencilla, paralela a las fachadas del ayuntamiento y de la escuela, que organiza el espacio urbano, dota a la ciudad de una gran explanada pública y conecta el parque con el centro de arte contemporáneo.
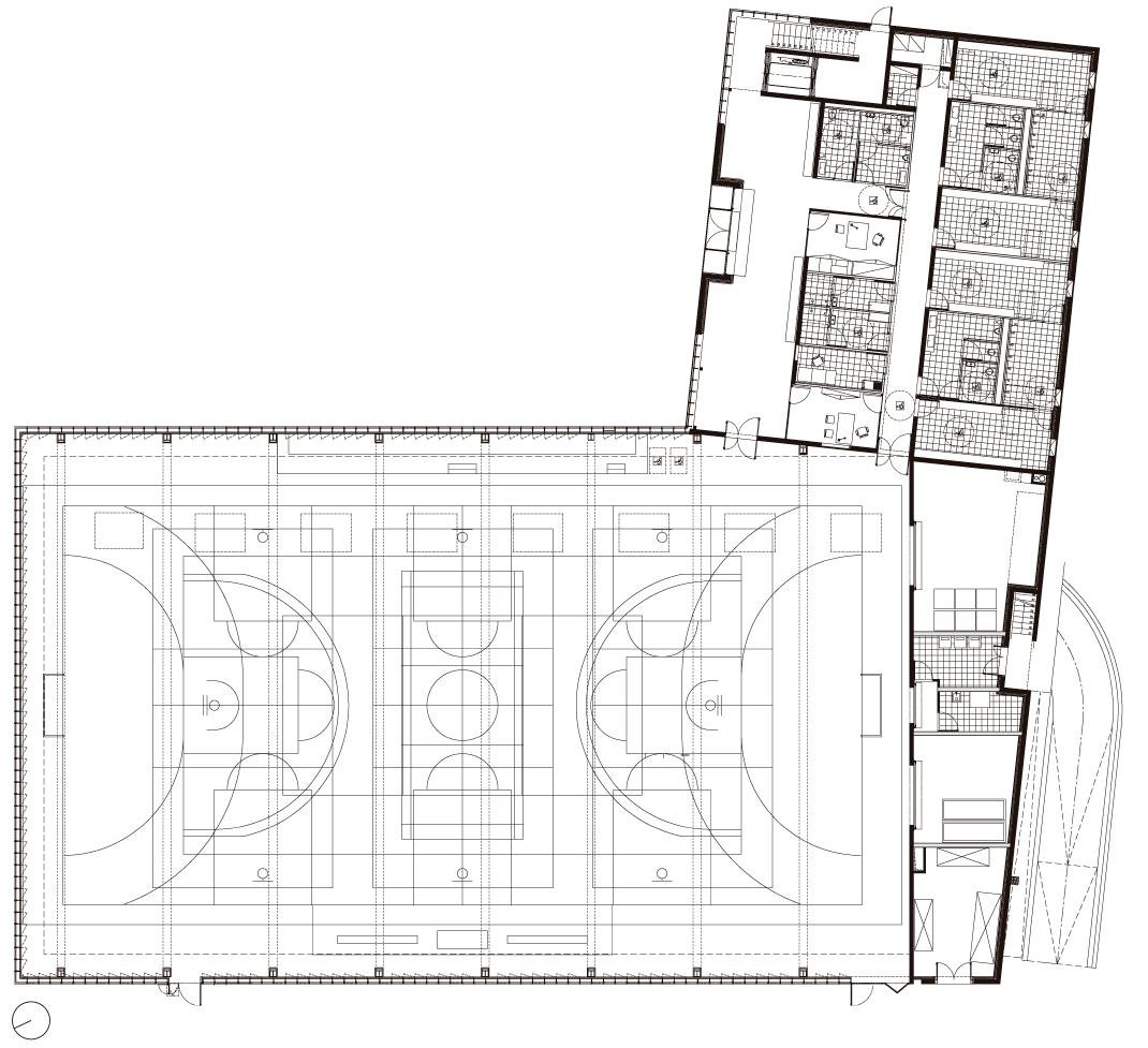
El programa se divide en tres partes diferenciadas: pistas deportivas (1.100 m²); espacios asociados (289 m²); y administración, logística y servicios (406 m²). Las proporciones y dimensiones del gimnasio, especialmente su altura, se corresponden con las de los edificios que lo rodean. La fachada transparente permite, desde el interior, una visión caleidoscópica de la plaza y, al mismo tiempo, rompe con la tipología tradicional de caja opaca ajena al contexto típica de los edificios deportivos. La ambigüedad del cerramiento compuesto por dos capas, una de vidrio al exterior y otra de cobre al interior –que refuerza el efecto reflexivo del primero hacia el exterior, a la vez que lo protege de golpes en su cara interior–, contrasta con la sencilla y rotunda geometría del edificio. Durante el día, gracias a las propiedades del vidrio y del cobre, el volumen se diluye al reflejar la fachada de los edificios vecinos, lo que da lugar a un cerramiento cambiante en función de la posición del observador. En cambio, por la noche la fachada se transparenta y permite así vislumbrar el interior del complejo deportivo, al tiempo que se ilumina como un fanal en el espacio público.
Desde el punto de vista bioclimático, el gimnasio destaca por su alto grado de eficiencia energética. Gracias a la inercia térmica de sus muros de hormigón y a un sistema de enfriamiento nocturno se reduce la demanda de energía para un acondicionamiento interior adecuado. Además, el edificio está conectado a la red de calefacción geotérmica municipal, recoge el agua de lluvia para usos sanitarios y emplea luminarias de alto rendimiento. Todo ello le ha valido la calificación de Very High Energy Performance (THPE) concedida por la Unión Europea.
客服
消息
收藏
下载
最近











