查看完整案例

收藏

下载

翻译
La importancia de Barcelona como destino turístico ha hecho crecer significativamente la llegada de cruceros al puerto, por lo que la Autoridad Portuaria decidió destinar el antiguo muelle de contenedores, el Moll Adossat, a ubicar las terminales de las diversas compañías que operan en la ciudad.
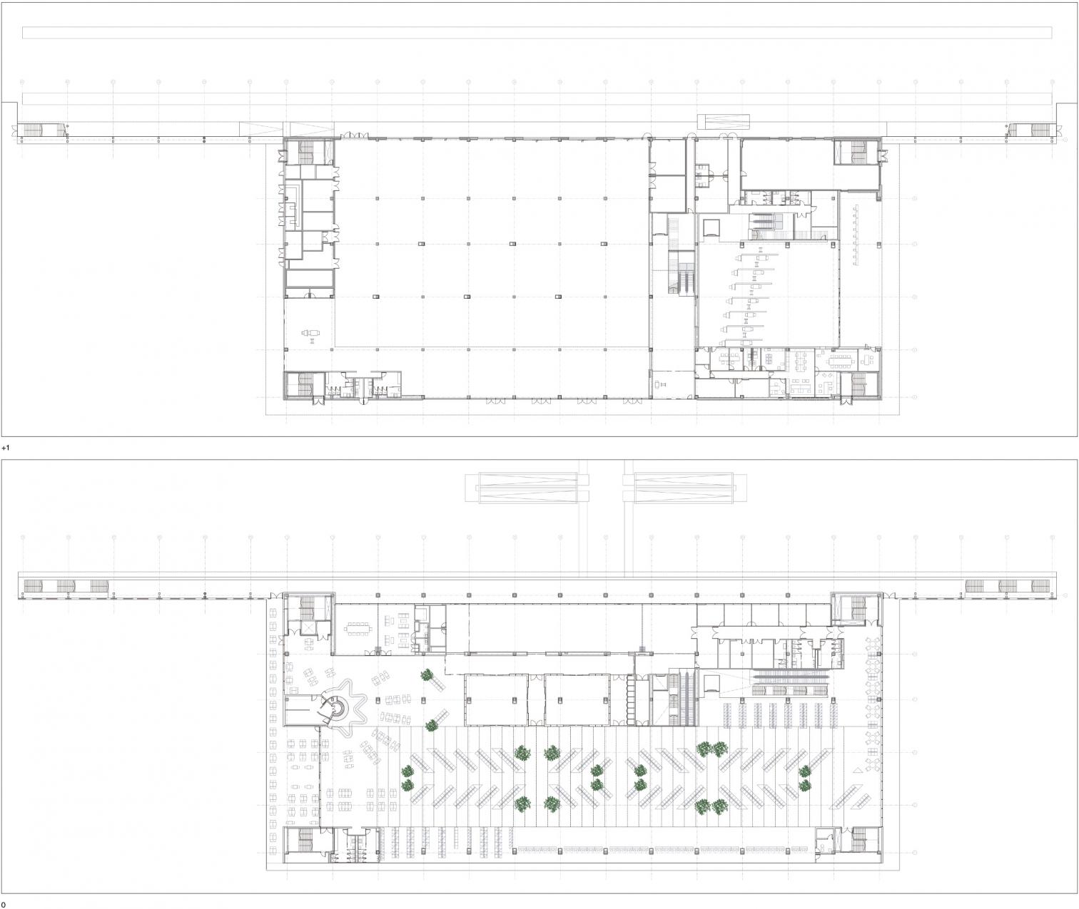
En la Terminal Helix, el ámbito exterior se organiza en dos áreas de tráfico bien diferenciadas: la de embarque al norte y la de desembarque al sur. La implantación y los accesos del edificio responden a esta disposición. Con dos alturas y planta rectangular de 130x65m, el edificio tiene adosada en planta primera una terraza de 175m de largo que recoge las pasarelas de conexión con el buque, separado 25m.
El programa público se desarrolla básicamente en la planta primera, a la que se accede a través de un gran vestíbulo. En ella se realizan las operaciones de facturación, espera y embarque. La sala principal, con una crujía central de 12x130m, se ilumina mediante lucernarios. La planta baja, además del acceso y salida, alberga la zona de recogida de maletas. Los acabados remarcan la separación entre plantas: hormigón prefabricado ranurado de color oscuro en la inferior, y aluminio en la superior. Los extremos del edificio se rematan con porches y con terrazas cubiertas que protegen a los pasajeros.
客服
消息
收藏
下载
最近














