查看完整案例

收藏

下载
案例简介
Case description
业主决定不放过自己,看不惯精装就改造一下吧
-
背景:我们新案是精装房改造
业主对房间以及功能区的需求是主卧+男孩房+女孩房+书房+影视厅+大岛台(考虑家中聚会需求),并且偏好设计感鲜明的家
业主的品牌意识强,追求极高质感的物件
-
设计想法:
设计和人的关系,是设计师需要平衡与深究的一个点
我们重组或打散这些空间,来叙述某种美好
我们侧重“炫、酷”的氛围打造,所使用的的物件大气、稳重感强,
材质选择、造型搭配等,都不营造奢侈感
简单点说,这就是一种布置的哲学
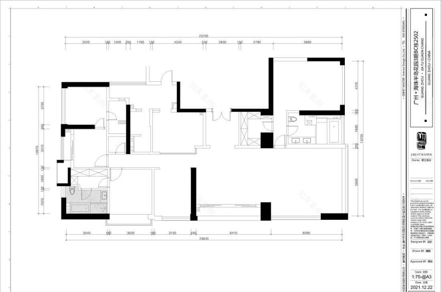
改造前:
1.原先的空间规划与生活需求、习惯不匹配
2.过道空间狭长
3.打拆后发现空间浪费率不少
改造后:
生活松弛舒展感+摩登都市利落劲
有展厅的艺术氛围
又带着自己的意识与棱角
看似划分住了界限
但结合光影,留住、模糊了时间与空间
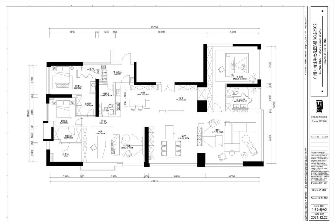
玄关:
我将它调整为两条线路(右手边进入厨房,左手边进入客厅)
这样便捷了居住者对空间的选择与使用
不仅如此,玄关壁灯选择也是别致典雅
空间的材质性在光的演绎下,表达出丰富的表情
戏剧之秘境 总是充满未知与惊喜
如果把这空间比作人
那玄关处能感受到这定是位拥有有趣灵魂的绅士
灰色空间下那盏壁灯散出盈盈光芒,温暖着归家的疲惫身躯
客厅处的设计摆放像极了童心未泯的成人
材料不同的单品穿插其间,仿佛跳跃了时空
改造前:
这是精装房,在厅堂落地窗处远眺,可以看到对面风光
房间处则是紧挨,部分房间的光线比较昏暗
改造后:
1.空间优化
客厅电视背景墙放在餐厅连接处,且用悬空电视背景墙
满足生活刚需的前提下,不对空间通透性做减法
做法:
客厅电视背景墙放在餐厅连接处,且用悬空电视背景墙
满足生活刚需的前提下,不对空间通透性做减法
客厅优化
业主会经常邀约朋友
这样一来,访客空间与家庭成员的活动空间可能不交叉
我们需要预留相对适宜的空间
能满足社交的同时,家人活动也可不受限制
用不同材质的沙发单品代表人类不断生长的欲望,
他们的相互碰撞,冲击却又丰富着视觉感受
这也是我们在纷繁复杂的自然中得以自洽的逻辑体现
用不同材质的沙发单品代表人类不断生长的欲望,
玄关进来过到厨房,我们尽量是看到景观或者留白
干净整洁总能一秒舒心
但如果玄关面积小、或者是没有引导性
我建议是:调整
将中规中矩的原平面解构、分离、再萃取
组合成一种全新的空间体验。
玄关通过对直观视线的扰动
诠释了不同视角的“看与被看”
相互渗透之间,空间上的界限消弭。
做法:
将玄关两边墙体拆除,扩大玄关空间,做一字柜隔断
保证空间私密性同时,我们做双动线
访客动线与居住者活动能进行分离
配适现在人们的生活、社交习惯
-
客人直接玄关左转进入客厅
家人则是玄关右转进入中厨、岛台,进而至私人领域
中厨吊灯:FLOS
改造前
改造前:
精装房在拐角、柱子、凹凸位的处理上存在“可能隐藏”情况
(如图)插座做在墙边,这里大概有8公分的位置
精装施工为了实现统一持平目标,用墙包时全部给圈了起来
也就是说,本来还能有8公分宽度X长度的实际可用面积被浪费
餐厅:
我将许多充满趣味的元素转化融合于此处空间之中
具体表现在中厨处的大岛台向外悬空设计、不锈钢吧台椅、上方的FLOS吊灯
西厨的Specifictions and description吊灯,大小菱形组合成的简单造型设计牵引人心弦
中西厨处
我们似乎能看到觥筹交错的朋友聚会身影与烟火气息家的其乐融融画面
休闲区和过道优化
有些户型,难以避免过道过多、狭长的情况
可又想要更适合的光影、以及提升空间利用率
做法:
适当调整过道,充分利用过道空间
我们在这里是把过道墙拆除,
把封闭书房、次卧调整为休闲区和开放式书房
自客餐厅为始直至书房、休闲区
动与静之间形成有节奏的空间律动
清晰分明的功能区域又保证了空间本身的利用率。
以醇厚的摩卡棕为主调,
克制的配色与温柔细腻的材料质感构建出摩登的调性。
-
配饰在意趣盎然之间,
引人挖掘具象事物与抽象情感之间的共鸣。
结合空间平面的舒展,
设计打破了住宅空间寻常的刻板印象,
呈现出如艺术展厅的沉静感。
书房与影视厅:
我在这方面倾向将人与空间的关系进行深究
设计在趋向解决人体的实际问题同时,把知觉放大,让空间体验变得更流畅
因此我选择的CASSINA桌子是不规则形状的,不仅如此
我不用实体墙面封闭空间,而改用玻璃屏风来分开
卧室的优化
长过道会给人七弯八绕的空间拥堵感
卧室地方非常不建议有这种感觉
-
做法:
主卧衣帽间的部分空间给玄关,衣帽间与主卧合并,改成衣柜
中间用书桌隔断,又可用做化妆桌
这种简单又带上设计感的主卧,没有过多的装饰
小吊灯、软单椅,有一片空间来做自己想做的事
无论休憩还是放松亦或独处,一个词“舒服”概括
特意一整排橱柜几乎延伸至头顶打造
视觉上更为狭长开阔,让整个卧室更舒朗,空间一点不显逼仄
-
搭配金属床头柜,金色元素提升质感
木质弧形孔洞边几,木色进行装点及柔和空间直线线条刚硬感
卧室的白色和橱柜家具棕色撞色,这种配色大气
再加上暖木质一字形铺满的地板,奠定空间沉稳舒适,营造出厚度的港湾感
-
床头墙设计上,我们想到一物两用
我选用了一张造型别致的桌子进行摆放
桌子一侧内凹可摆艺术摆件,功能为梳妆台
但另一角度看去却是床头背景
极致使用空间同时与床铺形成深-浅-深的层次过渡
深色护墙这种岁月感,沉静感受缓和空间者起伏情感变化
结合不对称的床头布置,也将高级的低调优雅发挥淋漓
床旁一侧吊灯垂落而下
不需要浮夸的样式,点灯是温暖色彩映入瞳孔
结合落地窗外的平缓江水景色,空间写满静谧宁静
卧室是最好的休息和独处的空间
私人性特点让主卧设计更带情绪个性色彩
它安静、温馨的特征
在设计时我们尽量用减法摒弃多余的装饰
在卧室更宽敞舒适前提用加法
进行私人定制一套和生活习惯同步的空间
儿童房设计我们更关注“成长型”规划
在基础建设的前提下,我们进行适当的成长留白处理
小空间+成长留白设计→推荐上床下桌
一、上下床的优点
①上下床节省空间
充分利用了室内空间,让儿童房能多住人的同时也增加了孩子的活动空间
-
②楼梯可做收纳增加空间利用率
我们预留相对较多的收纳空间在儿童房内
上床下桌位置的楼梯,我们在阶梯、侧面都进行“橱柜式收纳”打造
为防触电,我们床位不做插座设计
不仅如此,我们进行上床下桌设计,床边装护栏保证孩子安全
同时床与上方的墙壁高度进行控制,不逼仄同时营造安全感
-
小贴士:家具尽可能少用合成木材,板材多用实木家具
涂漆也要注意是否用的环保水性漆,避免甲醛超标
孩子睡觉的床,高度最好30~40cm,再高掉下来就危险了
小贴士:家具尽可能少用合成木材,板材多用实木家具
涂漆也要注意是否用的环保水性漆,避免甲醛超标
孩子睡觉的床,高度最好30~40cm,再高掉下来就危险了
2.造型
儿童房设计我们尽量直线与弧线交错
从孩子的视角出发
兼顾到孩子的自信营造、专注力培养、兴趣培养和独立自理几个方面
我们需要根据孩子年纪进行适当留白
1.卫生间设计基本原则:干湿分离
常见的是2分离,尽量可以还是3分离的设计
即淋浴间、卫生间、洗漱间
三分离空间能在最大程度上做到卫生、干净、安全以及好打理
2.淋浴房设计
淋浴房独立是最最常见的干湿分离
我们有分享过一期卫生间设计,有具体讲解
小贴士:品牌玻璃尽可能选择质量好的钢化玻璃
消除安全隐患还可以制作外推门或者内外推门
以防家中幼儿、长辈发生意外不能及时施救
3.洗漱区外移
空间有限制的,咱们可以利用走廊空间进行洗漱间外移设计
如果考虑外移,洗漱区是需要在装修前规划好的,计算好尺寸解决上下水问题
卫生间窗帘的,我们选择铝合金百叶窗
它耐腐蚀性较强,防水性能佳的特点在卫生间处很是适用
极简现代的男孩房设计,简单安全的背后也是花了很多心思设计
内嵌式五金,施工需要预留好恰当位置
选择优质的五金配件,使用寿命长,后期清洁也轻巧
清醒与陷入
无论是设计语言,还是空间建构,我们都在试图营造一个新的叙事结构。
当空间中的火苗冉冉升起,随之而来的是空间交错的穿越感。暂别俗事,精神愉悦,周身溢满当年尼采转译的“酒神精神”。
主城中芯,珠江之上,兼收繁华城市的自然盛景。城市之下,涌动着一个充满张力的摩登之域。
我们希望它既满足业主生活中的诸多爱好,惬意自在,又不脱离住宅本身的属性。和窗外的景色相比,它基调温和。远离尘嚣,笃定地坐拥城市之繁华。
在隐藏着静谧的空间语言之中,生活与爱好充分交融,深入体验,皆是轻叩五感的舒适。
界限与渗透
将中规中矩的原平面解构、分离、再萃取,组合成一种全新的空间体验。
玄关通过对直观视线的扰动,诠释了不同视角的“看与被看”,相互渗透之间,空间上的界限消弭。
自客餐厅为始直至书房、休闲区,动与静之间形成有节奏的空间律动,清晰分明的功能区域又保证了空间本身的利用率。以醇厚的摩卡棕为主调,克制的配色与温柔细腻的材料质感构建出摩登的调性。配饰在意趣盎然之间,引人挖掘具象事物与抽象情感之间的共鸣。结合空间平面的舒展,设计打破了住宅空间寻常的刻板印象,呈现出如艺术展厅的沉静感。
都市生活,辗转至内心深处,是一种迷醉后精神上的自省。正如我们昔日地融入,或许是为了能在某些时刻,可以与它保持微妙而适当的距离。
舒展与暧昧
以情绪和欲望的积累为起点,理想的居住空间,包容着人们对生活的热望。
正如壁炉在有限的空间尺度下参与到整个形体建构中,赋予场所更多想象与趣味。
兼具了美观和功能,摩登和实用,颇具内涵且不矫饰。对于设计而言,能够灵活转换在不同生活模式间的住宅,视觉和心理感受都需要关照、呼应与过渡。我们选择将人性中的慵懒与探知的欲望碰撞糅合,在舒展和暧昧之间,感官上的愉悦互相加持,空间得以包容更多情绪。
摩登与隽永
今天的住宅,并不嵌套在五花八门的“风格”公式之下,更多的是对人内心本源欲望的唤醒,开启与居住者身心契合、且随生活脉络的延续而持续生长的隽永生命体。
时间的变化不以人的意识为转移,但在这里,时间有另一种生命。消解、重塑、熔断、显露、联结——本案层层递进的布局,像一波波浪涌,逐渐漫延开来,生活因此生动鲜活。在这样的空间中,一连串的动词或许比任何描摹与诠释更加贴切。
客服
消息
收藏
下载
最近

























































