查看完整案例


收藏

下载
案例简介
Case description
业主背景:本案是我们自己创业初期的工作室,两个不同地域的90后设计师开始了神奇的跨界合作之旅。
设计需求:123平方的工作室,承载着我们对设计的热忱和未来的希冀,我们希望它麻雀虽小但五脏俱全,在满足多人办公的前提下还能兼具茶室,小型接待的功能。我们希望工作室更具包容性,所以在整体设计上我们不去定义风格,随性而定。我们希望融入更多自然的元素,所以我们因地制宜选材,从市场上淘来的旧物进行改造,从后山采集的植物进行移植栽培,将自家院落寻得的材料变废为宝,让工作室有一种新旧并进的气息,让空间能在未来的时光里历久弥新,焕发新的光彩。
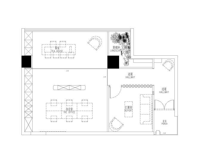
方案设计:由于建筑原始结构较方正,因此让本就不大的工作室面积利用率扩大了不少,工作室的动线十分明朗,穿梭过悠深的过道后,映入眼帘的是一片禅意悠然的微景观,令人不禁联想到《桃花源记》里武陵人“初极狭,才通人,复行数十步,豁然开朗”,的意境。玻璃砖作为外立面的接待室,黑色墙面与红色地毯的碰撞让空间更具艺术性,办公区的肌理墙深沉又粗狂,波西米亚挂毯诉说着远古的情怀,在灯光的作用下熠熠生辉。而大面积的彩绘壁画,让我们在空间漫步时,感悟古典与现代艺术的融合碰撞。在茶区的处理上,地台的设计,不仅仅让茶区与办公室有了区域的界线,同时让我们在品茗的时候还能眺望窗外的风景。
在设计伊始,崇尚自然美学的两个人,坚信根植于心,“以人为本”的设计才更能打动人心,引起共鸣,因此新中式混搭是此次设计之旅的重心。
淘来的椅子经过我们的打磨洗练上漆,让旧物既保留了原来的质感,又让它焕发出了新的生命力。
工作室的动线十分明朗,穿梭过悠深的过道后,映入眼帘的是一片禅意悠然的微景观,令人不禁联想到《桃花源记》里武陵人“初极狭,才通人,复行数十步,豁然开朗”的意境。
玻璃砖作为外立面的接待室,黑色墙面与红色地毯的碰撞让空间更具艺术性。
红与黑的灵魂对白,简单又纯粹,这才是真正具有实力的CP组合。
大面积的手绘,柔和了原本空间的张力。
我们希望让空间能有多面化的构造,更具多样性,让空间拥有自己的感官情绪,“可观,可感,可读”,在团队身临其境的时候,让心能返璞归真,感知生活最原始的触感和美好,于是“上也•空间”就这样孕育而生了。
在茶区的处理上,地台的设计,不仅仅让茶区与办公室有了区域的界线,同时让我们在品茗的时候还能眺望窗外的风景。
在整个方案的的设计过程中,我们希望能在美学与功能中找到一个平衡的支点,在融入中国传统文化的同时注入现代新的表现手法,由表及里,一物一景,一人一画,用情感去融合,让人与空间与环境产生更好的共鸣,勾勒一种自然与艺术并行的氛围。
办公区的肌理墙深层又粗狂,波西米亚挂毯诉说着远古的情怀,在灯光的作用下熠熠生辉。现场大面积的彩绘壁画,让我们在空间漫步时,感悟古典与现代艺术的融合碰撞。
客服
消息
收藏
下载
最近



























