查看完整案例

收藏

下载
案例简介
Case description
清新自然,令人放松的美甲空间
M2作为沈阳尖端美甲店
设计之初摒弃了以往美甲店店所采用的过度装饰的符号化做法
以营造简约、充满亲和力的环境体验作为出发点,
让顾客们在这里不仅仅只有追求时尚变美的过程,更是一次放松悅己的舒适体验
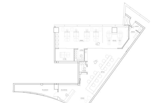
项目位于沈阳万象城,作为商场店项目整体框架是一个不规则的形状,
通过几何化的切割和变形让空间分为6各功能区接待区-美甲区-美睫区-水吧区-消毒室-储藏室
顾客有连贯的参观及体验动线,工作区也相互串联单一的取货引导动线,避免了美甲店嘈杂的环境
功能区之间相互交集,也相对私密,
▲ 项目外观
▲ 项目外观
▲ 入口休息区
▲ 吧台细节
▲ 美甲区
▲ 美甲区
▲ 美甲区
▲ 存衣区
▲ 存衣区
▲ 洗手区细节
在空间的中心,通过四扇折叠推拉门对美甲区与美睫区两种使用空间进行合并以及分割
不损害原本空间的整体性和通透性的同时,让两个空间能够保持相对的私密性
▲ 水吧区
▲ 美睫区
▲ 美睫区
▲ VIP室
▲ VIP室
▲ 细节
客服
消息
收藏
下载
最近




















