查看完整案例


收藏

下载
本项目坐落于 Valdalpone 的一家蜜饯水果工厂内。Valdalpone 农业区位于维罗纳和维琴察之间,以 Prunus Avium 种植园和樱桃树而闻名。项目所在的工厂,呈现出典型的工业建筑特征,为单层并设有双坡屋顶,内部空间高达 5 米,两侧设有双层大窗。
We are inside a factory that has been producing candied fruit for more than a hundred years in Valdalpone, an agricultural area between Verona and Vicenza famous for its Prunus Avium plantations, or cherry trees. The intervention is on the first floor of a production building with a pitched roof, an internal height of about five meters and double windows on the perimeter.
▼项目概览,overall of the project
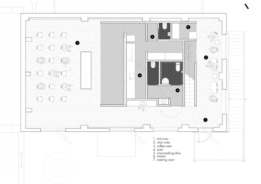
设计的主要目标旨在创造出一处烹饪展示空间,供业主拍摄糕点产品与演示视频使用,此外,还将提供一处服务厨房以及一间新会议室。考虑到工厂内部的高度,设计师在空间中置入了一个全新的双层木“盒”体量,该体量与现有的工业建筑分离,并可以容纳所有所需的功能。
▼轴测图,axonometric drawing
The need was to create a show cooking space where they could shoot demonstration videos for the use of their pastry products, a kitchen with the relative services and a new meeting room. Given the height of the interior space, the strategy was to insert a new double-height wooden volume that detached itself from the existing industrial interior and could accommodate all the required functions.
▼工业空间背景下的木“盒子”,wooden “box” in the context of Industrial space
从周边的墙壁以及暴露在空间中的横梁能够清晰地感受到这座工业遗产的历史魅力,经过粉刷的墙壁与建筑结构如同一张空白的画布,突显出本项目空间的线条。相反,木“盒子”体量也突出了工厂内可观的层高,通过虚实的对比定义出空间的节奏,创造出前所未有的内部景观。
The industrial legacy is visible in the exposed beams on the perimeter walls, which, painted like the walls, are like a blank canvas that highlights the lines of the project. The wooden volume highlights the height of the ceiling, defining the rhythm of the spaces with plays of solids and voids and creating unprecedented internal views.
▼楼梯,staircase
这个新置入到工厂空间中的木制体量被构想为一件大型家具,灵感来自 Antonello da Messina 的画作《书房中的圣哲罗姆》,这幅作品是本项目设计师于米兰理工上学时教授的最爱,画作中描绘了文艺复时期伟大学者圣哲罗姆在可居住家具中工作的场景。这幅画作也以无可挑剔的透视技法而闻名,它既呈现了当时居住空间的形象,但同时又兼顾了乌托邦式的理想和严谨的现实。
The new volume was designed as a large piece of furniture, inspired by Antonello da Messina’s painting “San Girolamo nello studio”, a real obsession of our professor at the Milan Polytechnic, in which a Renaissance man works inside a habitable piece of furniture. Painting also known for the impeccable use of perspective, restoring the image of a space that is lived in but at the same time utopian and rigorous.
▼《书房中的圣哲罗姆》,”San Girolamo nello studio”
剧院则是本项目设计的另一个灵感来源,观众在进入剧院后,无法立刻看到幕布后的景观,本项目则希望承袭这一点。为了强调空间的戏剧性,设计师采用了一系列浅色波浪窗帘来遮盖工厂周围的大窗,进而营造出如戏剧开场前的昏暗空间氛围。
The other reference is to the theater having to create a scenic area not immediately visible upon entering. To emphasize the theatrical aspect of the space, light wavy curtains resembling a curtain were used to darken the numerous windows.
▼浅色波浪窗帘,light wavy curtains
空间中央的木制体量被设计为一座真正的“木屋”,设有由冷杉制成的龙骨框架,以及由带有火焰纹路的 okumè 木材制成的饰面板,这种木材在颜色上让人不禁联想起樱桃木,而业主公司的主打产品就是樱桃制品。项目采用了轻便的材料与简单的施工工艺,既便于运输也便于现场搭建。
The volume was designed as a real wooden house, with a balloon frame structure with fir pillars and beams, covered in okumè wood, which recalls cherry wood in color, in fact the company’s flagship products are the cherries. The construction technology was chosen for its lightness and to facilitate transport and assembly.
▼白色的空间背景,white space background
木“盒子”内包含了所有必需的功能:体量底层入口附近设有小型咖啡区、休息区和衣柜区;沿走廊一侧则设有通往夹层的楼梯;楼梯后侧为主卫生间,以及主要烹饪展示空间,操作台、厨房、储藏室和员工浴室都位于底层空间中;夹层上则为会议室,中间设有一张大型会议桌。
▼模型,model
The interiors of the new volume have been designed to contain all the required functions: on the ground floor near the entrance a small coffee area, a sitting area and a wardrobe area, then continuing along the corridor a staircase leads to the mezzanine floor, behind a flush with the wall there are the customers’ bathrooms and continuing on the main room opens up where the counter, the kitchen with the storeroom and the staff bathroom are located. On the mezzanine floor a meeting room with a large central table.
▼夹层会议室,meeting room on the mezzanine
该木“盒子”体量由一位来自南蒂罗尔的木匠建造,模块化的设计与预制结构元素使整个项目的搭建变得轻松有趣。这种策略不仅提高了建设的速度与精度,同时还实现了传统搭建工艺无法达成的空间质量。
The wooden structure was made by a carpentry in South Tyrol. With which a very interesting job has been done on the prefabrication of the structural elements, which has allowed, in addition to speed and precision, a quality that would otherwise be impossible.
▼会议室细部,details of the mezzanine
▼模型,model
▼一层平面图,lower floor plan
▼夹层平面图,mezzanine floor plan
▼剖面图,sections
Brand
ARREDI E RIVESTIMENTO – Furniture and wood – Rabatto S.r.l.
STRUTTURA LEGNO – Wood structure Idealhouse SRL – GMBH / Ainhauser GMBH
TENDE – Curtains B&B Group srl
PAVIMENTI E RIVESTIMENTI – Flooring Forbo S.r.l.
INSTALLAZIONE RIVESTIMENTI DA – Flooring Biraschi S.r.l.
IMPIANTO ELETTRICO – Electrical and light Flli Bari S.r.l.
IMPIANTO IDRAULICO – HVAC Termoidraulica Valdalpone S.r.l.
Lights:Rossini Group S.r.l. https://rossinigroup.it/serie/hole/
Seating:Bd15 chairs – Equilibri Furniture ( design co.arch studio)
PROGETTO DEFINITIVO ESECUTIVO E DIREZIONE LAVORI
A project by co.arch studio
ARCHITECTURE
Principal architects Andrea Pezzoli and Giulia Urciuoli
team Matteo Torti, Deniz Agaoglu http://coarchstudio.it/
ENGENEERING Ing Emanuele Fornalè https://studiofornale.it/
Photos by SIMONE BOSSI
客服
消息
收藏
下载
最近






















