查看完整案例


收藏

下载
材质与光线在场域内呈系统化的,或始终游离于画面内外,或与本身构建着间离又一体的感官艺术:光线先于动作,而动线则始终滞后。
In the crack of light and shadow, the visitor’s perception is always dominated by these geometric structures, and always able to integrate/reshape it in constant change.
▼首层外观,Exterior view 1F
▼细节,Detailed view
在光影骤裂里,来访者的观感总是由这些几何结构主导,在不断变幻中总能将其整合/重塑,反复堆叠、相噬的混乱事态在「梦境—现实」中自我生成出释义系统,瓦解了空间内部的秩序。
In dream-reality, the repeated stacking and cannibalizing chaos generates a self-explanatory system. It breaks down the order inside the space.
▼展厅空间,Display area
▼展厅细节,Furniture display
环形结构更多是为空间提供观感的闭环,不必受其类型俗套累赘,但就本身而言,视其为梦境与现实的迷乱变奏也并非不可。
The ring structure is more of a closed loop that provides a sense of space, not to be encumbered by its genre stereotypes, but on its own, it is not impossible to see it as a bewildering variation of dream and reality.
▼天光,Skylight
▼展示架,Display racks
▼室内家具,Furniture pieces
于是,在召唤中,情绪纷至沓来,自相映发:或者并置来,看形相的差异,看构图与光色。
And so, in the call, the emotions rush upon them, echoing themselves: Or juxtaposition, look at the difference in form, look at the composition and shadow.
▼客厅家具,Furniture for living rooms
▼走廊,Corridor
▼墙面单元,Wall detail
▼中庭,Atrium
▼天光,Skylight
以远山为观照,照见结构与几何的精魂。照见此刻灵感背后的黑暗深渊。以及其上“振奋的灵魂,少年的灵魂,燃着纯粹的火焰”。照见惊人的平静与同等的激越。于是,相与无相俱在。Standing on high mountains, we can see the spirit of structure and geometry. Look into the dark abyss behind this moment of inspiration. And on it “the uplifted soul, the young soul, burning with pure flame”. A striking calmness and equal agitation. Thus, both and nothing are together.
▼展室和展墙,Showroom and display wall
▼楼梯,Stairs
▼结构元素细节,Structure detailed view
▼一层平面图,First floor plan
▼夹层平面图,Mezzanine floor plan
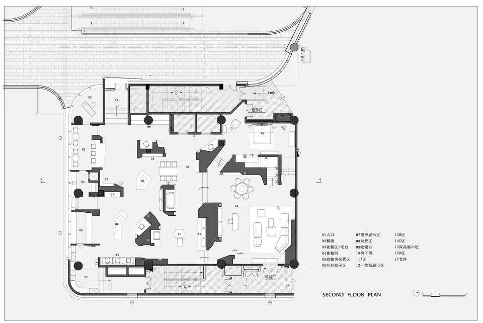
▼二层平面图,Second floor plan
▼A-A 剖面图,Section A-A
项目业主:梵几
项目地点:中国,上海
设计时间:2022
项目类型:建筑改造及空间设计
建筑面积:827㎡
建筑改造:東形西見
空间设计:東形西見
摄影:许晓东
客服
消息
收藏
下载
最近



































