查看完整案例


收藏

下载
© 陈东华建筑事务所
唤醒的历史
佛山一中有着悠久的历史,融汇了华英中学、莲华中学、南海县立第一中学、佛山中学等校区的发展。钟楼、红屋、绿屋、实践园地、尊师亭、敬师亭等老校区的历史建筑,都见证了佛山一中的峥嵘岁月。
保留的原初:
1998 年 4 月,佛山市人民政府正式确认并公布“华英中学旧址”为“佛山市文物保护单位”。旧址尚存七栋建筑,分别为华英第一栋宿舍楼、钟楼、旧男生宿舍、白屋、旧图书馆、旧校长楼、红楼。
第一栋宿舍楼、钟楼、旧男生宿舍、白屋、旧图书馆分别建于 1918、1923、1923、1924、1924 年,设计为英式整体风格加岭南特色中式屋顶。旧校长楼建于 1924 年,设计为中式设计为主加少量英式设计元素。红楼建于 1947 年,是较为现代/当代的设计。
佛山一中原校区保留的旧建筑
消逝的记忆:
- 华英学堂建于 1914 年,装饰具有典型的欧洲教堂风格,建筑地基抬高 1 米左右,避免被岭南夏天的大水淹浸。建筑物除地基和外走廊保留之外,其他均已拆除。
- 红屋/绿屋分别建于 1924 年,两者结构以砖柱与双层木板墙体为主,墙体外层分别为红色和绿色油漆刷涂的瓦状表皮,屋顶为坡顶。另外更重要的是,建筑的底层架空和二层退台,具有现代建筑与岭南气候适应的特点。
- 实践园地作为物理、化学、生物、劳动、手工作坊等多种实验与实践的场所,重点培养学生的动手能力。
佛山一中原校区已拆除的旧建筑
矗立的新篇:尊师亭、敬师亭是在 90 年代由校友捐建;尊师亭与旧图书馆、荷花池相映成趣;敬师亭则与白屋、百年榕树自成一景;科学楼、体育馆、图书馆、高中楼、宿舍楼等新建筑则以现代风格融入局部英式元素的效果呈现出来。
原华英中学的校门,设在文沙北街末段。进入校门,便是西区的钟楼。五十年代初,拆除原校门,在原址上建起一个约 4 米宽的西区校门。1959 年夏,校门采用了华南师范大学的校门样式设计,一直使用到 1992 年。现今的校门是由知名校友梁华先生和张可夫先生捐建,由校友张智彬、黄干练等人设计,于 1993 年落成投入使用至今。
佛山一中原校区的新建筑
向岭南经典学习
位于佛山一中周边的顺德清晖园、禅城梁园、番禺余荫山房、东莞可园,呈现了岭南园林的野生多样与轻盈通透。
而早期的岭南建筑经典,如双溪别墅、白云山庄旅社、华南植物园水榭、白天鹅宾馆等,把岭南园林的野趣、岭南气候的开放和现代主义的形式,放松地糅合了在一起。
岭南园林代表 © 陈东华建筑事务所
© 陈东华建筑事务所
校门入口© 陈东华建筑事务所
传承与批判
佛山一中的合并前身多元、历史风格多样,如何做到“取其精华、去其糟粕”是重要的第一步。可以说,华英时代建筑里的英式与中式风格混杂是最初摇摆不定的一种折衷,但其中又逐渐透漏了一丝丝对当地气候性的回应与现代主义的特征。这种回应是否是有意识的、有智性的,在此先不作考究。但这种古今、中西、全球与地方等矛盾与复杂的背后,我们可以通过借鉴另一个时间线索来逐步借鉴。
自上世纪现代主义风靡全球之后,岭南本土建筑师面对外来的现代性,放松地融合了本地的气候特征与传统的园林特征,在双溪别墅、白云山庄旅舍、白天鹅宾馆等岭南经典现代建筑里体现得淋漓尽致。因此,外来的现代、传统的园林在这片雨热并行的岭南热土上找到缝合的密钥。现代、园林、岭南地域的三者融合,是时间和空间上的错位糅合。
佛山一中顺德校区,正是一系列现代园林的方式来逐一地梳理历史与呈现新颜。
教学楼庭院 © 陈东华建筑事务所
造园子
造园子包括以下一系列的思考和动作:
因地制宜,就势造园
现有场地的原生态景观和地形,深深地烙印在这个项目的土地上。我单位的总体规划正是利用这种特殊的自然地貌和地势,结合岭南传统园林的林池之物,营造一个园林学校。学校的水池延续原有的坑洼之地,尽量减少土方量变化和施工难度,使得整个校园场地的呈现结果、建造过程、原有生态都是一个连续的“自然而然”变化。
总平面图
连房广夏,矩廊萦绕
面对雨热同期的特征,校园的建筑呈现出“连房广夏”之势,大片的首层架空空间相连,为师生的日常生活提供便利的空间。另外,转折多变的连廊围绕和连接着多个院子和建筑,形成“矩廊萦绕”之意,在日常“三点一线”的穿梭当中引入园林里移步换景的惊喜。
首层平面图
多轴转换,步移景异
根据场地特征规划了多个轴向,使得空间布局和游走路径变得更为丰富多样,既创造校内丰富空间,也与周边城市界面呼应。同时,次一级的轴线,分别连接了“尊师亭-教学楼-中央水池”组团与“敬师亭-入口广场-榕树”组团的关系。
轴线分析图
模型© 陈东华建筑事务所
数庭错列,疏密有致
通过大小疏密、自由松散的庭院把功能和流线合理划分,使得高中、初中既独立管理,又能共同营造园林。外环为双车道,内部设置 2 条隐形辅助车道,供临时和特殊使用,确保了人车人流的效率与安全。风雨连廊串联了所有建筑,保证了岭南气候下的日常使用,也成为了园林里步移景异的动态路径。
路径分析图
模型
©陈东华建筑事务所
曲径通幽,眼前有景
园林里的观景方式并非是一览无余,而是有开有合,在柳暗花明之间,于抑扬顿挫之中。放大的架空层、间断的隔墙、细长的连廊、对景的门窗,从大到小的变化总是在一种步移与景异的连续过程里。景观植物选取自经典的广东园林配置,与当代建造技术手段共同提炼出一种多样、模糊的空间。
初中教学楼与内院 ©陈东华建筑事务所
高墙冷巷,嘉树余荫
岭南村落里常见的高墙冷巷,创造了舒适的阴影区域和怡人的烟囱效应,能够较好缓解亚热带的酷热。同时,这些密布的冷巷肌理,结合茂密的绿植,也成为了学校里自由穿梭的公共空间,多孔的空间界面让景观和气流渗透在每个角落,形成一个富有野趣的流动网络。校园里的嘉树余荫,不仅提供了一个阴凉的自然灰空间,更是增添了园林里的生机和氛围。
内院© 陈东华建筑事务所
庭宅共营,园中有院
建筑与园林在这里是同等重要的。建筑并非以每个独特的个体存在,而是围绕着院子形成环环相扣的整体。在整个布局里,我单位引入多个庭院,既是相隔开不同的功能分区,同时也是把庭院至于核心位置来营造。园林、建筑、庭院,互为图底,形成密不可分的整体关系。
建筑功能分区
植物布局图
轻盈通透,内外交融
因为气候的原因,遮阳、挡雨、架空层自然而然形成了包裹建筑四面八方的灰空间。这个过渡层恰好用作建筑内部与景观外部的融合、渗透。这也是岭南园林区别于其他地区的中国园林的特征之一。
建筑外部空间界面轻盈通透,既要保证遮阳,又要允许透气。建筑与园林、人工与自然在这里不分彼此。
初中体育馆© 陈东华建筑事务所
初中体育馆© 陈东华建筑事务所
造房子
与过往强调单体形态的地标式策略不同,位于北面的四栋行政办公楼与公共教学楼,在这里更多是一种围合空间,而非形态表现。它们与正门的黄葛树(大叶榕)形成一组入口广场的布局空间和场所。黄葛树的布局位置与乔木种类,借鉴了岭南村落典型的“榕树头”场景,亦即位于村口的供村民乘凉的大榕树空间。四栋行政办公楼与公共教学楼的布局方式既解决了校外接待、师生集会、图书阅览、社团活动等便于对外的功能需求,也与黄葛树(大叶榕)共同围合出学校正门的公共广场空间。同时,整体建筑采用模块化和装配式的设计,保证施工时间和造价得以把控。
高中教学楼© 陈东华建筑事务所
高中部与初中部的教学楼布局形态源于佛山梁园的宅邸区,以“高墙冷巷”的空间形态呈现,既反映了岭南村落的肌理特征,又能达到亚热带气候下的遮荫效果。同时,教学楼整体采用模块化和装配式的设计,保证施工时间和造价得以把控。
高中生活区© 陈东华建筑事务所
宿舍塔楼既引入了空中花园,在井然有序的塔楼格局中有所打破,同时塔楼外立面也受岭南建筑师夏昌世等人作品启发,设置了水平和竖直遮阳构件,达到岭南气候的遮荫效果。同时,整体建筑采用模块化和装配式的设计,保证施工时间和造价得以把控。
餐厅设计以组团式、围合式、园林式的空间布局为出发点,灵感源于白云山庄旅舍、畔溪酒家、南园酒家、北园酒家等广府饮食名胜的园林式布局。组团式的设计亦方便多种风味餐厅、教室与学生等功能用房的分区,同时又能化整为零,在用餐过程里享受户外风景。
高中生活区的餐厅与宿舍楼 © 陈东华建筑事务所
目前广东地区的封闭室内球馆的使用情况大致可以分为两种:
一是不使用空调,但密闭的空间导致空气不流通而影响室内环境效果和运动状态;
二是使用空调,但消耗较高,运营昂贵。
所以,我们提出的体育馆方案并非设置空调的密闭空间,而是一个灵活开放的半户外空间。南北立面的 3 米高折叠门可以在不同气候条件下打开或关闭:夏天台风或冬天刮风等极端天气可以布局封闭和遮挡,启动局部风扇和局部自然通风;日常时段则可以灵活打开,采用全自然通风。
高中体育馆
高中体育馆 © 陈东华建筑事务所
高中体育馆© 陈东华建筑事务所
两者的柱数和布景均延续了佛山一中旧校区的尊师亭与敬师亭。新校区的尊师亭延续四柱亭,屋顶结构为悬挂式,坐落荷塘旁;敬师亭为六柱亭,亦与清晖园的六角亭相呼应,屋顶结构为抬梁式,与榕树对视。
敬师亭 © 陈东华建筑事务所
敬师亭© 陈东华建筑事务所
敬师亭© 陈东华建筑事务所
佛山一中顺德学校,整合了建校发展、岭南园林、岭南现代建筑的历史,同时融合了原有自然地貌和本土亚热带气候的地理特征。在限定造价的情况下,我们追求的不是标新立异的形态表达,而是参照历史沉淀的经典形式,采用模数化与装配式的施工技术,用巧力来营造出别有洞天的园林空间。我们所需、所造的,是一所属于岭南顺德的校园空间,一所饱含历史、经典与当代气息的校园。
尊师亭 © 陈东华建筑事务所
尊师亭© 陈东华建筑事务所
项目图纸
模型
©陈东华建筑事务所
模型
©陈东华建筑事务所
模型
©陈东华建筑事务所
模型
©陈东华建筑事务所
高中体育馆
初中体育馆
现状
现状
清晖园扩建部分内院 © 陈东华建筑事务所
梁园半边亭 © 陈东华建筑事务所
梁园
广府饮食名胜,图源网络,由陈东华建筑事务所整理
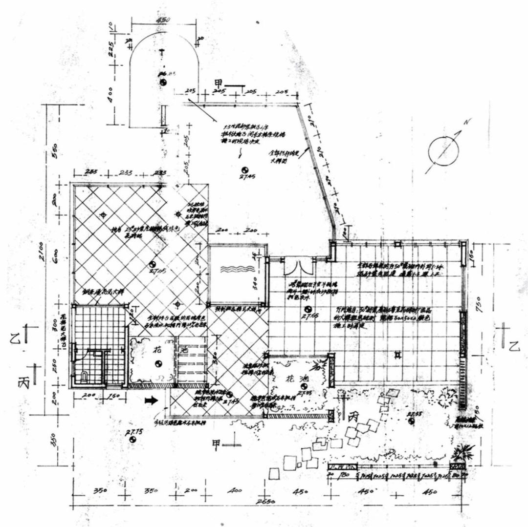
双溪别墅乙座平面:敞厅与开放角部、错列的庭院和房间
华南植物园水榭平面图:
错列的庭院、迂回的路径
项目信息
项目名称:佛山一中顺德学校建设工程全过程设计国际招标
项目类型:教育建筑+规划
项目地点:佛山市顺德区
设计单位:陈东华建筑设计咨询(深圳)有限公司 (陈东华建筑事务所)+佛山市顺德建筑设计院股份有限公司 (顺德院)
主创建筑师:陈东华
陈东华建筑事务所设计团队完整名单:陈炼、黄慧婷、陈欣如、陈柏谦、何海风等
顺德院设计团队完整名单:陈霖峰、谢启欣、朱启曜等
业主:佛山市顺德区工程建设中心
状态:方案评审第一名/中标候选
设计时间(起迄年月):2022.11-2023.2
用地面面积:160897 ㎡
占地面积:38982 ㎡
总建筑面积:161848 ㎡
地上计容建筑面积:131287 ㎡
建筑密度:24 %
容积率:1.01
绿化率:36 %
客服
消息
收藏
下载
最近


















































