查看完整案例

收藏

下载

翻译
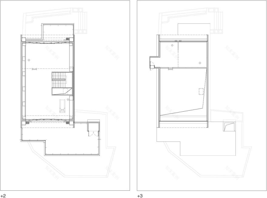
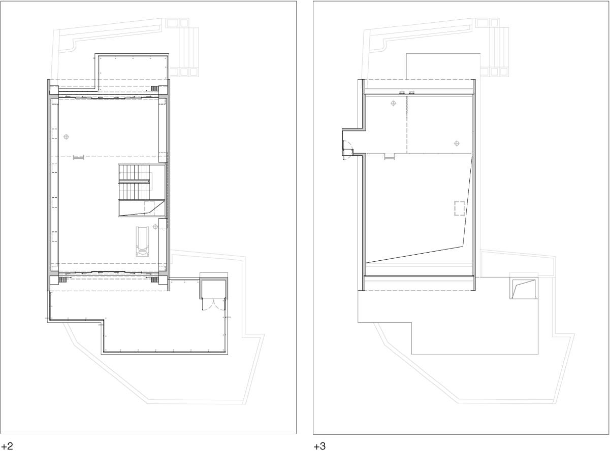
El estudio pekinés Vector Architects ha rehabilitado esta casa, situada en la costa del sureste de China, para un capitán de barco y su familia. La intervención responde al deterioro de la estructura mediante la adición a los muros de ladrillo de una capa de doce centímetros de espesor, que sirve al tiempo como refuerzo estructural y como protección contra las filtraciones de agua. Además, la planta se ajusta para proporcionar mejores vistas del mar y más luz natural a las estancias principales. Sin embargo, la operación central del proyecto es la construcción de un tercer piso, de carácter multifuncional, sobre los dos ya existentes, que se cubre con una bóveda de hormigón y se termina de cerrar con un sistema de bloques de vidrio traslúcido. Así, al anochecer, la casa se enciende como un farol para iluminar el puerto de Fuzhou.
客服
消息
收藏
下载
最近


















