查看完整案例

收藏

下载

翻译
Pocos encargos empiezan como éste, con unos propietarios redactando una lista de deseos y expectativas para su nueva casa; una lista más próxima a las voluntades y los valores que los arquitectos intentar colar casi secretamente en las viviendas que proyectan que de las ambiciones ‘habituales’ de las parejas que afrontan este reto.
En un barrio residencial, la parcela contenía suficientes atributos como para convertirse en argumento central del proyecto. Uno de los principales objetivos fue conseguir que la casa estableciera una relación estrechísima e imprescindible con el jardín, de modo que una fuera la extensión del otro y viceversa, y que esto no dependiera de las inevitables fachadas acristaladas. Una casa con paredes en un jardín para unos coleccionistas de arte.
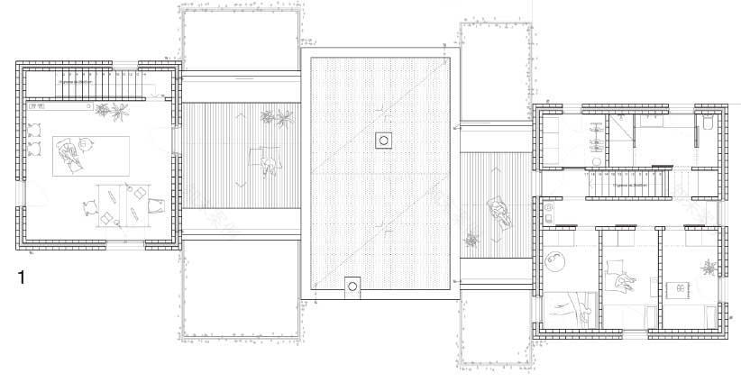
La propuesta intenta encontrar el equilibrio entre situar el mayor número de piezas en planta baja y mantener liberado el jardín. Esto se concreta con una composición de tres cajas esparcidas por el solar, casi alineadas y arrimadas a norte, generando la zona exterior más amplia a sur. La primera caja, al este, contiene la zona de los hijos, con tres dormitorios individuales en la primera planta y un estudio común en la baja. La segunda, central, alberga la pieza principal de la casa: la cocina, una sala de casi 30m² y 4m de altura, presidida por una chimenea. La tercera caja, al oeste, contiene la zona de los padres, con la habitación a nivel de jardín y el estudio (también un espacio muy alto) en el primer piso.
Los intersticios generados entre las tres cajas se cubren, creando dos ámbitos protegidos totalmente abiertos al jardín en dirección norte sur, que se cierran mediante grandes vidrieras plegables. Unos espacios de atmósfera muy diferente a la de las salas interiores de la ‘cajas’. Más del mundo del jardín que de la casa.
Volumétricamente la casa se compone de tres cubos de obra vista, paralelos a la calle posterior y con distintas alturas que, a pesar de tener bastantes ventanas, de medida variable en función de los usos interiores, son eminentemente masivos. Por contra, los espacios intersticiales entre los cubos son etéreos, cubiertos por un forjado y cerrados por ventanales de madera plegables; de hecho, con las puertas abiertas el espacio se convierte en un porche exterior.
La casa se construye con muros de carga de doble hoja, de obra vista en el exterior y pintada de blanco en su interior. Las carpinterías son de madera con persianas ligeras enrollables y los pavimentos son continuos de hormigón. La casa se climatiza mediante geotermia y un sistema de suelo radiante, que en verano solo refrescará ligeramente, evitando la necesidad de deshumidificar mediante aire canalizado.
客服
消息
收藏
下载
最近


















