查看完整案例

收藏

下载

翻译
Tipología:Fábrica Industria
Material:Bambú Cemento
Fecha:2013
Ciudad:Fujian
País:China
Fotógrafo:Shengliang Su
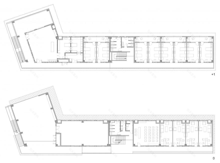
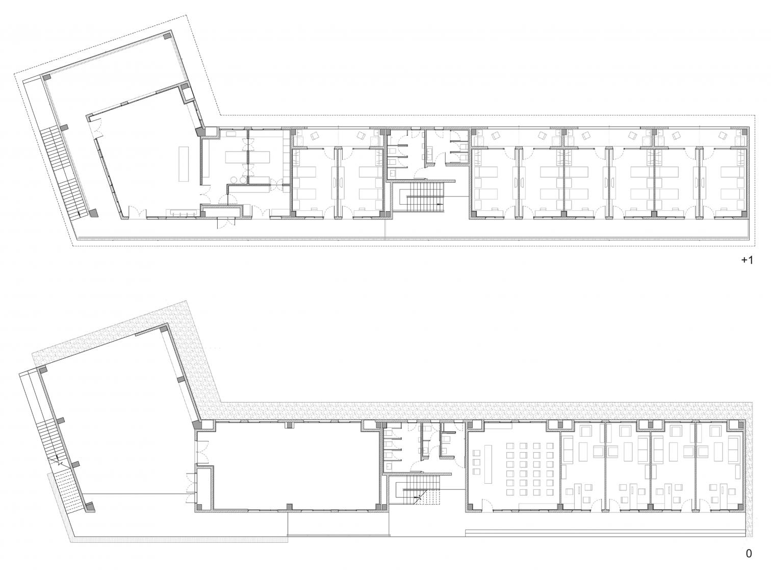
Esta fábrica de balsas de bambú se sitúa en Xingcun, un enclave rural de la zona sur y tropical de China. La planta en forma de L del edificio da cuenta tanto del proceso de fabricación de las balsas como del clima.
Del proceso, porque cada una de sus partes dispuestas a los largo de un esquema lineal atiende a una de las etapas de fabricación, que comienza con el almacenamiento del bambú y termina con el ensamblaje de las balsas. Y del clima, porque las crujías estrechas de la L —de 14 metros de luz— hacen posible la ventilación cruzada de los espacios interiores.
Lo más singular del edificio es que, pese a su relación con el bambú, sólo están construidos con este material las carpinterías y las celosías que protegen las fachadas.
El resto se ha levantado con derivados del cemento (muros de bloques de hormigón y tejas del mismo material), debido a la presencia de cementeras en el entorno. Por lo demás, el edificio se abre a la luz de manera controlada, a través de lucernarios orientados al norte.
客服
消息
收藏
下载
最近









