查看完整案例

收藏

下载

翻译
Tipología:Sede / oficina Comercial / Oficina
Fecha:2007 - 2008
Ciudad:Saint-Mesmes
País:Francia
Fotógrafo:Julien Lanoo Jean-Marie Monthiers
La nueva sede del grupo famacéutico italiano Marchesini se encuentra en Saint-Mesmes, una pequeña localidad del departamento Seine-et-Marne. Rodeado de campos agrícolas, bosques y colinas, el solar sobre el que se asienta el edificio de más de 1.000 m² tiene un desnivel total de tres metros. Además, el lugar presenta tres interacciones a tener en cuenta: la del usuario con el edificio, la del edificio con su entorno y la del usuario con el paisaje. La inserción del proyecto en el territorio y la formalización de su dualidad como objeto enclavado en el paisaje y espacio de observación del mismo responden a la combinación de las tres interacciones.
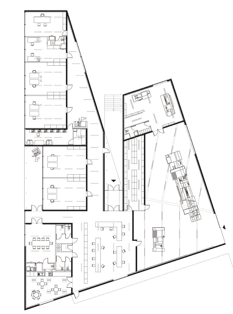
El edificio adopta la forma de una línea gruesa paralela al horizonte, levantándose en voladizo en los puntos de pendiente máxima. La estructura mixta de acero y hormigón se protege del exterior con una piel uniforme de paneles regulares negros, que se pliegan en el encuentro con la cubierta para formar la ‘quinta fachada’. El contraste entre la masividad de sus fachadas hacia la carretera y la transparencia de aquellas que miran al paisaje es el resultado de una implantación radical del programa.
El edificio se dividide en dos volúmenes unidos en forma de ‘V’ y en cuya intersección se sitúa el acceso, alrededor del cual se organiza el resto del programa. Para evitar la disgregación de los espacios de servicio, éstos se conciben como elementos de transición que favorecen la interacción y comunicación entre los trabajadores. Los espacios de relación se abren a un paisaje —a través de grandes ventanales cuadrados de suelo a techo— en el que destaca la presencia del campanario de la iglesia del pueblo. La distribución en planta responde a la funcionalidad imprescindible en un edificio de estas características. En un ala se sitúan las oficinas, con una disposición que permite diferentes configuraciones; y en la otra se encuentran los talleres de manufactura, los espacios de almacenaje y un espacio expositivo destinado a clientes, en el que se exhibe la maquinaria. Las oficinas, unos espacios de trabajo de generosas dimensiones —24 m² para despachos individuales y 34 m² para hasta 3 trabajadores—, se disponen en la parte más alta del solar para disfrutar de las vistas. Además de la cafetería y las salas de conferencias, el resto del programa se concentra en la parte baja, anclada en la pendiente. La altura de los espacios interiores, 3,5 metros, se enfatiza con grandes huecos de suelo a techo que enmarcan el paisaje con estrechas carpinterías y que se protegen de la radiación solar del sur mediante un sistema de protección practicable.
客服
消息
收藏
下载
最近











