查看完整案例

收藏

下载

翻译
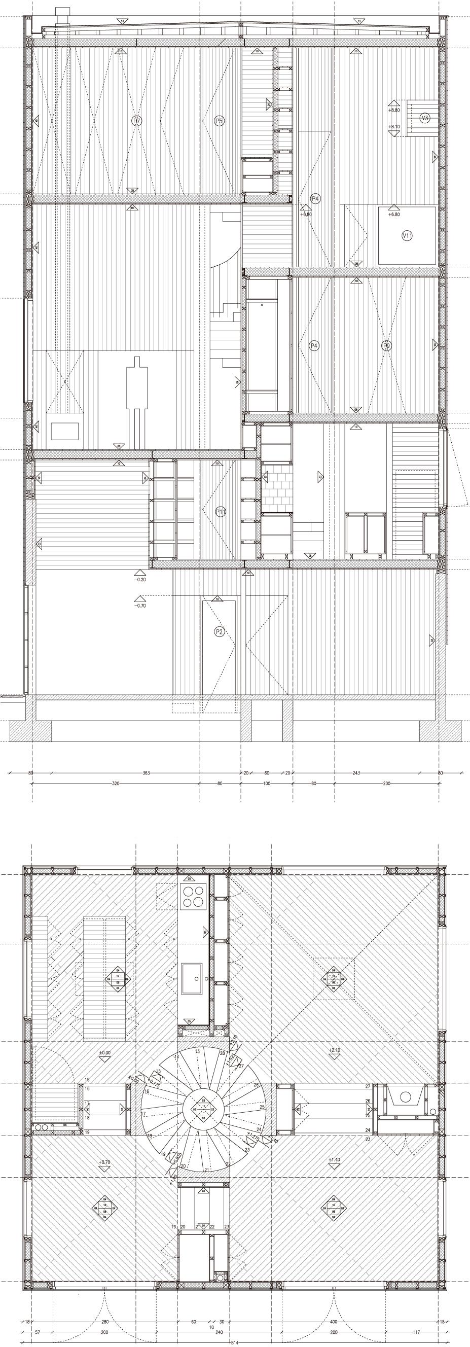
En un área suburbana recién poblada, esta casa para una pareja de matemáticos y sus dos hijos tiene una planta cuadrada dividida en cuadrantes asimétricos que se elevan en espiral hasta alcanzar cuatro plantas. Cuatro escalones (70 cm de altura) separan un cuadrante del siguiente. En el cruce de los muros habitables que dividen el interior se instala una escalera de caracol con un ojo central, escalones regulares y sin descansillos. Entre un recinto y el siguiente hay dos caminos: el de la escalera, que funciona como atajo diagonal que interrumpe las esquinas, y otro más suave que conecta los centros de cada recinto. En total son doce plataformas a diferente nivel, donde un giro de 360º equivale a una planta completa. La secuencia ascendente establece diferentes grados de intimidad y proximidad entre las funciones, que pasan de la cocina o un par de comedores a la altura del terreno a los dormitorios o el estudio en la parte más alta. Esta estratificación promueve la activación de ciertas estancias según las horas del día y una suerte de fricción familiar a lo largo del vacío central. Excepto la base, que contiene la tierra del jardín, esta casa de madera se apoya en la escalera, una pieza robusta de losas plegadas y cuatro pilares de hormigón armado que salvan toda la altura del volumen. En su base, el centro de la escalera coincide con el acceso diagonal a la casa.
客服
消息
收藏
下载
最近











