查看完整案例

收藏

下载

翻译
Tipología:Paisajismo / Urbanismo Institucional Cultura / Ocio
Fecha:2009 - 2015
Ciudad:La Valeta
País:Malta
Fotógrafo:AP Danica O. Kus Michel Denancé Cyril Sancereaeu Mario Carrieri
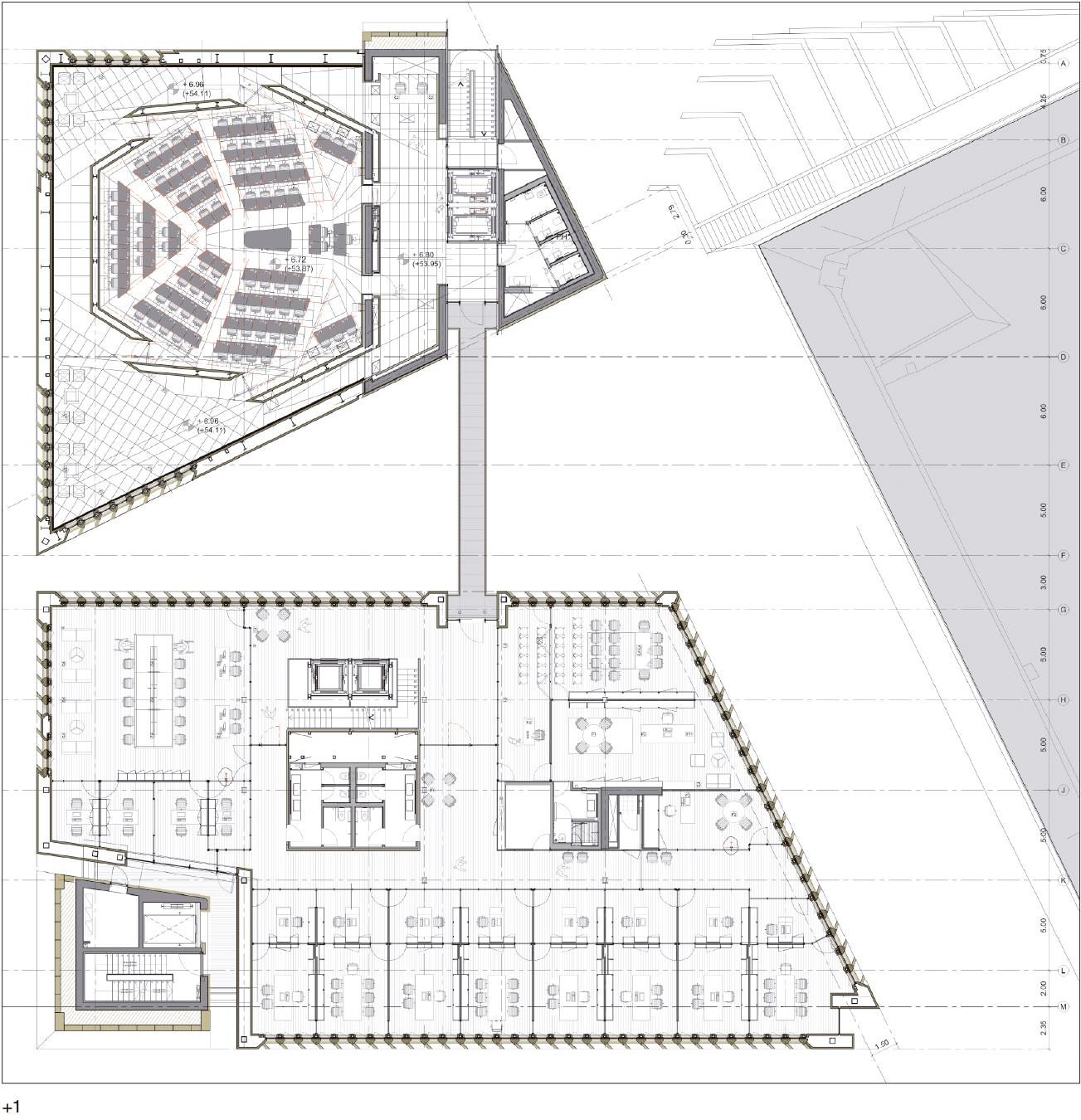
El proyecto Puerta de La Valeta, cuyo objeto es la reconfiguración de la entrada a la capital de Malta, se ha dividido en cuatro partes: la actuación sobre la puerta de la ciudad y la plaza justo al exterior de las murallas; la construcción de una ‘máquina’ teatral destinada a representaciones al aire libre en las ruinas del antiguo edificio de la Ópera; el proyecto del nuevo Parlamento del país; y la reconfiguración paisajística completa del antiguo foso de la ciudad.
La primera intervención ha consistido en la recuperación de la forma original del puente de acceso a La Valeta, que, desde su construcción por el ingeniero militar Dingli en 1633, sufrió todo tipo de alteraciones. Esta actuación hace posible que vuelva a tenerse la sensación de estar cruzando un puente, desde el cual se pueden disfru-
tar las vistas sobre el foso y las fortificaciones. La primera puerta de la Valeta fue probablemente un túnel abierto en las murallas, y el objetivo del proyecto ha sido devolver a las murallas la sensación de espesor y fuerza que tuvieron en sus orígenes. Renunciando a cualquier tipo de ornamento, la nueva puerta de la ciudad consiste en una brecha en la muralla de sólo ocho metros de anchura. Su arquitectura es muy sencilla, y sugiere a un tiempo poderío y austeridad. La puerta se ha construido con grandes bloques de piedra extraídos de una cantera abierta especialmente para este proyecto, y que se han enmarcado mediante llantas de acero que definen el límite entre la huella del pasado y la del presente. La actuación en este ámbito se completó con la demolición de la calle del Papa Pío v, que atravesada la puerta a cierta altura, y que se ha sustituido por escaleras que conectan los viejos bastiones con la calle de la República.
El edificio del Parlamento consiste en dos cuerpos macizos de piedra asomados entre esbeltos pilares que dotan de ligereza a todo el conjunto. La forma del edificio respeta la trama de calles preexistente, pero su diseño persigue construir un volumen urbano de carácter poroso. Así, los dos cuerpos están separados por un patio central que funciona como entrada principal. Este patio está pensado de manera que no se obstruyan las vistas al bastión de St. James desde la calle de la República. Las fachadas del Parlamento están acabadas con bloques de piedra maciza esculpidos con sofisticada maquinaria controlada por control numérico con el objetivo de crear un artefacto totalmente funcional que filtre la radiación al mismo tiempo que permita la entrada la luz natural y la apertura visual al entorno inmediato.
客服
消息
收藏
下载
最近





















