查看完整案例

收藏

下载

翻译
Tipología:Escuela especializada Educación
Fecha:1993 - 1996
Ciudad:Williamstown (Massachusetts)
País:Estados Unidos
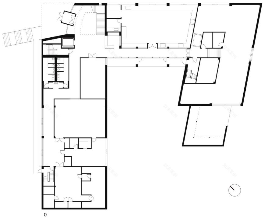
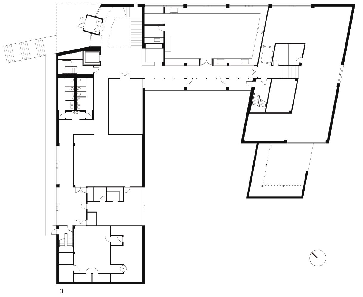
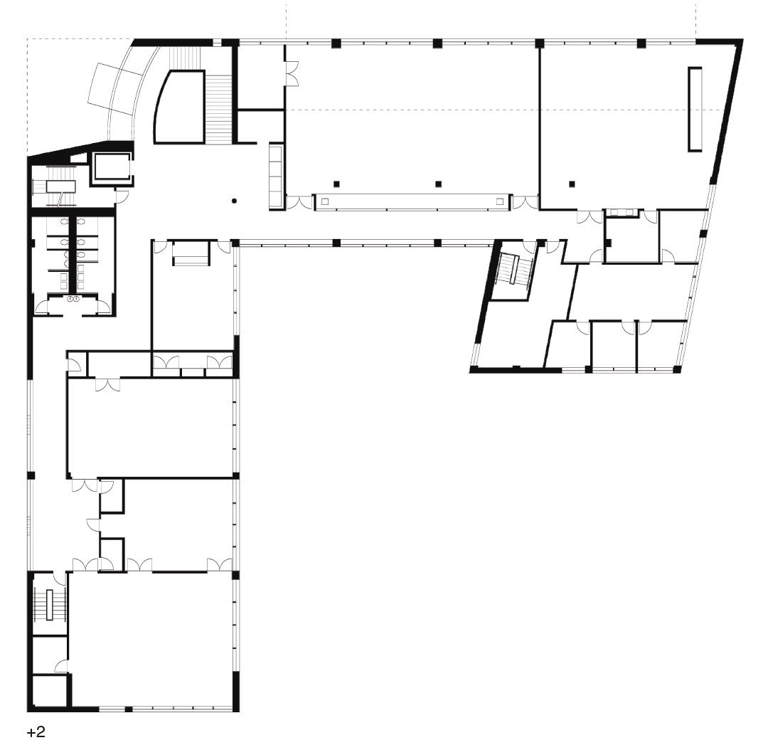
Este edificio de 3.700 metros cuadrados, destinado a Escuela de Arte, agrupa un conjunto de talleres y aulas que estaban originariamente dispersos. Emplazada en el extremo sureste del campus del Williams College, la escuela disfruta de algunas de las vistas más increíbles de las cercanas montañas Berkshire. Partiendo de semejante contexto, la idea de proyecto consistió en convertir estas vistas, siempre que fuera posible, en un ingrediente fundamental de la vida del edificio.
La organización en forma de U de brazos asimétricos permite envolver con dos alas un patio orientado al sur. Los talleres están distribuidos en función de las necesidades de iluminación y altura, de manera que todos los espacios destinados a la pintura y al dibujo se orientan al norte, mientras que el taller de escultura se sitúa al final de una pendiente que permite ampliar la altura libre disponible. Con sus tres plantas, el edificio es el resultado directo de dar respuesta a un complejo y denso programa de necesidades, trabajando con una difícil topografía que obliga a retranqueos muy marcados. Todo ello conduce a un edificio perfectamente adaptado al lugar, pero que en lugar de dar cuenta, sin más, de las tensiones propias del enclave, aspira a integrarlas con naturalidad gracias a la arquitectura.
客服
消息
收藏
下载
最近











