查看完整案例

收藏

下载

翻译
Construida a partir de contenedores estandarizados, esta comunidad surge para suplir la falta de viviendas tras el terremoto de 2011 en la ciudad japonesa de Onagawa, en la prefectura de Miyagi. A diferencia de las construcciones de emergencia habituales, que requieren una gran superficie de terreno plano, este proyecto aumenta la densidad edificatoria mediante la apilación de contenedores, lo que a su vez permite acortar los tiempos de obra.
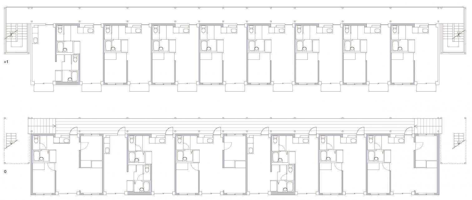
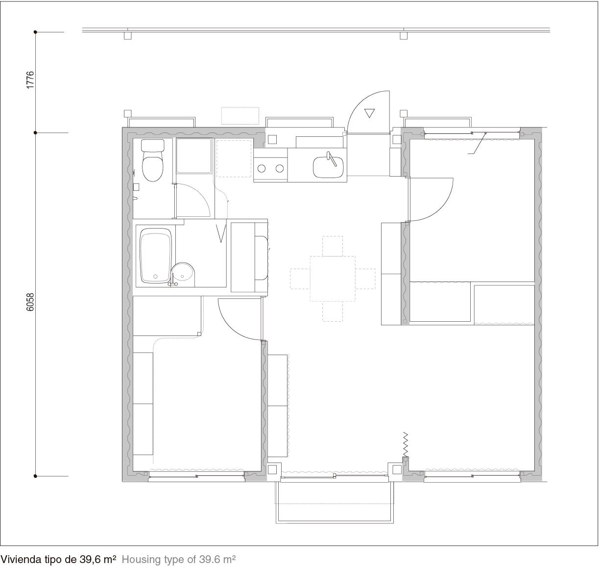
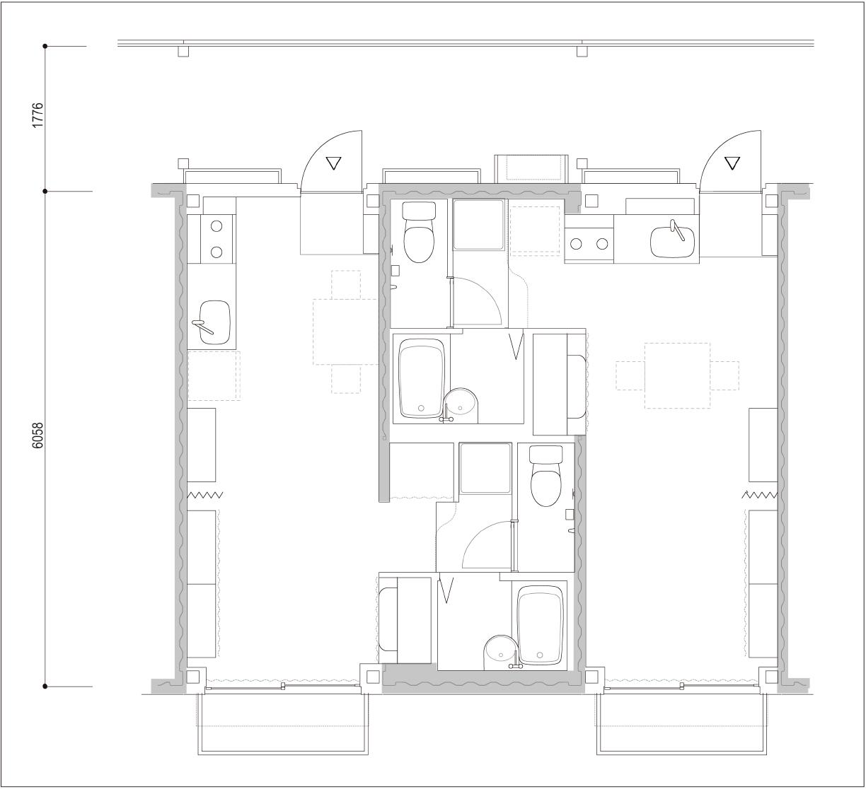
Las unidades se disponen de forma alterna, siguiendo un patrón ajedrezado, de manera que se generan zonas abiertas que enriquecen espacialmente el conjunto y mejoran su funcionamiento climático. Hay tres tipos de apartamentos según cómo se combinen los contenedores: de una o dos personas (19,8 m²), de tres o cuatro (29,7 m²) y para más de cuatro (39,6 m²). Con el objetivo de mejorar los sistemas de almacenamiento, la red de arquitectos voluntarios (VAN) instaló estanterías de madera en las habitaciones.
La agrupación de las viviendas en hileras de tres pisos libera superficie de terreno en el centro de la parcela, donde se construye un mercado, un taller y un centro comunitario. Para ello se utilizan también contenedores combinados con cubiertas de tela, madera o tubos de papel.
客服
消息
收藏
下载
最近


















