查看完整案例

收藏

下载
AD Architecture@2019
“打造别致舒适感,
营造温馨淡雅感,
这是我们赋予这个空间的一种憧憬......”
"To create a unique comfort and
create
a
warm and elegant feeling,
This is our expectation of this space..."
在整体的布局中,以低调的灰白二色为主,暖色系的木色为辅;给空间带来一种简单而又温馨的亲近感。
In the overall layout, the low-key gray and white two colors are mainly used, and the warm color is supplemented by the wood color; it brings a simple and warm feeling of closeness to the space.
客厅电视背景以黑白色石纹的大理石搭配,浅灰色的地面放置舒适的地毯,高级灰的沙发与深褐色边几相搭,营造质感的空间。
The living room TV background is matched with black and white stone marble. The light gray floor is placed on the comfortable carpet. The high-grade gray sofa and the dark brown side are combined to create a texture space.
明亮的光透过柔软的窗纱,将光线过滤得特别柔和,反射在白色的大理石桌上,犹如一面明镜,给予了客厅不一样的明亮度。
The bright light passes through the soft screens, which filter the light to a particularly soft, reflective white marble table, like a mirror, giving the living room a different brightness.
纱窗旁摆放着一盆千年树作为装饰,纯白的盆底很自然地与地面和墙面融合在一起,绿色的植物能够很好的缓解了人的疲惫感。
A thousand-year-old tree is placed next to the screen window as a decoration. The pure white pelvic floor is naturally blended with the ground and the wall. The green plants can alleviate the feeling of exhaustion.
灰白色的空间里纳入的木质储物柜与简约的黑色酒柜正好相配,贴近墙壁安放,空间得以充分利用,摆上金属质感的别致器具,简约又不失精致。
The wooden lockers included in the gray space are matched with the simple black wine cabinets, placed close to the wall, the space can be fully utilized, and the chic utensils with metal texture are simple and elegant.
厨房则以经典的黑白色为搭配,天然纹理的白色大理石厨壁,自然地融入到深色的厨柜设计中,推翻厨房油腻的固有印象,展现出一种淡雅的风格。
The kitchen is matched with classic black and white, and the natural-textured white marble kitchen wall naturally blends into the dark kitchen cabinet design, overturning the greasy inner impression of the kitchen, showing a light style.
卧室则要温馨,让人深刻感受到在家的那种舒适感与温馨感,所以卧室地面我们采用暖色系的木地板,电视背景墙与电视机柜同样采用温柔的木色,雪白的墙壁上镶入一副黑白风格的抽象画,正是这种难懂,无厘头的抽象画风格,达到了意想不到的装饰效果。
The bedroom is warm, and people feel the comfort and warmth of home. So the bedroom floor is made of warm wood flooring. The TV background wall and the TV cabinet are also made of soft wood color, and the white walls are embedded. A black-and-white abstract painting is such an incomprehensible, nonsense abstract painting style that achieves an unexpected decorative effect.
现代简约风的黑色储物柜上设立了柔和的灯光照明,摆上纯白色的器具,收纳与装饰的功能两不误,瞬间提高整个卧室的格调。
The modern minimalist black locker is set with soft lighting and pure white equipment. The functions of storage and decoration are correct, and the style of the whole bedroom is instantly improved.
轻松舒适的室内环境,带来不一样的温馨设计;像个纯净唯美的少女,清新,灵动,俘获人心。
The relaxed and comfortable indoor environment brings a different warm design; like a pure and beautiful girl, fresh, smart, and capture the hearts of the people.
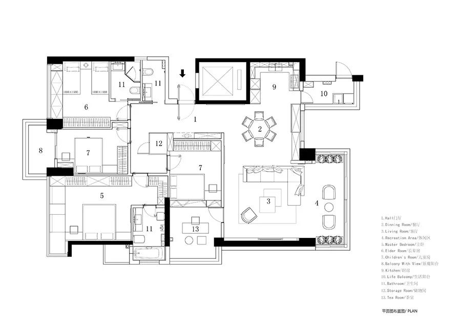
▼平面图,plan
项目名称:悦水湾 ·
L House
Project name: Yueshui Bay · L House
设计机构:AD ARCHITECTURE∣艾克建筑设计
Design firm: AD ARCHITECTURE
总设计师:谢培河
Chief designer: Xie Peihe
设计团队:艾克建筑
Design team: AD ARCHITECTURE
施工团队:艾克工程
Construction team: AD CONSTRUCTION
项目地点:广东汕头
Location: Shantou, Guangdong, China
建筑面积:160㎡
Construction area:
160
㎡
主要材料:大理石、哑光砖、艺术漆、白色哑光漆、木饰面、木地板
Main materials: marble, matte brick, special effects paint, white matte paint, wood veneer, wooden flooring
设计时间:2018年11月
Start time:
November 2018
竣工时间:2019年4月
Completion time: April 2019
特别鸣谢:
欧文莱
、
美标
、必美木地板、罗兰西尼门窗、小米智能、梵品木饰面、金牌橱柜
Special thanks to : Overland, American Standard , Beamyworld, Rolandi , MIUI , Fanpin,Goldehome
AD Architecture@2019
AD ARCHITECTURE
,
成立于2014年,以共赢、共存、共识为理念。
意在聚集有共同理念的设计人。组成一个富有协作精神的设计团队,发展本土设计事业。主要业务内容包含建筑设计、室内设计、软装设计。
专注于豪宅、售楼处、办公、会所、公共空间。以专业的立场、创新的设计理念,致力为市场提供高水平的建筑及室内设计专业作品。
AD ARCHITECTURE,力图让自己创造出更多富有创造力的作品。
Founded in2014, AD ARCHITECTURE takes win-win, coexistence, and consensus as its concept.
ADARCHITECTURE intends to gather designers of common ideas to form acollaborative design team to develop local design. Its main practice includesarchitectural design, interior design, and soft decoration.
Focusing ondesign of villas, sales office, offices, clubs, and public spaces, ADARCHITECTURE is committed to provide high-level architectural and interiordesigns with its professional position and innovative design concept.
It's goal isto create more creative designs.
谢培河∣Xie Peihe
高级室内建筑师,ADARCHITECTURE创始人及总设计师,致力于室内建筑空间的创造及空间体验性的营造。
设计从生活中来,提取感性的设计灵感与理性的设计手法,让每一个设计都从零开始,打破惯性的设计思维,让人感受每一个空间不同的体验与乐趣。
(德国)2019 Red Dot Design Award
(意大利)2019 A`Design Award设计大奖银奖
(荷兰)2019 Frame Awards
(佛山)2019现代设计奖唯一金奖
(深圳)2019艾特全球设计大奖银奖
(美国)2018 Best of Year Awards大奖
(美国)2018 Architecture MasterPrize(AAP)年度大奖
(英国)2018 FX International Interior Design Awards
(意大利)2018 A`Design Award设计大奖
(深圳)2018国际传媒奖办公空间年度大奖
(香港)2018 40Under40 Awards
(香港)2017亚太室内设计大奖赛住宅铜奖
(深圳)2017艾特全球设计大奖
(上海)2017IAI全球设计大奖
Senior interior architect, founder and chief designer of AD ARCHITECTURE, commits to the creation of interior space and space experience.
Design derives from life, so we extract emotional design inspiration and use rational design techniques to start every design from scratch, breaking inertial design thinking and making people have different experience and joy in every different space.
2019 Red Dot Design Award
2019 A‘Design Award:Silver Award
2019 Frame Awards - longlisted
2019 Morden Design Award:Grand Prize
The 9th International Space Design Award Idea-Tops:Silver Award
2018 Best of Year Awards - Firm's Own Office Winner
2018 Architecture MasterPrize - Workplace Winner
2018 FX International Interior Design Awards
2018 A' Design Award & Competition
2018 Modern Decoration International Media Award - Annual Office Space Award
2018 40 Under 40 Awards - Interior Design Winner
2017 Asia Pacific Interior Design Awards - Living Space Bronze Award
2017 IDEA-TOPS - Villa: Nomination
2017 IAI Design Award - Design Excellence Award
Enquiry
|
項目咨詢
:
Media
|
媒體合作:
Recruitment
|
招聘就职:
设计创意总部
ADD:廣東省汕頭市龍湖區潮汕文化創意產業園33棟5樓
0754 87122656
深圳设计部
ADD:深圳市南山區高新南環路留學生創業大廈二期901
86 13417148383
weibo: @AD艾克建筑设计
客服
消息
收藏
下载
最近




























