查看完整案例

收藏

下载
-
让NIKO买手店有出身世家名门之天资
设计的逻辑
基于空间基因的本身
在呈现手法又得以生长
白色盒子是空间呈现的明线
流动则是心理与行为导向的暗线
于是建筑、室内、元素、光线皆为此服务
-
■ LJ-吴振宝专访
•
01
FIRST SENSE
引
· 第一感
-
世界纺织之都
是项目所在地柯桥的金名片
独具天时地利与时尚魅力的
买手店以店主之名NIKO冠名
空间主理人的气质
买手店的天然DNA
皆被融入于空间的表达之中
个性与品味定位了其调性
时尚和趣味则是基准
一眼撩心弦的探究欲
是设计自始至终遵循的理念
-
P. 01
P. 02
•
02
A SENSE
OF
CEREMONY
导
· 仪式感
-
以设计的动线手法
以视觉引导行为
将空间所要传达的情绪体验
穿插于每个空间部分的表达
潮品选取的巧妙心机
既是充满小意趣的欢迎仪式
又似以手势指引的动线走向
心灵的体验,动线的暗示
自入口处便拉开了序幕
-
P. 03
P. 04
P. 05
•
03
IIMITED&INFINITE
流转
·
有限与无限
-
空间设计即创造空间
于有限中衍生出无限可能
利用隔层挑高等重构空间
消解了原有空间的压抑感
解决了空间的光线互动
让整体的氛围流动起来
-
P. 06
P. 07
P. 08
中空柱体是后天创意的呈现
加固承重,天然的区块分隔
亦是加持艺术审美轻盈之观感
镜子是空间的魔法
与自流平地面达成了默契呼应
潜移默化中拓展了空间视觉
-
P. 09
P. 10
P. 11
•
04
TONALITY
调性
·
独特与玩趣味
-
极简是空间的风格
而玩趣与个性则循着细节潜入
整个空间以白色作为基础
依靠自然光影的变化
及极少元素的点睛
便成全了空间的节奏感
一切让位于空间陈列的展示
一切都导向于产品的跳出
-
P. 12
P. 13
P. 14
P. 15
Mark Stoddart的河马茶几
可谓空间调性的代言
成为空间内玩趣的集合点
作为空间中的艺术装置
瞬间烘托出玩趣的空间型格
-
P. 16
P. 17
•
05
BOX
盒子
·
去中心化
-
空间动线的设计
以产品陈列为轴线形成引导动线
呈现出各自独立的盒体
每个点以独立场景各为中心
设计服务于空间
空间服务于产品
功能性与艺术性完美统一
-
P. 18
P. 19
P. 20
由一层转入二层的链接点
被三维立面围合出曲径通幽感
辅以品牌烙印的低调闪现
是继续探秘的视觉引导和心理暗示
-
P. 21
•
06
DETAILS
细节
·
简与微妙
-
在这一空间的设计中
点到即止是贯穿始终的指导思想
既未喧宾夺主,又可一眼会意
色彩上的尺度把握同样精准
蓝色的吸晴,材质的呼应
以极少的笔墨完成
知趣地退隐为配角
却点燃空间的质感
-
P. 22
P. 23
P. 24
•
07
RELATIONSHIP
关系 · 交融与独处
-
利用挑空
制造一层与二层独特关系
既为独立的存在亦是
设计风格的延续
楼梯被巧妙隐藏于墙体后
通道起点与终点的一致性
持续延伸了动线的引导
不设限的手法
C促使上下空间氛围流动
材质,色彩,形式以
延续与创新
呼应与个性不断变幻出新的空间氛围
-
P. 25
P. 26
P. 27
P. 28
P. 29
•
08
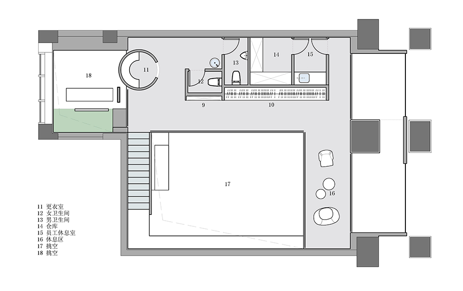
PLAN
平面图
-
1F平面图
P. 30
2F平面图
P. 31
-
隔与不隔是功能之思
更是尺度的审美
通过不同区位,不同尺度手法的运用
设计始终成全着整体空间上的沟通
也成全着空间的意境
-
设计项目:NIKO买手店
空间性质:商业空间
设计单位:安生设计
软装设计:1637ART
坐落位置:浙江省绍兴市柯桥区华宇路88号
完成时间:2020年10月
建筑规模:160m²
项目摄影:徐义稳
安生部分作品回顾
(请点击图片了解项目的更多内容)
绍兴大滩六号院:玩趣时代,做生活的冒险家和艺术家
康郡雅音岛1000+㎡顶级现代别墅设计
瓜渚景园800+㎡顶级湖景别墅设计
Niko Select shop
【大家阳光里,静谧时光 】
【Gray space 】
诸暨山下湖1000+㎡现代美学独栋别墅设计
柯桥景瑞望府800+㎡现代别墅设计
绍兴半岛花园1000+㎡独栋别墅设计
梧桐细雨
茹宅
旧房改造Amazing colors
百合花园400+㎡ 顶层复式大平层
绍兴天工开墅600+㎡优雅艺术大宅
绍兴香湖岛艺术美宅
绿城玉园别墅设计
安生所获荣誉
2020年第15届金外滩 • 最佳居住空间金奖
1989-2019 全国优秀室内建筑师
2019 40 UNDER 40 浙江省设计杰出青年
2019红棉中国室内设计奖
2019红棉中国最美极简空间设计奖
2019鹏鼎奖中国当红别墅设计师
2019鹏鼎奖别墅空间金奖
2019IDG年度十大资深设计师
2019金邸奖
2018华语设计领袖榜TOP100
2018浙江室内设计年度TOP TEN
2018法国双面神全球形象大使
2018金创意奖特聘实战导师
2018中国设计星全国36强
2018IDS别墅豪宅类金奖
2018金创意奖别墅豪宅设计类金奖
2018龙承奖金奖
2018金腾奖
TOP100
2018鲁艺奖
2018中国浙江青年室内设计奖别墅豪宅金奖
2018大金内装设计大赛全国美宅设计别墅组铜奖
2017
法国双面神奖创新设计奖
2017
金创意奖别墅豪宅设计类金奖
2017
金创意奖十大创新设计师奖
2017
艾特奖
2017
IDS国际设计先锋榜住宅空间奖
2017
大金内装设计大赛全国美宅设计别墅组银奖
2016
艾鼎奖别墅空间设计金奖
2016
中国营造空间设计大赛餐饮空间金奖
2016
(IADA)国际艺术设计大赛住宅空间金奖
2016
(IADA)国际艺术设计大赛餐饮空间银奖
2016
CIID中国室内设计大奖赛别墅空间银奖
安生设计
是一家不断发展的设计公司,
拥有资深背景、前卫的设计师团队
,探索多元领域新知,对设计有着共同的热情。通过室内综合设计,为客户提供高素质、创意十足的设计方案。
安生提供别墅、大宅、办公、会所、展示等空间设计服务。
安生设计创始人简介
安生设计创始人/创意总监:
吴振宝
ANSWER安生设计创始人及创作总监,1637艺术陈设创始人及创作总监,绍兴室内设计师协会执行会长,室内设计学士学位,创立安生设计之前,曾在中国美术学院风景建筑研究院第二室内设计所任设计总监一职,2019年全国30年优秀室内建筑师荣誉称号,2018年获得全球影响力华人典范设计师大奖及华语设计领袖榜TOP100,2017年法国“GPDP AWARD”国际设计大奖全球形象大使,2016年“IDG”国际大学生空间设计大赛实战导师,2015年至今作品数次出版国内外专业设计类杂志及书籍,带领ANSWER安生设计团队获得三十多项国际设计比赛大奖。
▲
安生设计咨询
▲
安生官方联系渠道:
answer1637
地址:浙江省绍兴市越城区金德隆创意园7-114A室
客服
消息
收藏
下载
最近





















































