查看完整案例

收藏

下载
好的私宅一定可以透过设计,
感受到主人的特别之处,个性使然的部分。
正如设计师吴振宝所说的,
私宅设计其实就是为客户创造和实现梦想,
最后获得的是心灵的纯净和个性的解放。
至爱
”
生活的律动“
现代与传统的碰撞,创意复古齐头并进;
理性与激情的对决,交织一片崭新风格。
美式能将混搭手法玩转高级,它为简约利落之美赋予新词,取澎湃大气之姿万千包罗。
现代之静旎,北欧之优雅,中式之芳华,西方之珍奢,气韵与色泽皆容纳其中。
△客厅
一个空气畅通,阳光充足又似乎飘荡着旋律的空间。
轻灰色的背景书写着安然淡薄的底色,透光的窗纱,蓝灰色的窗帘,轻盈灵动,鲜艳的色彩并没有被拒之门外,明亮轻松的挂画,谨慎轻佻的插花,黄铜硬朗的茶几,深浅有度的沙发,俏皮年轻的地毯,色彩,软装的力量尽情展现。
可以想象,午后的闲暇时光,躺在浅色沙发上的主人与对面的好友谈天说地,抱枕就像壁炉上的抽象画,嬉笑怒骂间被来回抛掷。
与客厅融为一体的餐厅
被
石膏
顶角线
以
虚拟的方
式分隔,
独立
成
小
区
域。
牛角
餐桌
与
黄色
配椅
,点缀与丰富
空
间
。
△餐厅
色彩,也是混搭元素之一。
在色彩搭配方面,设计师更加注重整体的和谐性,在浓郁的色彩氛围中,巧妙地融合略现代的家具和令人印象深刻的当代艺术挂画,打造出轻快的美式混搭感受。
△厨房
过多的色彩似乎成了一种冒犯,设计的目的是不要喧宾夺主,让空间的视觉冲击隐退在一器一橱中。
浅暖色的地砖,咖色点缀浅色的墙砖,白色的橱柜,简单的色彩避免了过多的存在感。
恬静之意
“
生
活
的
淡雅
”
设计师认为私宅设计应该是舒适的、个性化的,不仅要反映业主的生活,还要反映业主的内心。
经过深思熟虑的思索、有意义的尝试以及对细节的真诚关注,设计一个有趣的家其实并不会太费力。
卧室空间打造出的通透感,愈加明媚清美。
当面对私宅设计时,设计师面对的是真切的人,他们的一颦一笑,爱好品味都能成为灵感的来源和功能的支撑。
△主卧
纯净的灰蓝与温暖的米黄色配搭,好比碧空下海风徐徐拂过的白沙滩,带着光晕与醇透,让你感受到久违的轻松惬意,仿佛是一个遥远的梦境,却又触手可及。
作为卧室空间的配色,可以说是再合适不过了。
整个居室流露着恬静与淡雅韵味。
△主卫
△衣帽间
在私密
独享
的卧室
中
,灰
褐色与墨绿色
是能
让人放松心情、安
心睡眠的绝佳颜色之
选。
△
老人房
温馨的
浅
绿
色
笼
罩着这个孩子房
,清爽柔和
的硬包
质感使它看起来更加舒适、宜居,
挣脱掉
束缚感,让
孩子
感觉自由
和洒脱感!
△孩子
房
昏夜派对
“生活的优弥”
在地下室中要营造生活的自由自在和无拘无束的生活方式,需摒弃了过度的奢华和古典的繁复,将不同风元素汇集完美融合在一个空间里,成就业主心中那份怡然自得的闲情!
延续美式的气质,摩登的柔、深灰色的酷,奠定了地下室的基调。
石头的粗糙感,大幅女郎配画的情感,拱形的线条,培养出影音区的气息,
时尚典雅又不失奢华毫不矫揉造作!
△负一层
会客厅
△负一层
酒吧台
△楼梯厅
设计师用简约流畅的线条勾勒出简美家具特有的高贵气息,为每件家具赋予别具一格的魅力,让家具成为艺术品鲜活整个空间,业主的特别之处对生活高品质对空间有着极高的追求!
柔和,舒缓,淡泊……在城市的喧嚣中,它并不参与争鸣!
△地下室改造前后平面图
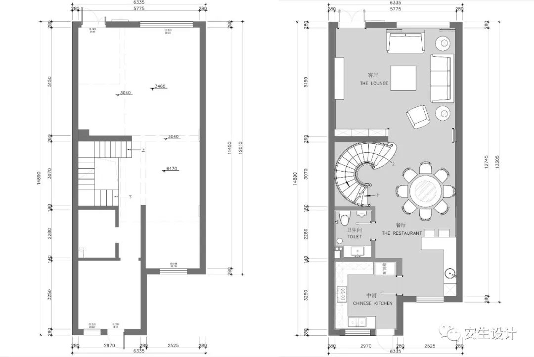
△一层改造前后
平
面图
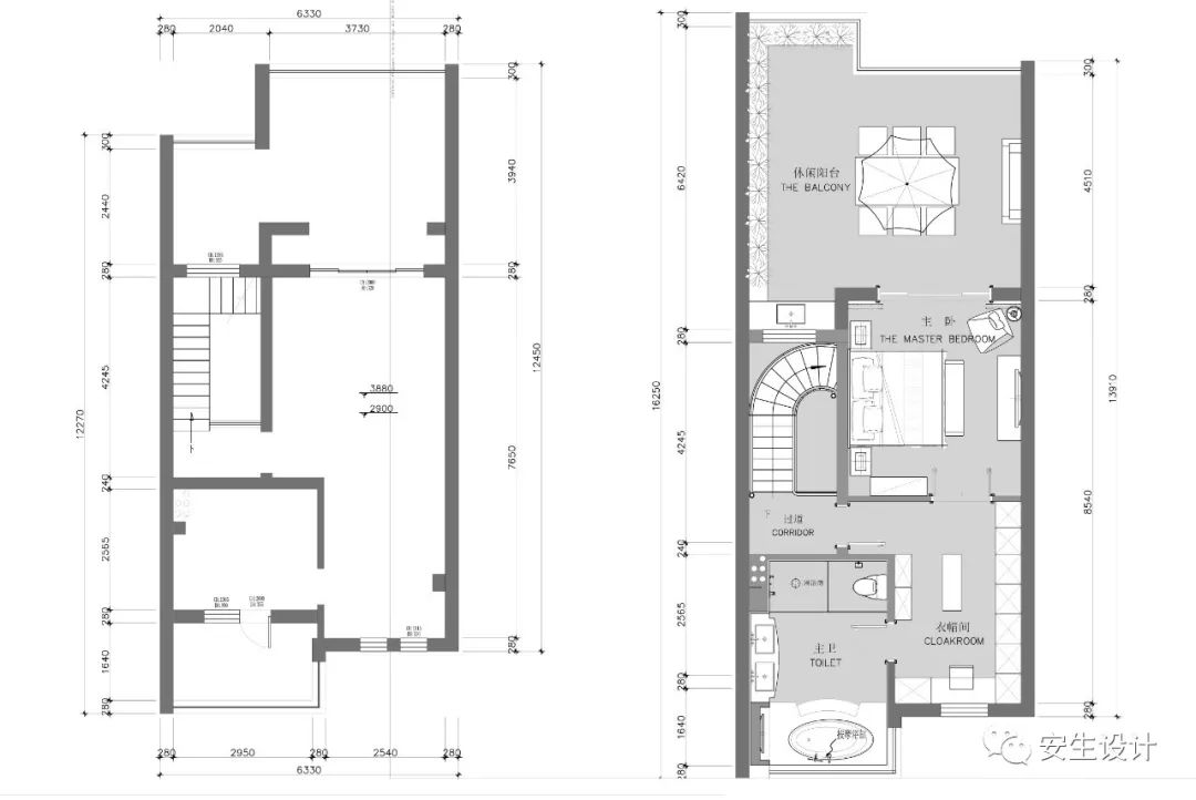
△
二层
改造前后
平
面图
△三
层
改造前后
平
面图
项目名称:龙湖原著
空间性质:私人别墅
设计单位:ANSWER安生设计
软装设计:1637艺术陈设
项目位置:
柯桥区钱陶公路与柯华路交叉口
创作总监:
吴振宝(Answer Wu)
设计团队:
陈钇达 陶文涛 王嘉龙 陈建东 莫少杰 徐顺航 王莎丽
设计时间:2017年6月
完成时间:2019年8月
建筑规模:400+㎡
莫少杰
空间摄影:叶松
主要品牌:
本哈特bernhardt家具 摩根世家 诺高 芒果瓷砖 石客照明 书香门弟地板 意大利尤勒贝特艺术涂料
安生部分作品回顾
(请点击图片了解项目的更多内容)
绍兴大滩六号院:
玩趣时代,做生活的冒险家和艺术家
康郡雅音岛1000+㎡顶级现代别墅设计
瓜渚景园800+㎡顶级湖景别墅设计
【Gray space 】
诸暨山下湖1000+㎡现代美学独栋别墅设计
柯桥景瑞望府800+㎡现代别墅设计
绍兴半岛花园1000+㎡独栋别墅设计
旧房改造Amazing colors
百合花园400+㎡ 顶层复式大平层
绍兴天工开墅600+㎡优雅艺术大宅
绍兴香湖岛艺术美宅
绿城玉园别墅设计
安生所获荣誉
1989-2019 全国优秀室内建筑师
2019 40 UNDER 40 浙江省设计杰出青年
2019红棉中国室内设计奖
2019红棉中国最美极简空间设计奖
2019鹏鼎奖中国当红别墅设计师
2019鹏鼎奖别墅空间金奖
2019IDG年度十大资深设计师
2019金邸奖
2018华语设计领袖榜TOP100
2018浙江室内设计年度TOP TEN
2018法国双面神全球形象大使
2018金创意奖特聘实战导师
2018中国设计星全国36强
2018IDS别墅豪宅类金奖
2018金创意奖别墅豪宅设计类金奖
2018龙承奖金奖
2018金腾奖
TOP100
2018鲁艺奖
2018中国浙江青年室内设计奖别墅豪宅金奖
2018大金内装设计大赛全国美宅设计别墅组铜奖
2017
法国双面神奖创新设计奖
2017
金创意奖别墅豪宅设计类金奖
2017
金创意奖十大创新设计师奖
2017
艾特奖
2017
IDS国际设计先锋榜住宅空间奖
2017
大金内装设计大赛全国美宅设计别墅组银奖
2016
艾鼎奖别墅空间设计金奖
2016
中国营造空间设计大赛餐饮空间金奖
2016
(IADA)国际艺术设计大赛住宅空间金奖
2016
(IADA)国际艺术设计大赛餐饮空间银奖
2016
CIID中国室内设计大奖赛别墅空间银奖
...
安生设计
是一家不断发展的设计公司,
拥有资深背景、前卫的设计师团队
,探索多元领域新知,对设计有着共同的热情。通过室内综合设计,为客户提供高素质、创意十足的设计方案。
安生提供别墅、大宅、办公、会所、展示等空间设计服务。
▲
安生设计咨询
▲
安生官方联系渠道:
地址:浙江省绍兴市越城区金德隆创意园4-207室
客服
消息
收藏
下载
最近



























































