查看完整案例

收藏

下载

翻译
Tipología:Colectiva Vivienda
Fecha:1994 - 1997
Ciudad:Ámsterdam
País:Países Bajos
Fotógrafo:Christian Richters Rob't Hart Thijs Wolzak Samuel Ludwig
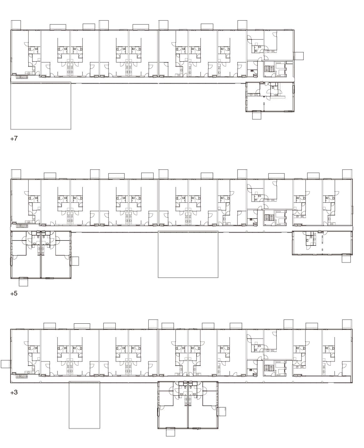
Localizado en las áreas de ciudad jardín levantadas a mitad del siglo pasado al oeste de Amsterdam, el edificio forma parte de un plan de densificación propuesto durante los años 1990 que, aplicado a esta zona, suponía una amenaza para los grandes parques y zonas verdes que la caracterizan.
El solar, destinado a albergar 100 apartamentos y servicios para personas mayores de 55 años, es muy alargado y con orientación norte-sur. Las viviendas adoptan un módulo ancho en fachada de 7,20 metros para compensar así la falta de fondo derivada de la estrechez de la parcela. Sin embargo, con este módulo, sólo 87 apartamentos podían ser alojados en el volumen de manera que se asegurase el correcto soleamiento de todas las unidades. Esto motivó que las 13 restantes se colgasen de la fachada norte, cumpliendo con la normativa y evitando ocupar más suelo. Dispuestas en voladizo y orientadas por sus laterales a este y oeste, las viviendas se abren a las vistas sobre el pólder cercano. Las variaciones en la posición de las ventanas y en los materiales y tamaño de los balcones dotan a cada apartamento de un carácter propio. Al colgar las viviendas y dejar libre el terreno inferior, el WoZoCo se ha logrado establecer como un modelo de crecimiento para estas áreas que respeta las zonas verdes históricas.
客服
消息
收藏
下载
最近





















