查看完整案例


收藏

下载

翻译
Tipología:Colectiva Vivienda Torre
Material:Hormigón
Fecha:2002 - 2006
Ciudad:Madrid
País:España
Fotógrafo:Luis Asín Roland Halbe
Marca:Geasyt GOGAITE
El proyecto estudia el carácter que debe tener una actuación en la ciudad hilvanada con la ordenación próxima, con el entorno, el parque y las amplias vías que lo envuelven. Se trata no solo de resolver el programa de vivienda social, sino de aprovechar la capacidad de ordenación del conjunto para articular el espacio en beneficio de la ciudad.
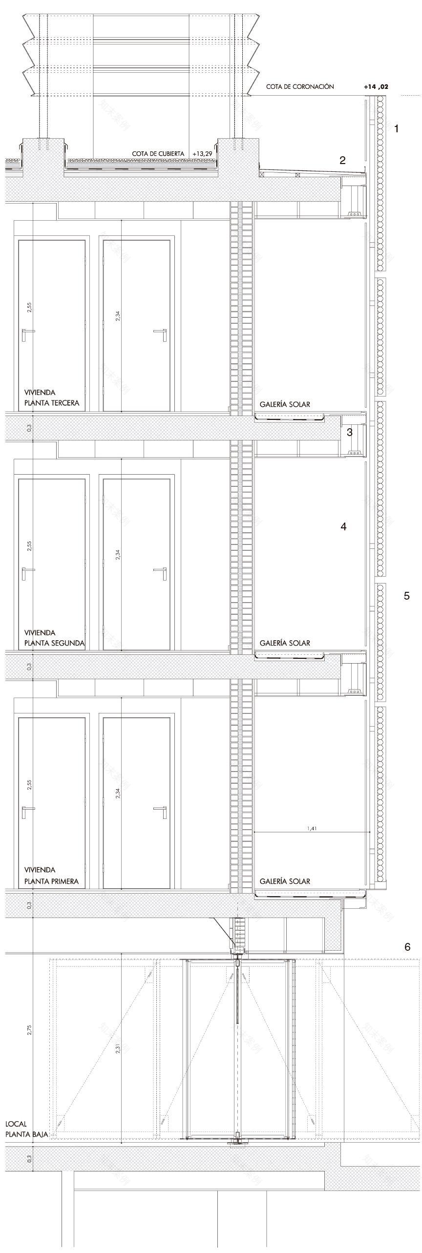
Los volúmenes se despliegan en planta y en altura hasta convertirse en una torre doble en el vértice del solar en la que se concentran las vistas sobre el parque. El plano de apoyo continuo se quiebra mediante rampas y se rehúnde para ser basamento común y acceso a los portales. Los espacios públicos abiertos se encadenan con los edificios de forma que la linealidad del bloque abierto no excluye la formación de espacios de pequeña escala y fácil mantenimiento, en los cuales quedan inmersas las unidades edificatorias, propiciando visiones longitudinales, transversales y diagonales. En las viviendas, la zona de día pasante en el ancho de doce metros del bloque permite la ventilación cruzada y variantes con diferentes combinaciones, que se traban alternativamente a un lado y otro para componer las fachadas en las que aparece el hormigón estructural plementado con grandes piezas prefabricadas de hormigón estriado oscuro.
客服
消息
收藏
下载
最近




















