查看完整案例

收藏

下载

翻译
Tipología:Palacio de congresos Cultura / Ocio
Material:Cerámico Hormigón
Fecha:2000 - 2003
Ciudad:Castellón Peñíscola (Castellón)
País:España
Fotógrafo:Lluís Casals Roland Halbe
Marca:GOGAITE
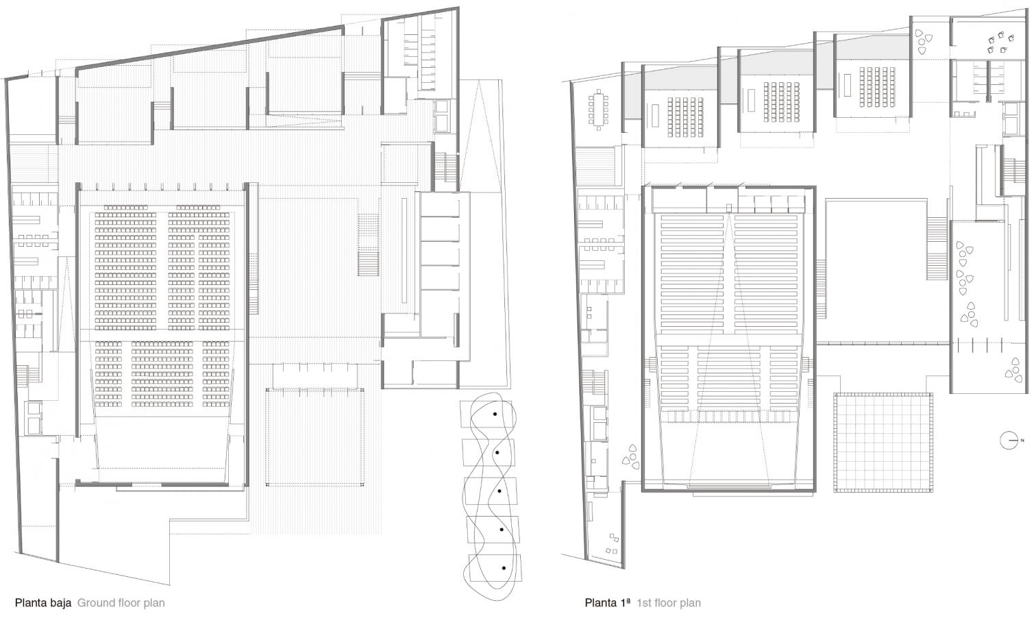
Su situación al pie del Castillo de Peñíscola, frente a un jardín en segunda línea desde el mar, define la propuesta y explica la razón de ser de este equipamiento cultural. La voluntad de vincular los espacios interiores al parque y a la vista del mar ha determinado una imagen continua y cerrada hacia las calles perimetrales y fragmentada y abierta en la fachada de acceso desde el jardín, liberando una amplia plaza. Un umbráculo, transición entre exterior e interior, es la pieza que materializa tanto este acuerdo como la imagen del edificio. Se construye con piezas cerámicas, formando un tejido tridimensional que se desliza entre los volúmenes de hormigón blanco. Esta celosía, permeable al aire pero a cubierto de la lluvia, es lugar de encuentro y antesala del vestíbulo que da paso a las distintas partes del programa, concebidas como piezas autónomas.
En planta baja se sitúa el acceso a la sala principal y el área de exposiciones; en planta primera las aulas de congresos y la cafetería, que busca la visión del mar a través de una terraza mirador. La sala, de 700 plazas, se desarrolla en un único plano continuo de suave pendiente, cubierto con una losa ondulada de hormigón visto que incorpora en su estructura los condicionantes de la acústica; como contrapunto, los laterales se revisten de listones de madera.
客服
消息
收藏
下载
最近






















