查看完整案例

收藏

下载

翻译
Tipología:Ayuntamiento / Gubernamental Institucional
Material:Hormigón
Fecha:1993 - 1998
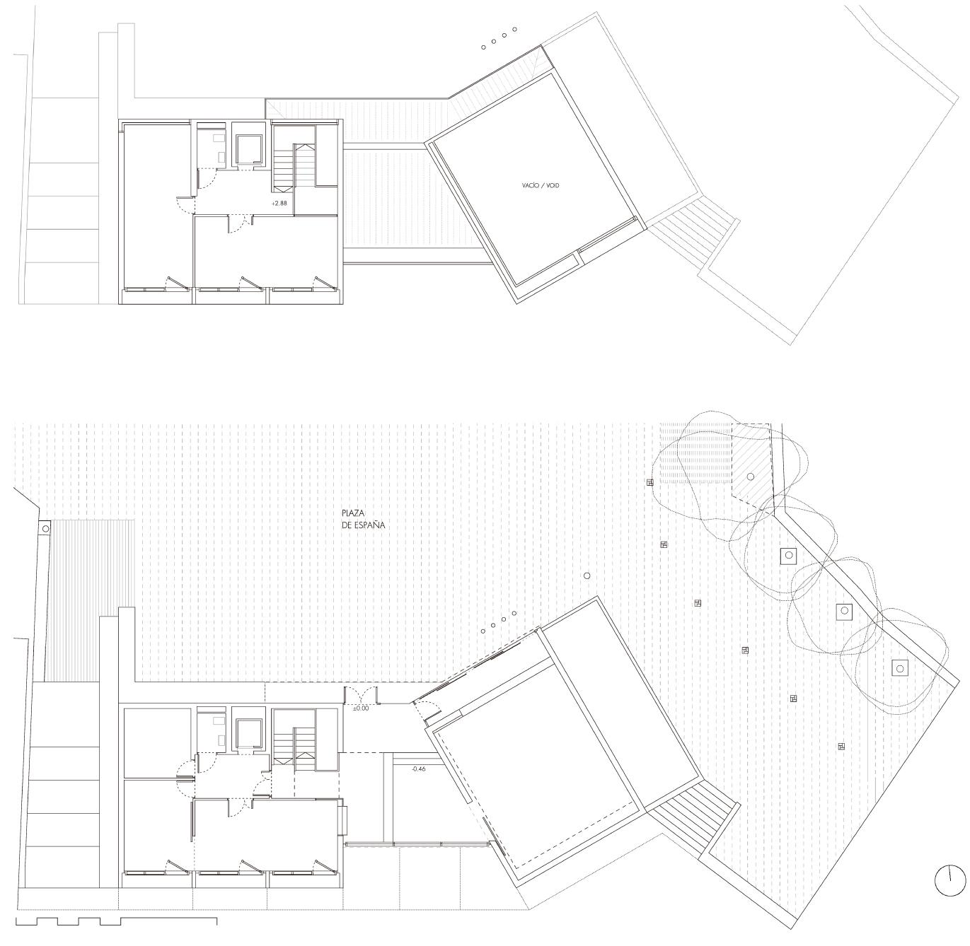
Ciudad:Valdemaqueda (Madrid)
País:España
Fotógrafo:Eduardo Sánchez PPA
Marca:Geasyt GOGAITE
En el límite de la Comunidad de Madrid, Valdemaqueda está inmerso entre pinares en una ladera orientada a sur. La carretera atraviesa el municipio, de casas dispersas, y en la plaza —antes sólo un ensanchamiento de la vía— se sitúa el ayuntamiento, que salva un desnivel de dos metros con el prado sobre el que se asienta. Independientemente de su dimensión, el proyecto suscita una reflexión sobre su capacidad de ordenar el entorno próximo sin distorsionar la escala existente. En este sentido el objetivo de la propuesta es la configuración y ordenación de la Plaza hacia donde el edificio presenta su fachada más representativa y su integración en la escala de la trama urbana. El conjunto completa la plaza y se quiebra para adecuarse a su insinuada concavidad, fragmentándose en dos volúmenes unidos por un vestíbulo acristalado que les da acceso.
Los elementos de la estructura de hormigón vista configuran los cerramientos exteriores integrando el edificio en la escala cromática del lugar y logrando con la solidez material su estabilidad en el tiempo. En la cara sur la estructura se plementa con placas de pizarra y carpintería de aluminio. En la cara norte, el ventanal hacia la plaza, el reloj en el muro de hormigón y los mástiles recuerdan el carácter institucional del pequeño edificio.
客服
消息
收藏
下载
最近



















