查看完整案例

收藏

下载

翻译
Tipología:Museo Centro de visitantes Rehabilitación Cultura / Ocio
Material:Metal
Fecha:2008
Ciudad:Pedrosa de la Vega (Palencia)
País:España
Fotógrafo:Roland Halbe
Marca:GOGAITE
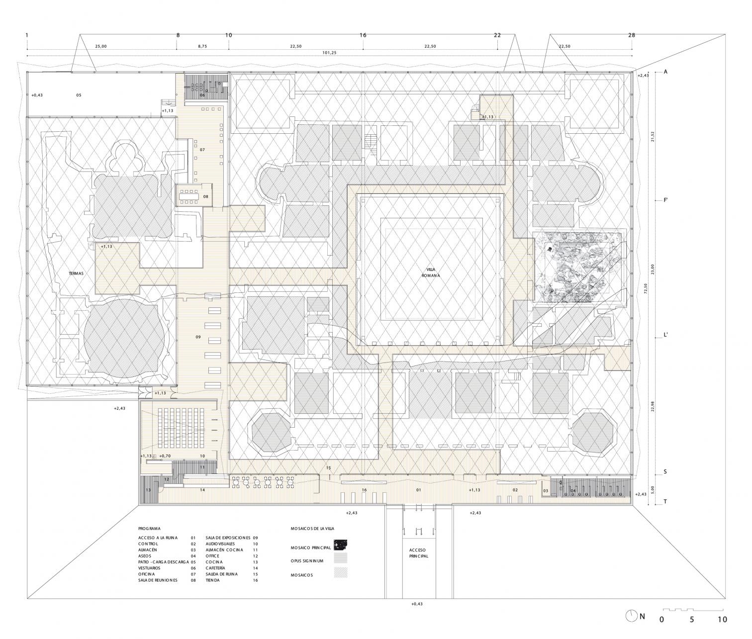
En la intervención realizada para la protección del yacimiento arqueológico de La Olmeda, la antigüedad se confronta con la modernidad y la arquitectura con el paisaje. Desde estos conceptos se pretende transmitir al visitante el carácter unitario que tuvieron los fragmentos del pasado sobre los que se asienta. Protegidos por una piel de chapa perforada de acero y policarbonato que envuelve el recinto y matiza la entrada de la luz natural, se integran los distintos elementos del programa: la villa y las termas con sus mosaicos, el museo y un centro de estudio para arqueólogos.
El recinto arqueológico se organiza en cinco naves, bajo una gran cubierta continua que protege todo el área apoyada sobre pilares metálicos que delimitan un patio. Las bóvedas rebajadas de la cubierta se han resuelto mediante un entramado estructural de base romboidal construido con tubos de acero revestidos exteriormente de chapa de aluminio que muestran un acabado artesonado hacia el interior. La extensa ocupación del yacimiento y la conveniencia de mantenerlo inalterable durante la ejecución de las obras, así como su ubicación en un medio rural justifican el empleo de un sistema modular prefabricado en taller. Las dimensiones de los elementos romboidales permiten su transporte y facilitan el ensamblaje ‘in situ’ de arcos completos, de veinticinco metros de luz, que se izaron hasta su situación definitiva para fijarlos mediante tornillos.
Desde la cubierta se descuelgan unas mallas de acero que restituyen idealmente la posición de los muros originales de la villa, favoreciendo la contemplación de los mosaicos en ámbitos diferenciados y mostrando la disposición original de las diferentes estancias de la villa. Una pasarela de madera ligeramente elevada sobre los mosaicos conecta todas las salas entre si rodeando el patio central, trasladando al visitante hasta las termas y conduciéndolo a través de los ámbitos que componen el programa funcional del espacio museístico.
Las estancias pavimentadas de teselas se iluminan puntualmente enmarcando los mosaicos. Se pretende mostrar al visitante un organismo complejo en el que se van descubriendo paulatinamente las zonas excavadas y las estancias de la villa, evitando dominar de un solo vistazo toda la excavación. La envolvente metálica perforada disminuye la densidad de la trama a medida que se asciende desde el zócalo a la cubierta para integrarse con el entorno arbolado. Su condición de piel exenta de la estructura potencia su carácter liviano que le permite integrarse en el paisaje.
客服
消息
收藏
下载
最近
















