查看完整案例

收藏

下载

翻译
Tipología:Cultura / Ocio
Material:Madera
Fecha:2015
Ciudad:Begues (Barcelona)
País:España
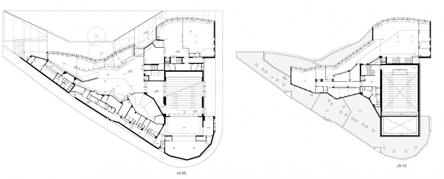
En el municipio de Begues, en el parque natural del Garraf, se levanta el nuevo edificio cultural mixto que engloba el Centro Cívico El Roure y la Biblioteca La Ginesta, además de un pequeño teatro polivalente —para 336 personas—. La obra, de carácter municipal, es fruto de un proceso de trabajo común entre técnicos, ciudadanos y administraciones públicas. Este equipamiento se vertebra en torno a dos objetivos principales: generar una ‘plaza interior’ de confluencia vecinal y sintonizar con el entorno, llevando a cabo una recuperación paisajística de la Riera Fonda de Begues.
El proyecto, ubicado en un solar triangular que bordea el arroyo, toma los límites del solar como propios y lo ocupa en su totalidad, generando una construcción horizontal integrada en el paisaje. El edificio, que aglutina los tres elementos del programa, se desarrolla a partir de un ‘ágora’ capaz de articular a su alrededor los diversos espacios funcionales.
El interior se organiza en estratos longitudinales que siguen el trazado de la Riera y dan lugar a espacios de diferente naturaleza: los más diáfanos y fluidos, como la biblioteca, el bar o el punto joven, se sitúan cerca de la fachada de la riera; mientras que los más opacos y privados, como el teatro o las salas de ensayo, se emplazan hacia la fachada encarada con la montaña. En el exterior, la obra cataliza la revitalización natural de la riera generando, por un lado, un paseo adyacente que da acceso al equipamiento y, por otro, un camino que conecta con la otra orilla. El paseo se ensancha a su paso por el punto donde un roble, de carácter casi totémico, se erige dando nombre al centro, y aparece así una suerte de terraza-mirador. Por su parte, el nuevo camino une el centro cultural con el antiguo matadero.
Diseñado con criterios de sostenibilidad, el edificio cuenta con una central de biomasa y con un sistema de autoabastecimiento de aguas pluviales en cubierta, que se conecta a un depósito situado bajo tierra y que da servicio a los sanitarios. Por otro lado, y respondiendo también a un alto interés por la eficiencia energética, las dos fachadas principales se configuran de forma diferente según su orientación y función. Así, la fachada principal se resuelve a través de una doble piel, con una primera capa de entramado de pino y una segunda de vidrio, que con sus elevadas prestaciones térmicas posibilita el disfrute de la luz de norte en el espacio destinado a biblioteca. Por su parte, la fachada que cubre el teatro y el centro cívico se soluciona mediante un sistema ventilado con aislamiento de corcho y madera de pino termotratado.
客服
消息
收藏
下载
最近









