查看完整案例


收藏

下载
“大都会”风格有着丰富的线条装饰,以冲入云霄的气势与繁茂丰美的顶冠为多数人辨识。
此方案,设计师打破了传统的“大都会”理念,将全新的元素注入“大都会”风格中,以造型简洁、色彩明快的空间氛围,展示出城市时尚以及前卫的气质。
在室内设计上,设计师充分利用现有建筑的空间进行再设计,以创造出一个布局合理、动线流畅、舒适高雅,且有利于经营管理的室内空间。例如,充分利用室内建筑主体结构的优缺点,通过不同形式的隔断,将空间形成一个又一个虚拟空间,使不同功能的空间既能彼此独立,又能保持大空间流通上的整体一致感。
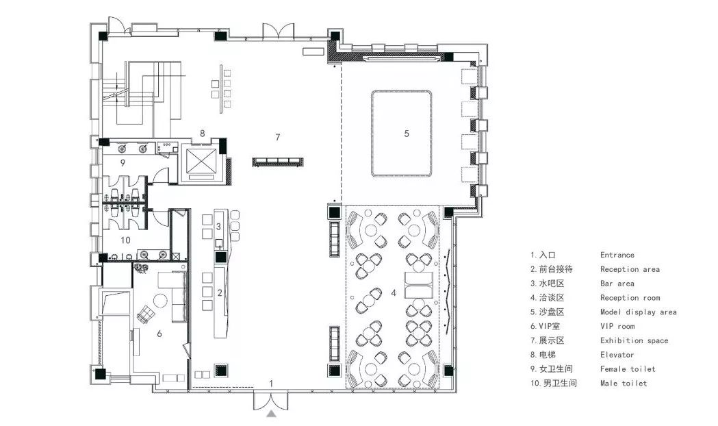
售楼处的建筑空间较为四方平整,设计师用精致的铁艺书架及大理石墙体划分出空间的段落,使四方的室内空间营造出不同的空间场景。
售楼处另一个引人注目的地方是接待区的背景墙,六边形蜂窝元素的设计,搭配轻盈简洁的接待台,加上琉璃支状吊灯,奠定空间的简洁而不失华丽,高雅的设计基调。
洽谈区用宝石蓝作为主色调,加以黄色、绿色的明快色彩,丰富空间层次。线条柔和的沙发有序地布置在空间中,中和了空间直线条的硬朗,反而增添了一分活跃热情的气质。设计师在空间布置中还运用精致的金属镂空屏风,呼应着空间材料、色调,围建起相生相通的几大功能空间。
沙盘区的构设中,由几何线条、块面组合而成的大型金属灯饰,呼应着空间的主旨。展现出有别于现代主义冷冽的感觉,造型简洁、质感精致、大方流畅又简洁完美,流露出一种低调的奢华。
VIP室的设计很好的叙述了什么是空间的美。即由那些被细致甄选的本质性元素,从形式到精神的提纯过程中展演而来,而非只是一些单纯的表面装饰。
科技与创新将成为未来重点,这意味着更多的青年白领成为主体客户。从繁忙的工作中回到家,他们更渴望将喧嚣褪去,让所有感官在静谧中自由舒展。因此该项目的住宅设计理念以“于繁忙中,重拾安静”作为整个空间的设计出发点,通过简练的设计语言营造安定闲适的氛围。
整体空间以灰白为底,深浅不一的蓝色叠加其上,在简约的空间中变化多种层次,同时也使小空间更为通透。我们在蓝色中感到一种无限的呼唤,对纯净超脱的渴望。
客厅以大面积玻璃窗引入自然,缓解小户型的压抑感。光线洒入空间,可享受午后小憩、对弈的乐趣。家具整体形体简约,但又不失细节。线条装饰、拉扣等工艺体现设计师对细节的追求,也满足住户对设计感和品质感的诉求。装饰画通过色块构成抽象的人形,打破原先线条构成的理性框架,给平静和谐的空间带来一丝趣味与灵动。
视觉上沿着吊灯旋转而上,延伸至一个两层高度的大书柜,为住户提供了大型的储物空间,同样可作为生活或旅行的记录之处,亦或是艺术收藏空间,充满多种可能性。
餐厅与客厅相连,充分利用空间满足生活的基本需求。视觉沿着玻璃吊灯旋转而上,延伸至一个两层高度的大书柜,为住户提供了丰富的储物空间。他可以摆放自己闲暇之时阅读的书籍,或是旅行带回的纪念品。此处空间作为生活或旅行的记录之处,充满多种可能性。
二层卧室延续一层空间的蓝色调,舒适而放松。放置一瓶香薰,为整个空间增添了生活的情调。生活在这样的一个空间,让浮沉于世的疲倦都得到安放与慰藉。
而另外一套定义为一位年轻女性的个性住宅,从事时尚编辑工作,平日广交朋友,热情活泼。我们从色彩入手,红色为空间定义了热情,黄色体现了空间的活泼,蓝绿色与前者碰撞出更缤纷的空间色彩。将身份认同与自我主张转化为空间形式与崭新的生活姿态,从而立体的刻画了居住者的个性。
餐厅采用碰撞的色彩来提亮丰富空间,设计让灯成为空间的艺术装置,如梦幻水晶球般的吊灯,自二层飘落而下,营造浪漫氛围的同时,连接上下层,使空间更为整体。餐厅的边上既是书桌,书桌区拥有连贯两层的柜体,超大的储物空间满足女主人收集时尚杂志及手工艺品的爱好。
从设计角度出发:客厅选用造型极简的无扶手沙发,不会增加空间的视觉拥挤度。将多人沙发、飘窗、单人沙发连成一体,最大限度的增加了会客空间。从人物感受出发:想象坐在飘窗前,阳光透过玻璃散落室内,女主人与闺蜜闲聊小聚、举杯畅饮,或实在是一种自在愉悦的享受。
二层为休息空间,相对柔和的色彩更能让人安心。主卧大面积的选用了暖黄色,活泼且明快。迎合女主人从事时尚编辑的人物设定,设计选用复古手提箱造型的床头柜,丰富空间色彩与人物个性同时搭配大幅女性主题的装饰画,在无形中延伸了整体空间的色彩风格,凸显女主人的时尚前卫与自我主张。
时尚编辑是一份需要更多灵感与美感的工作,意在追求新的事物,因此次卧不同以往的设计。在不想沿用传统床背的想法之下,怎样的设计才更适合居住者的个性。最终选择由不同切割角度、不同面料材质所组成的更多元化、更有趣的床屏,使之丰富空间氛围与贴合人物特性。同时次卧拥有更多的储物功能,在此收藏并展示女主人心爱的服饰与包包是再好不过的选择。家是属于自我的空间,也应反映着自我。从自我出发,设计便拥有了意义。
∇ 售楼部平面
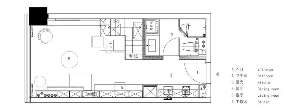
∇ 一层 户型1
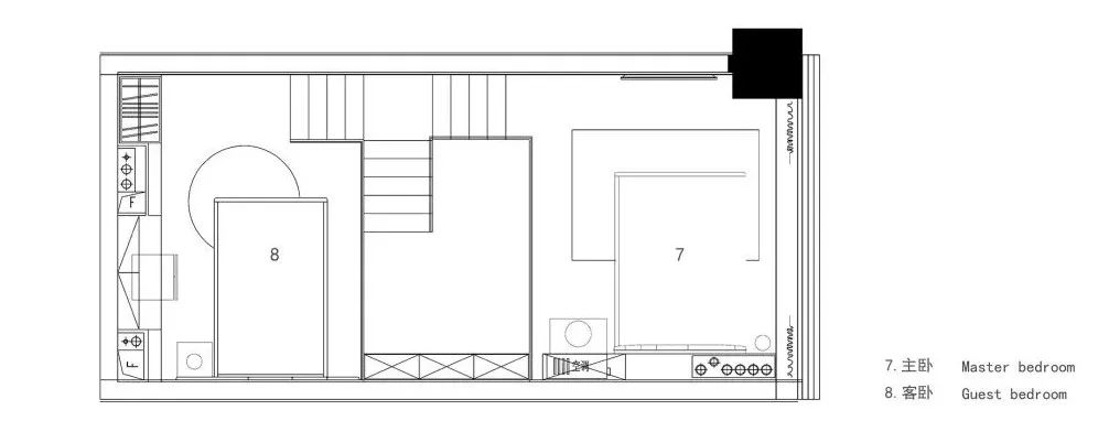
∇ 二层 户型1
∇ 一层 户型T
∇ 二层 户型T
完整项目信息
项目地点:浙江杭州
设计面积:670 m2
完工时间:2018年12月
主要材料:艺术玻璃、爵士白大理石、南斯拉夫大理石、仿石材香槟金镜面不锈钢、GRC
设计服务项目
SERVICES
1:室内设计
INTERIOR DESIGN
客户信息采集,空间户型优化设计,材料运用设计等。
2:陈设设计
DISPLAY DESIGN
陈设方案设计,物料清单,落地摆场。
3:住宅建筑设计
ARCHITECTURAL DESIGN
加盖加建,结构改造等。
设计流程
DESIGN FLOW
1:信息采集-合同-场地勘测-开始设计工作
2:方案推敲-空间梳理-户型优化设计(第一阶段)
3:全案SU模型及动画表现空间结构组成(第二阶段)
4:深化图纸(第三阶段)
以上设计周期为30个工作日-以下为设计服务项目
5:陈设方案
6:物料表
7:设计跟踪
A+one空间设计事务所 / 西安独树装饰装修工程有限公司
Architecture & Space Design Studio
地点:西安市高新区唐延路11号
禾盛京广中心(T11 Block)C座1404
Add:Block C 1404, Hesheng Jingguang Center
No. 11 Tangyan Road, Xi'an High-tech Zone
Phone:+86 18710440444 / Fax:+029-89181816
T H A N K S
客服
消息
收藏
下载
最近


































