查看完整案例

收藏

下载

翻译
Tipología:Institucional Rehabilitación
Material:Metal
Fecha:2015
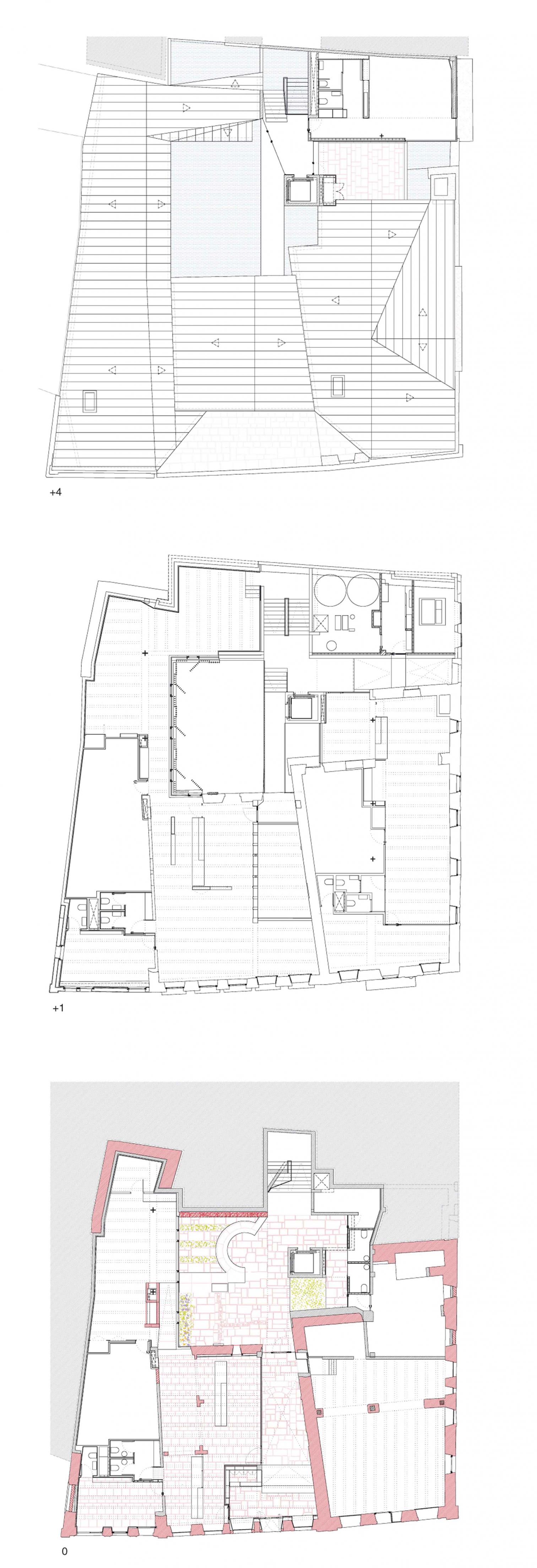
La nueva sede de los Registros de la Propiedad de Vigo se sitúa en el centro histórico de la ciudad y rehabilita un ámbito ocupado por cuatro antiguos edificios domésticos. Siguiendo estrategias de rehabilitación, reestructuración y sustitución parcial, la obra busca el equilibrio entre la unidad conceptual que requieren los edificios públicos y la conservación de los valores históricos y ambientales de las preexistencias urbanas. El proyecto se organiza en torno a un claustro distribuidor, resultado de la suma de los patios preexistentes, que adquiere una escala pública e identitaria y aglutina todas las funciones de la obra. Al resolver con un único desnivel las cuatro cotas del antiguo conjunto, se pueden mantener los muros y fachadas compatibles con el nuevo programa. Así, la distribución espacial se flexibiliza y se abre a diversas posibilidades: salvo el paquete compacto correspondiente al archivo y a los servicios, todo el espacio es continuo.
Para prolongar el espacio público de la ciudad hacia el interior, se recuperan los enlosados y muros pétreos existentes en las dos primeras plantas. Además, los restos de los muros caídos o alterados dejan su ‘traza’ vista, como un recuerdo de la evolución histórica de las fincas. El acceso es único y permite entrever la escala pública de la obra, presentando un espacio de doble altura que deja ver el patio desde la calle y recupera la idea tradicional del atrio como espacio de tránsito entre la ciudad y el edificio. Los huecos no se modifican, pero se les atribuye una materialidad diferente cerrándolos con vidrio de carpintería oculta, de manera que la poderosa sombra del espeso muro es capaz de evidenciar tanto el paso del tiempo en el centro urbano como el cambio de uso que ha experimentado el conjunto.
Al apoyarse sobre los antiguos muros, convenientemente saneados y reforzados para asumir las nuevas sobrecargas de uso, éstos conservan su función estructural y su valor catastral histórico. Así, el proyecto se desarrolla de tal modo que cada elemento funciona para aquello que fue diseñado, sin necesidad de plantear una falsa estructura superpuesta. Las fachadas conservadas se trasdosan de manera puntual, para generar una serie de hornacinas abocinadas de madera en los huecos que maximizan la entrada de luz natural. Para cerrar el patio se utiliza una fachada de vidrio con una carpintería metálica practicable y cubierta con lamas de madera móviles, lo que permite optimizar la iluminación y la ventilación de las oficinas y las áreas de circulación.
客服
消息
收藏
下载
最近



















