查看完整案例

收藏

下载
餐厅大堂空间
ArchUnits/一栋设计工作室为一家入围米其林餐盘的 fine dining 餐厅设计了全新的就餐空间。新店位于三里屯,与 Wolfgang’s steakhouse、屋里厢等星级餐厅为邻。
餐厅外立面,朝向内部街道。在与业主的前期沟通中,我们意识到餐厅的规模和投入预算与几家星级餐厅邻居相去甚远,同质化的空间比拼并不划算。因此,差异化的设计策略就很有必要:不与大餐厅们争艳,反以一种不施粉黛的姿态,聚焦于“光”的营造。以“光”塑就的如美术馆般的艺术气息和环境氛围,非常契合地诠释了这家意-日融合料理的创意性和高级感,为顾客提供一种非日常性的就餐体验。
空间轴测图
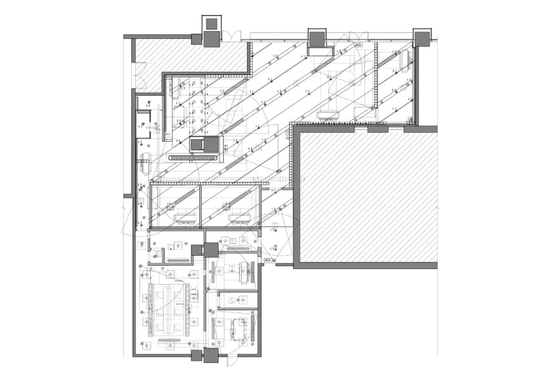
餐厅位于大厦一楼,面向内部街道,空间呈不规则的 L 型。建筑师将具有自然采光的 L 型一翼全数安排给就餐区域,更需要隐私性的包间以及后厨则布置在了 L 型另一翼。主厨与顾客交流的开放式吧台,作为餐厅的一大特色,则被布置在了 L 型转角处,吧台的一边方便与后厨往来,另一边又能使主厨照看到大堂的所有就餐位。
餐厅大堂空间
光之连续拱
对于 fine dining 餐厅,菜品才是主角。设计概念从一开始便集中在如何更好地呈现美食。这很容易使人想到美术馆:虽然需要呈现给访客的客观物体不同,但两者对光的运用本质是相同的。
照明和空间概念原型
于是我们借机致敬了路易斯.康经典的金贝儿美术馆,以拱顶作为出发点,发展出了餐厅独属的光与空间的原型:一根垂挂的轨道杆整合了餐厅所需要的全部照明,上照的线性灯带微微照亮了拱的中央,负责提供漫反射后的柔和氛围;窄光束角的下照轨道射灯则可自由调节位置和角度,将光束聚焦在餐桌,负责呈现食物的美妙(以及顾客拍照打卡的需要)。
大包间内部
包间外侧走道
模糊的室内外
空间的其余部分则尽可能的质朴,以暗哑的质感退隐在“光”的幕后,也无声地传递出这家餐厅与光鲜亮丽大型餐厅的与众不同。水泥和碎石子地面、以及黑色空心混凝土砌块墙面这些在建筑外部更常见的材料,和大株植物一起,为餐厅打造出一种休闲的“室外感”。局部的等候区、入口、吧台等处,也采用了室外景观更常见的台阶、汀步方式,呼应了这种将室内“建筑化”的手法。
大堂走道,通向包间
入口玄关等候区
顶部的拱也被延伸到了室外,进一步模糊室内外边界的同时也成为了入口雨棚。这些被轻微照亮的连续拱,作为空间内部最重要的元素,又在外立面上被视觉强化,成为了餐厅的独特标志。
入口玄关等候区的细节
墙面材质细节
上下交错的并置
餐厅的平面组织并没有顺应着顶部连续拱展开。这是由于餐厅平面的不规则,导致没有宽敞的大空间,尤其入口处的空间较为狭促。因此,我们扭转了连续拱的网格方向,使其斜向地从入口径直向空间深处延伸,通过视线的引导扩大访客的空间感知。
入口玄关
餐厅大堂望向玄关,这套天花斜向体系与地面正交体系呈 34 度的锐角交错。为了进一步增强这种交错并置所带来的空间张力,上下体系互相独立,绝不粘连。所有墙面均不碰触天花,即使在需要隔音需求的大小包间,我们也是通过存在感近乎于零的超白透明玻璃来填补墙面与天花之间的缝隙。
天花与墙面交接细节
上下两重体系的衔接点在入口的接待台。它是进入餐厅的第一站,也是空间张力的引爆点。以异形 GRG 将接待台-衣帽柜-玄关屏风三种家具整合成一个连续形态,也是空间里唯一同时呼应了两个方向体系的地方。
玄关接待台与 Pasta 展示墙细节
反差对比的局部
餐厅的大调性设计至此已足够整体。因此在设计细节上,我们选择了以局部的反差对比来增强戏剧冲突,从而增加餐厅的艺术性和小趣味。
洗手台细节
处在空间核心的吧台由哑光不锈钢板包覆,相比周围颜色相同的质朴墙面多了一丝光泽。
吧台背景墙面由鳞片状大小渐变的松木板组成,与黑白灰的主空间形成寡淡与温暖的对比,同时也彰显了吧台在空间中的重要位置。
吧台近景细节。卫生间同样以反差增添了戏剧张力。当顾客通过幽暗的走道打开卫生间的门时,黑白的对比使人眼前一亮,波纹不锈钢板形成的光影丰富而浪漫,又再次与外部的诧寂形成分为上的鲜明对比。
卫生间外部的黑与内部的白
技术图纸
平面图
综合天花图
项目信息
项目名称:Amico BJ 餐厅
项目设计:ArchUnits/一栋设计工作室
设计团队:张朔炯、Gala、郭培健、倪晨昊、施捷雨、于洋
照明设计:张宸露
机电设计:钦浩、申展名
施工:北京中亿装饰工程有限公司
摄影:吴鉴泉、ArchUnits 一栋设计
项目面积:300 m2
项目地址:北京市朝阳区
设计时间:2020.07-2020.09
施工时间:2020.10-2021.02
ArchUnits/一栋设计工作室 2016 年由张朔炯在上海建立,一直致力于数字化设计在建筑、空间、装置展陈等全尺度领域的实践,以创新的设计去回应当代与传统、技术与艺术的融合。工作室如其名,将设计项目视作一个个设计研究小组(unit),以理性的研究方式切入,目的却是激发起人与空间的感性连接。目前,工作室正在商业办公、文化艺术空间以及城市和乡村的建筑更新等方向积极探索。作品先后获得中国建筑学会、美国照明工程学会等业内权威机构奖项。
客服
消息
收藏
下载
最近
























