查看完整案例

收藏

下载
项目名称: 安吉尔庐度假酒店
设计单位: 中国美术学院风景建筑设计研究总院有限公司
主创建筑师: 黄志勇,马列
顾问建筑师:沈乐,杨金波
设计团队:林燕华,丁田亮,梁章孟,黄晓峰,杨建,王杰杰,吴艳华,黄晓松
软装设计:杭州三相建筑设计有限公司,林永锋,王杰杰,吴艳华
软装配合:杭州嘉迪文化创意有限公司
施工图配合单位:浙江中汇华宸建筑设计有限公司杭州分公司
项目详细地址: 浙江省湖州市安吉县天荒坪镇港口村陶子坑自然村
项目完成年份:2018年
建筑面积(平方米): 1103平方米
灯光顾问:杭州乐翰照明工程有限公司,西顿照明杨萍兰
起
享闲暇之福
,宁静致远,心无芥蒂,一扫尘世缘系之忧。如静静竹林清净怡人,求澄然之境。澄然居起于明朝学士崔铣”六然训”之无事澄然,意在追求平常心,追求凡世尘嚣中的片刻宁静。
源:安且吉兮
尔庐·澄然居位于浙江省湖州市安吉县天荒坪镇港口村陶子坑一山路处,此处山川被竹林覆盖满目翠绿。尔庐是与好友茶闲之余的梦想。一亩山林,一处小庐,一杯茶或一壶酒,各自取乐,轻松暇意。寻觅半年,偶遇安吉项目地,一拍即合。
场地规划
整个建筑的起形都基于平面功能的完整性。在满足空间本身的诉求与环境的融合基础上再考虑外在,顺势而为。场地比较陡,正面被一个水系阻挡,因此在空间处理上我们把入口放置在建筑的后方。这样既保证了建筑的私密性又不破坏建筑与原有场地的层次关系。还利用原有的山泉水系在场地外构筑了一个自然型水系,层层叠叠,趣意盎然。入口由停车场边的竹林进入,通过几阶台阶及一条水系步道后进入一水系灰空间。近处水杉,远处竹海。
外建筑
外建筑由两个方盒子交叠而成。一层建筑完全覆盖在植被之下以洞穴形式展现,由三个灰空间与两个玻璃室内空间组成。二层建筑形态以轻奢简练为主。
内建筑
一层为公共空间,此处设置有客厅、中餐厅、铁板烧、西餐、棋牌室,配置厨房等后勤。二层主要是“茶”“竹”“山”“涧”为主题的四间客房。并将局部地下室作为酒窖。建筑是由历经岁月洗礼的石头垒砌而成,触手可及的石墙给人一种岁月、坚硬、质朴的感觉,经过7道复杂的处理给石头带来了新的生命力。环境道用原有地势的层叠关系,取原有一处涌泉围绕建筑;植被上提取原有场地水杉作为铺垫,地面野草顺其自然生长,近处水杉野草,远处竹林环抱。
结语
不忘初心,方得始终。尔卢是三俩好友对于现世生活的一种叛逆,想着回到最初自己想要的状态,留住本心。
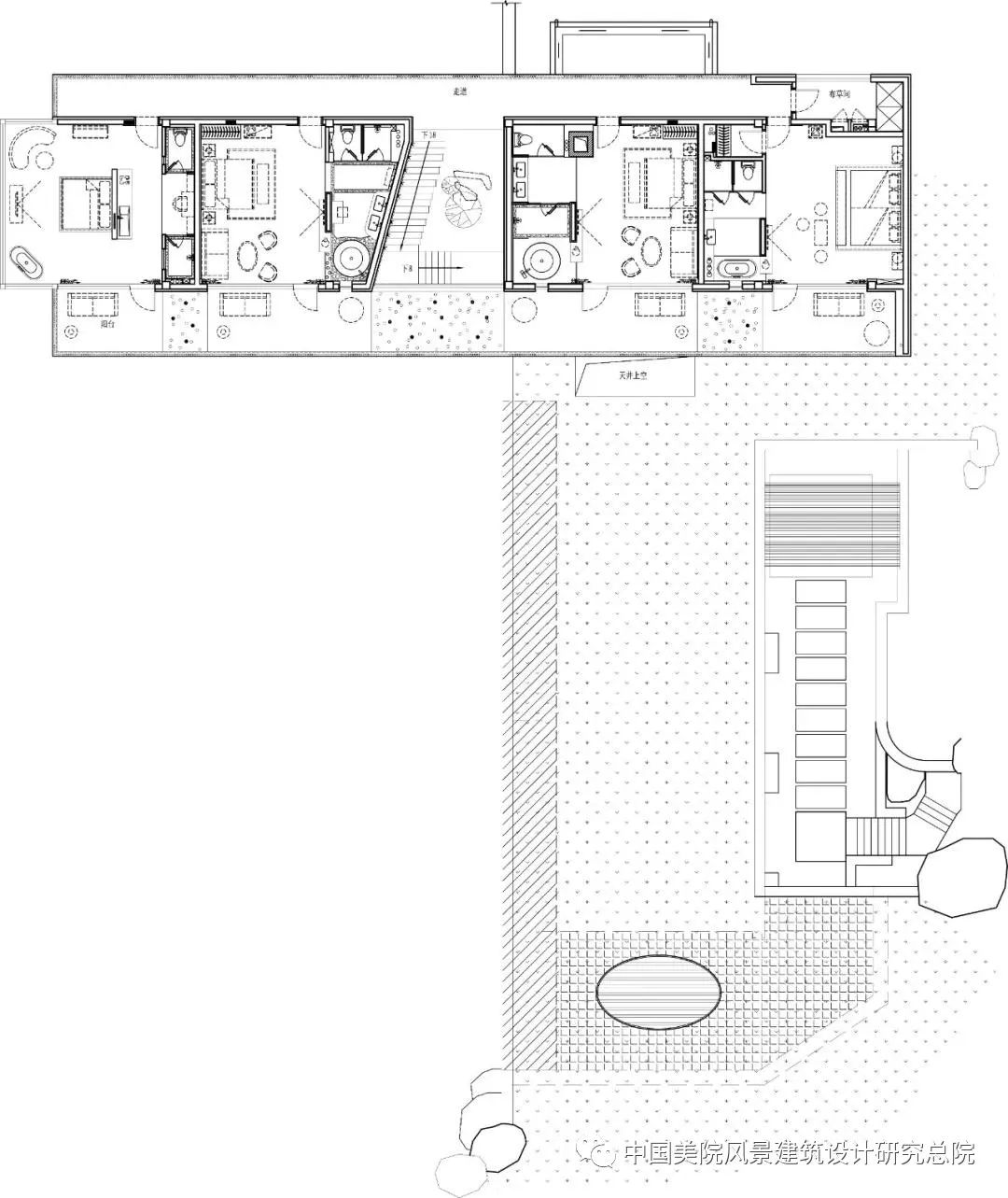
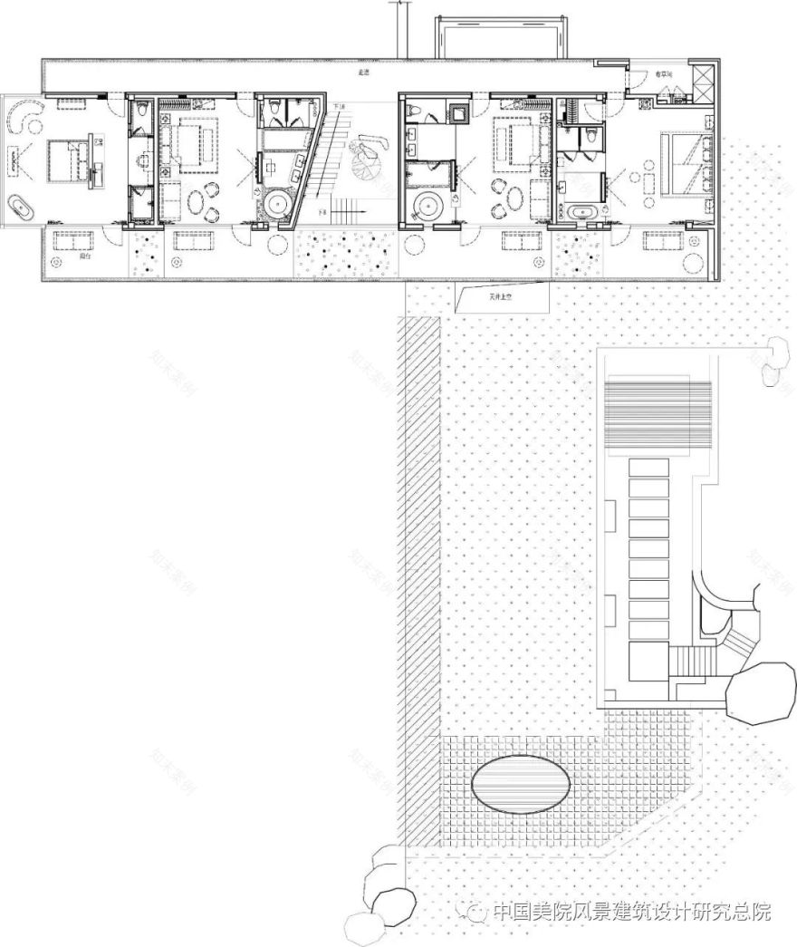
项目图纸
总平面图
一层平面图
二层平面图
剖面图
供 稿:综合四院黄志勇
责 编:吴颖
微小编:钟琦炜
客服
消息
收藏
下载
最近

































