查看完整案例

收藏

下载
一所好的宅屋,能够对生活重新梳理,带给人积极的影响,这就是家与人的共生性。业主是一对为了事业奔波不息的中年夫妻,但他们对追求美和品质依然有着不懈的热忱,期望新的家帮助他们卸下倦怠,重启对生活的美好感知。最终呈现的,是一个空间有序,阳光静好的品质居所,奔赴在业主内心最渴望的舒适区。
染色木皮有着天然的纹理与细腻的触感,空间立面通过木作的铺陈,建立起了稳妥而又优雅的秩序。
没有过多跳跃的符号和色彩,这是一个能让居者放空情绪的空间。让喧嚣退敛,沉下来,静下来,是它释放的重要感官信号。软装的铺设只需保留最具份量感的经典,整齐有序的墙面收纳柜让家精简。在这里,感受阳光倾洒、视听愉悦和家人的团聚。
楼梯位于一楼交汇处,承转连接不同的家居空间。精心设计的楼梯不仅是空间的过渡,更是全家的点睛之笔。
餐厨空间将“用”与“形”糅合统一,注重功能清晰和整洁有序,让使用者更为得心应手。
嵌入式冰箱完美融入定制的木作,餐边小吧台作为厨房功能的延展,加入了恒温酒柜与咖啡吧,增添生活闲趣。将功能分担出去后,不大的厨房也能够从容面对一天的烹饪所需。
得天独厚的落地窗让主卧呈现最为自然的光景。悬空电视墙与下方内嵌的加湿炉隔空而对,将主卧划分为休憩与更衣两个功能区。
阳光,是家最好的装饰。白色的墙板在阳光的漫反射下显得静谧柔和,在其陪衬下的软装家具也更加精致与凸显。
电视机隔断打开后也是置物柜,与相对的衣柜组成了宽敞的更衣区。靠窗一侧还留出了可开可合的梳妆台,通过长虹玻璃门隔绝凌乱。
缓缓推开隐形移门,开启身心的洗礼和净化。
内卫是最具幸福感的私密空间,选用的高端卫浴带来了不俗的质感。浴缸、淋浴、洗漱、马桶区域彼此连贯又相互独立,每一次使用都能带来愉悦。
以奶茶色主打女儿房的卫浴氛围,用深邃克制的岩石灰营造公区外卫,尝试用不同的色调表达不同的空间语境。
淡粉是女孩的专属色,女儿房的白粉搭配让空间甜而不腻。儿子房则是一抹淡绿,如初春的小草,去感受勃勃生机与活力。
多功能房留出了较大的可变空间,除了书桌,还预留了钢琴的放置区域,可供学习、练琴及牌桌娱乐。
△
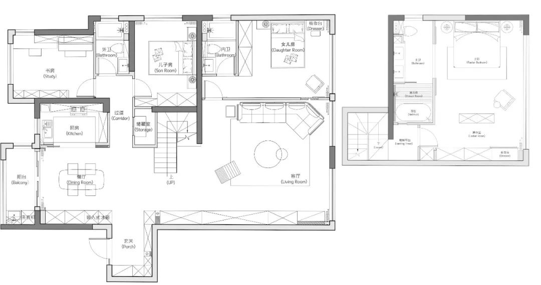
平面图
❍
项目地点 丨浙江温州 天麓西苑
项目面积 丨183㎡
设计施工 丨R’sYard 缪茹空间设计
设计团队 丨缪茹、吴锦凯
全屋定制 丨YUJAN 聿简
空间摄影 丨吴昌乐
文字/图片:R’sYard 缪茹空间设计
R’sYard 缪茹空间设计工作室
R’sYard 缪茹空间设计工作室于 2018 年创立于浙江温州,专注于人居及商业空间设计,注重生活理念的革新传递并创造更多的生活表达。
“每一寸空间,都值得被认真对待”是我们所坚持的设计主张。不管项目的规模大小和风格切换,坚持做到用人文引导设计,让空间回归人居本质。在空间、材料、造型中倾注个人的印记和情绪表达,让居者找到熟悉的生活影子,每时每刻感觉到舒适和温度。
获奖荣誉:
2021 营造家 Future50 未来私宅设计坐标人物
2021 PChouse Award 私宅设计大奖—年度城市 TOP10
2021 第十届筑巢奖 大户型专业类提名奖
2021 芒果奖—住宅/公寓空间类全国 TOP100
2020 40under40 中国(温州)设计杰出青年
2020 出口中国设计品牌计划—温州设计十佳青年品牌人物
2020 第八届 Hi-Design 设计大赛华东区优秀奖
2020 我要去米兰—杰出青年设计师奖
2020 her’s design award “她设计奖”年度优秀设计
2020 芒果奖—中国住宅优胜奖
2020 十间坊—中国城市优胜奖
2019 40under40 中国(温州)设计杰出青年
2019 中国浙江青年室内设计奖—十佳住宅公寓空间设计奖
2019 营造家 华东赛区最佳中户型 top20
2019 第七届 IDG 金创意奖商业空间/银奖
2019 芒果奖—中国商业优胜奖
2019 her’s design award 她设计奖/年度优秀空间
2019 第七届 IDG 金创意奖文化办公空间类/铜奖
2019 金住奖—中国温州十大居住空间设计师
2018 第六届 IDG 金创意奖家居空间类/金奖
2018 第六届 IDG 金创意奖年度十佳设计师
2018 40under40 中国(浙江)设计杰出青年
2018 创新中国—最佳设计作品/金奖
2018 居然设计家优秀奖
2018 m+中国室内设计大赛 年度优秀设计师
2018 红棉奖室内设计奖
2018 金堂奖 年度优秀作品
往期回顾
❍
❍ 为青年设计发声 第一时间接收精选内容
客服
消息
收藏
下载
最近




















































