查看完整案例

收藏

下载
沉稳内敛、深情似海
不是所有酒吧都与灯红酒绿有关
叮~
欢迎光临
这里是小熊酒吧
或许,从酒吧的命名就能感受到空间的气质,不是大众常见的“夜色”“玫瑰”“情迷”等字眼,亦不是三五英文字母拼装组合,小熊酒吧让人内心自然生出一种安宁感、亲切感。
这是设计师打造小熊酒吧系列的第二个门店,低造价、高格调的设计原则被一以贯之,甚至最终呈现的效果让人愈发惊喜。
引
开篇·隐趣
如果说建筑空间也是一首音乐,那么入口即为它的前奏,重要性不言而喻。
小熊酒吧从入口处便吸引了人的视线,四分之一圆的水泥灰造型不仅让店面在街边脱颖而出,在功能上也承担了缓冲区的作用,这种进门的仪式感体现的是对顾客心理的细微体察。另外,入口处作为前奏和引子,自然为整个空间定调,是整个空间风格、造型与质感的缩影。
蓝色小熊雕塑的品牌标识让人印象深刻,镶在入口处的“小熊酒吧”四字字体严谨又趣味十足,蓝色灯管与灰色墙面相映衬,且走进室内看看这首音乐到底如何赏心悦目。
弧
布局·精妙
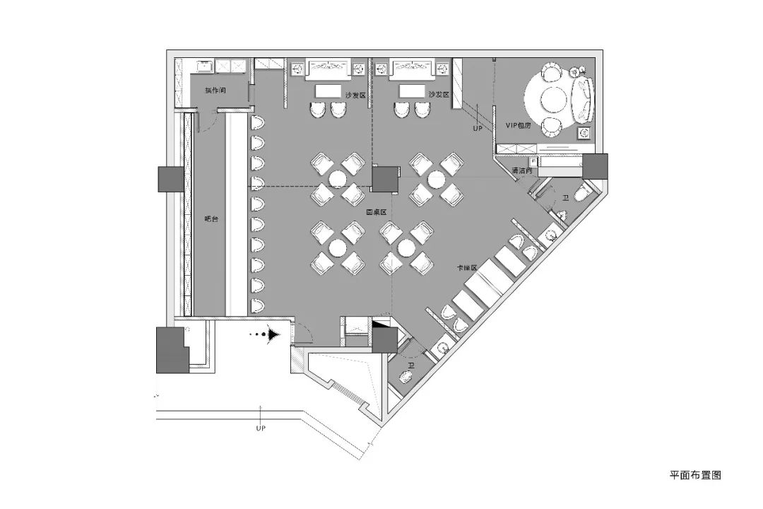
约 200 平方米的异形原始空间,中心有一根大方柱,东南方是一个大斜角,原始空间利用率较低。在这样一种有天生空间缺陷的条件下,设计师需满足业主方酒吧经营需求的必备功能空间,在此之上,美化装饰效果,凸显情景化主题,创造一个标新立异的空间故事。
设计师把酒吧经营的必备功能空间进行了划分,运用“空间内建筑”的设计手法,从空间中心的柱子向四周扩散。由中心柱子为创意点,直接将其进行延伸,“生长”出拱形的墙面造型,既回避了柱子的突兀,又以圆弧的形状为空间赋予了柔和气质,水泥墙面也不至于过分厚重。
过高的层高与过小的空间总会不可避免让人有种坐井观天的压抑感,设计师为此借用了“盒子”的概念,专门把四周的功能空间都盒子化,中心柱子延伸出的弧形墙面与四周的“盒子”相互咬合,造就了高低错落的空间层高效果,视觉方面增加了节奏感,也增加了独特的空间体验。
灰
基底·冷峻
小熊酒吧理应是一位严谨、有礼、又不失风趣的“绅士”。酒吧中的人群或许悲伤失意,或许开怀大笑,或许发呆沉闷,“绅士”总会恰到好处地给予开解、祝福和陪伴,小熊酒吧的底色是沉稳内敛的。
因此,
设计师在材质选用上挑了具有水泥质感的仿古砖以及水泥艺术漆,由此打造的灰色墙面为整个酒吧空间做了基底。
而同样在空间中占据大部分视觉面积的桌椅家具,延续高级灰这一色调,阿玛尼灰的人造皮革沙发与斑驳的大理石桌面,都是这位“绅士”的气质加持。
材质组合上,整体空间的基调运用了不同饱和度的灰色表达,水泥墙、皮质椅、大理石桌,以及盥洗空间具有灰麻质感的木作饰面,层次渐变,材质搭配完美契合。设计师可谓将灰色把玩得炉火纯青,在顶地墙与桌椅之外,吧台与酒水展示柜也令空间的灰色基底一气呵成。
浅色香槟金不锈钢镜面围合了整片及顶的墙面,创造出一个镜面盒子,为空间平添了一抹轻奢色彩。
另外,浅色香槟金镜面也与柜中整齐陈列的威士忌酒的颜色呼应,在视觉感受上也让空间得到了延伸,大面积的灰色也从“重量”上减负。
蓝
光影·内敛
严谨沉稳的“绅士”风趣之处在哪里呢?仿佛是呼应“小熊酒吧”的点名,设计师考虑到酒店的业态气质,自然也在光影设计方面下足了功夫。但是不同于常见的酒吧中的那种灯红酒绿或者暧昧昏黄,小熊酒吧选择了深沉的蓝,它是大海的颜色,是星空的颜色。
无论是卡座区还是沙发区,蓝色光影有时是视觉焦点,有时是轻盈点缀,点、线、面相互对比映衬,全都运用得浓淡相宜,恰到好处。仔细观察会发现,设计师只是将这种蓝色做了漫射的光影效果,而走廊、桌面等重点照明之处则选择了浅淡的暖光线,注重功能性的同时也凸显了蓝色的多变和浪漫。
吧台与酒柜分布之处自然也少不了小熊酒吧“绅士”的浪漫。
一面香槟金的镜子前也设置了一排蓝色的座椅,想象这样的情景:与三五友人在此小酌,自如谈笑,一旁是手艺熟练的侍应生或调酒师,抬头便是一整面酒墙。
酒精是工作之外悠闲与释压的选择,它能包容人类看似并不相通的悲与欢、哀与喜。
酒墙中投射的蓝色灯光,亦是整个空间中不可或缺的点缀,较之那一排蓝色座椅更显迷离的情调,也令一片香槟色中有了跳跃的惊喜。这是酒吧空间中独有的氛围,也是小熊酒吧给予顾客的光影礼物。
赵雷一首《成都》唱红了玉林路尽头的小酒馆,似乎每个城市都少不了酒吧、酒馆这样的所在。暗的灯光,闪烁的酒杯,唱进人心里的音乐,酒吧总是蕴藏着成千上万陌生人的情绪故事。然而,在喝酒闲侃之外,一间酒吧如何真正成为顾客的心头爱?
小熊酒吧以名字为起点,借用空间布局、空间材质、光影艺术等一系列设计元素和手法,打造了一个沉静有礼、体贴入微且拥有高品味的绅士形象,深情似海,低调幽默。待你空闲,来此小酌一杯可好?
Project Name | 项目名称:小熊酒吧
Location | 项目地址:河南省漯河市
Area | 项目面积:180㎡
Chief Designer | 主创设计师:李牧之
Designers Team | 设计师团队:程远坤 许鹏飞
Decoration Designer | 软装设计师:李靓馨
Loading Deepening | 硬装深化:许鹏飞
Design Company | 设计师公司:牧之设计
Completion Time| 完工时间:2020.10
Photography | 摄影:孔彬摄影
文字/图片:牧之设计
DESIGNER
设计师介绍
设计总监:李牧之
2008 年毕业于郑州建筑学院
2009 年进修于江西庐山艺术特训营
2009-2012 年就职于云南丽江泰和装饰酒店设计
2013 年设计游学
2017 年创立牧之设计
2018 年中国设计星
2018-2020 年带领团队搭建国内优秀设计师共享平台,服务项目分布北京、上海、广州及郑州等地。
设计师:程远坤
2009 年毕业于周口师范学院
2017 年加入牧之设计工作室
擅长空间逻辑推敲及构思,对商业店面设计有一套成熟的设计体系,优秀案例众多。
设计师:许鹏飞
2017 年毕业于河南水利水电学院
2017 年加入牧之设计工作室
2018 年进修于上海 DOP 设计
擅长施工工艺技术,拥有一套专业成熟的施工图绘制体系,项目现场跟踪服务到位,备受好评。
牧之设计成立于 2017 年,是一家致力于高品质定制化设计服务,专注于商业店面、高端私宅、软装陈设的专业设计机构。
我们尊重及热爱中国传统文化,以当代人文的国际视野,思考人、空间、自然万物的内在联系,以东方哲思形成自身独特的设计理念为委托方量身打造专属设计,备受好评。
我们的设计服务是完整地从设计到施工、建材、软装直至最终交付的全跟踪对接服务。目前公司已拥有配合成熟的设计部、软装部及合作建材品牌商团队。秉承以“利他之心”做设计、以“出世之心做入世之事”的精神,去帮助委托方解决室内设计相关事宜;以设计创意为“知”,以实际落地为“行”,用“知行合一”的思想,去实践所想即所见,所见即所得;用设计的力量使彼此同行,使彼此快乐。
欢迎投稿作品
不忘点击“”
客服
消息
收藏
下载
最近





































