查看完整案例


收藏

下载
BEAUTU OF ORDER | FUSION FREE
秩序之美
融合自在
▼平面布局图 FLOOR PLAN
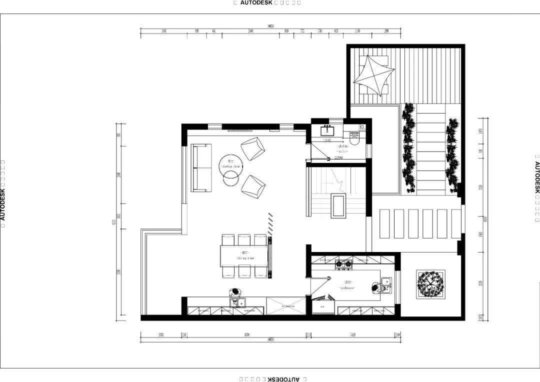
△1F 平面布局图
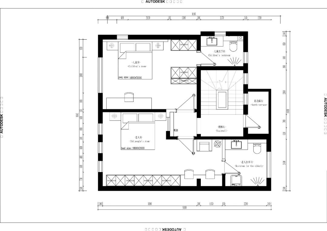
△2F 平面布局图
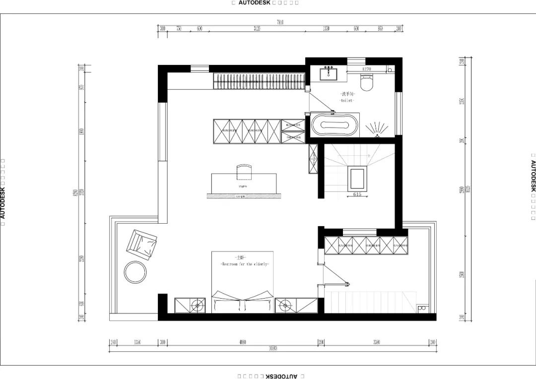
△3F 平面布局图
△4F 平面布局图
慢品人间烟火色,闲观万事岁月长,
设计让住的时光变成了慢动作,
开合之间清澈坦然,“对焦”居住内核,
设计的“内心”是拥着自然的,
本案,原始空间 265 平方米,
主要的起居生活空间都拥有丰盈的采光,
因此设计上并未做过多的空间分割,
尽量保持原始结构的通透性进行设计优化,
解决不同功能区域在同一空间的融合与独立,
设计师依着屋主的居住需求和设计的延展性,
改造后扩充至 305 平方米,
再加上 130 平方米的花园,
取禅意之静雅,让自然内有人。
· P time.1·
从相序而接的延展开始
It is followed by phase sequence
希望时间在这里浸润出安谧
静美但温软
I hope the time has calmed down here
Quiet but soft
原始的空间格局非常不错,四层的空间定位不同的主功能,再相序而接,设计师通过梳理不同楼层的主功能展开空间的情境区域设置,一层空间作为会客公区,设计一款电视短墙,将客厅和茶区结构而立,保持空间的通畅感,但又克制的收敛界限,楷模全屋定制的实木系列自然质感,线面关系的节奏,顺着室内的弧度向室外自然“招手”,沙发背景墙的微微角度去“触摸”茶区的界限;
客厅直通户外花园,户外的自然之美即刻入眼,多重借景,遐想是最美的享受。
· P time.2·
穿过风行浸入沉思
Immerse oneself in meditation
缅怀旧时光
拥抱新的喜悦和闲适
Remember the old days
Embrace new joys and comforts
我想,设计师是想赋予空间一种新的生命哲学,从细微处寻找内心纯粹的“大乐”,一层设立的茶区,让居家的空间休闲放松,既有家的温度,又独处的沉思式体验,茶区黑色的环境处理让目光焦点顺势接轨窗外;压低原始较高的层高,坡顶过渡,顶面木地板划分了茶室的范畴,空间变得不死板,更多的自然光线分节奏进入;
黑川雅之的“风”茶桌,寓意穿过风在空中飞行,搭配野口勇的侘寂风纸灯,让茶区成为心灵的避世处。
· P time.3·
善待每一次的相聚
Get together in a friendly way
善待生活赋予的每一次相聚
对内也塑造一个小小世界
Be kind to every meeting that life brings
Make a little world at home
二层空间功能主要是休闲起居和餐厨功能,设计师在空间的色调上做了调整,更加的轻松俏皮清新有趣,杏黄色的布艺沙发和文艺感满满的绿色相间,罗斯科的抽象画与黑色的吊扇为空间增添了视觉生机和流动感;这里更趋于屋主家人的使用区域,通顶的隔断划分出中西厨的使用,定制的储纳满足功能了,餐桌与休闲露台相对,美食之后是触手可及的庭院。
· P time.4·
我会一直在旁
Always on the side
你长成自己最想成为的样子
我一直在旁
You grow into what you most want to be
I was always there
三层是客卧及男孩房,孩子已经高三,考虑未来更长久的“适用”,希望舒适通透,但又足够私密,将客卧原始的入户改造成引入光线的固定窗,原始入口被调整到东侧,这样不仅能优化卧室的空间功能及私密性,同时也将卧室南侧开窗的光线带到了北侧的楼梯间;
床头柜上方的两幅杉本博司的海平面挂画为卧室增添了广阔的向往,宁静纯粹的画面和室内色调是静静成长的惊喜。
· P time.5·
深度爱自己
Love yourself deeply
不得不说
美,才是对我们粗糙现实的拯救
Have to say
Beauty is the salvation of our rough reality
四层作为屋主的主卧套房空间,与一层的空间分布做了呼应,同样的电视短墙分割出环形自由的空间动线,原始的小露台,搭建进来成为生活阳台,通过不同的使用功能,简单的分割优化。
主卧套设计满足了现代卧室所需要的丰富功能和私密性;卫浴间被隐藏到两组衣帽柜之间的通道,蜜棕色的木质和棉麻背景与深色家具陈设品的映衬下,让身体的能量得到深度的释放。
· P time.6·
坐拥野径山林之美
The beauty of mountain forests
绿色如波
坐拥野径竹林的清境
Green as a wave
With wild path bamboo forest clear border
庭院作为别墅生活的核心之处,设计师以日式园林的景观意境打造本案的花园庭院,多样被室内借景观景,欣赏和凝视,是细节雕琢背后对居住生活的关照。
△一层鸡肋的拐角,被设计师封进建筑,采光井和景观融合,成为一个亮点
精神和记忆是需要寻找的
质朴和安宁
茶树和野径
避世宅院的凝视
恍若听时间缓慢流淌
便可看到曾经花儿正在开
ABOUT PROJECT
项目名称 Project name| 秦汉新城 -中天诚品
项目区位 Project location|中国·西咸新区
项目面积 Project area| 305 平方米、庭院 130 平方米
设计公司 Design company|纳悦空间设计
主创设计师 Designer|唐敏智
空间摄影 Photography| 杨磊
项目类型 Project type|联排别墅
相关品牌 Brand | 楷模全屋定制 AKARI 班兰 麦龙全屋设备集成服务
ABOUT DESIGNER
-主案设计师 | 唐敏智
-纳悦空间设计&创始人-创意总监
客服
消息
收藏
下载
最近



































