查看完整案例


收藏

下载

翻译
来源: АrсhDаilу
Educar II SESC-CE 学校 / Rede Arquitetos
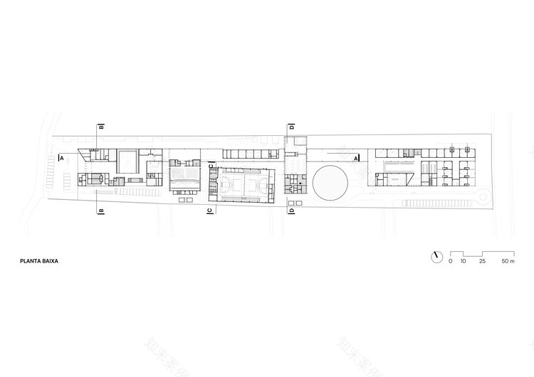
建筑师提供的文字说明。 Educar II 学校 SESC-CE 项目位于 Fortaleza 的 Damas 社区,在一个东西向的纵向场地上,尺寸约为 350.00m x 50.00m,主要道路有两个正面,其三个横向通道南部。 除了这些条件之外,该项目还处理了一些预先存在的条件:为当地社区服务的小教堂; 将翻新并纳入学校项目的体育馆; 一栋旧楼,学校的一部分已经运作,但应该拆除以建造新楼。
所要求的项目包括幼儿园教学区、基础 I 和 II、礼堂、课外活动区、自助餐厅和原有体育馆的翻新。 因此,为了能够在现场以其现有条件、要求的程序和计划的时间表实施,该项目的设计遵循合理化、模块化协调和建筑工业化的逻辑,从结构到窗户,促进工作流程和缩短执行期限,此外还可以分阶段执行项目。
第一阶段,已经建成,在土地最空旷的地方实施,在其西部,通过这一侧的主要道路和其中一条横向道路进入,并有小学二的教学区,街区用于课外活动、自助餐厅、健身房翻新和连接人行道。 第二阶段仍处于设计阶段,除拆除原有结构外,还包括东部及其通道,该结构可以在第一部分工程建成时继续使用。 第一阶段的建筑不是作为孤立的街区分布,而是作为一个由建设性逻辑和程序分布管理的系统。 它的实施占据了土地上现有结构的空隙,分配了程序,连接了通道,并引导了流量。
教学楼占地面积较大,占据了通往西面的主要通道,标志着入口。 从那里,内部流被分配到程序的其他部分,服务访问发生在次要访问之一的更南端。 这种对场地的占领以一种多孔的方式发生,创造了产生内部庭院的空隙,并用打破结构网格刚性的角度标记了入口。 会面地点成为节目分发的条件和指南。 值得注意的是,与建筑空间同样重要的是创造的空隙,负责这些社交空间,例如坡道所在的内部庭院,或场地北部广阔的线性公园,它们将学校综合体的不同部门。
从这个意义上说,颜色也作为一个中心元素进入,有助于标记通道和垂直循环并区分程序的不同部分,在建筑体积和外观结构中占主导地位的白色中性中充当指南,在一个暗示建筑和视觉识别之间非常集成的过程的空间中。 金属结构适应项目的局限性,从1.20m的调制开始设计,克服了大跨度和重叠部分的内部空间组装,金属梁和蜂窝天花板上的钢甲板板,除了水平遮阳板的第二层表皮,保护内部环境免受阳光直射,并为建筑围护结构创造图案。
几种策略提供了环境舒适度。 首先是在具有垂直和水平循环的环境中自然通风的可能性。 此外,建造的天井将植被带入建筑物,改善空气湿度,窗户由水平固定的金属遮阳板保护。 因此,符合人体工程学的舒适空间、充足的自然光线和通风,以及建筑空间和用于社交的绿色区域之间的密切关系,都保证了学生、教职员工的福祉。 教室在对面的墙上都有窗户,允许交叉通风并防止 CO2 在其内部环境中积聚。
来源: АrсhDаilу
客服
消息
收藏
下载
最近














