查看完整案例

收藏

下载
Shape Of Sanctity
“通过将自然和光引入那些与城市环境相隔离的简单几何体中,创造复杂的空间。”
Sense of contrast_室内设计形体舞台化
项目位于余姚中心区位,西侧紧邻城市中轴线南雷南路,关于这条余姚人的“城市中轴线”,以生态赋权和智慧引导,给予多维提升需求。建筑、室内、景观三方一体,以各自的设计语言表达着对项目的理解,循环往复的空间流线与室内穿插的弧线环形和室外的圆形相呼应,三环相扣,
设计师意图打造超现实的舞台化形体。降低空间规整感带来的亲和力,强调夸张的体块之间的交错相叠,简单形体比例放大化,产生的违和感打破整个规整空间的秩序。
效果图 Perspective
整体空间形状通过构造实体集合碰撞结合和布尔运算的手法的推敲而来。这个设计手法可以保证每个功能区域既能完美运作又能给观者带来截然不同的空间体验。
constructive geometry
构造实体几何
作为空间艺术,构造实体几何在建筑学中也起到了至关重要的作用。设计师在建筑原有的面上,将桶状结构穿过。
从形体出发,设计师通过作不规则的解构,同时满足丰富的空间表达和合理的适用性,形成新的空间体量——产生的洞口成为接待的通过空间。
构造实体几何则是推敲建筑形体过程中一个重要的方式。
正空间大形体在负空间自然形成洞口造型,同样的椭圆形通过切割形成销控台。保留原建筑的材料及形体,内部穿插异型洞口,打破原入口规整感,制造视觉冲击。
施工过程现场记录 Construction Process
室内将圆洞的形体投影至室外成为雕塑,在最大程度上凸显了这一独特的动线空间。将室外的灯带穿过幕墙延伸至室内,打破室内与景观的边界。
Sense of contrast_
室内空间景观化
随着白天到夜晚,天光渐渐变弱,室内形体随着灯光形成一个特别的建筑外立面造型。塑造室内与室外景观的互动等,包括形体与形体之间的互动对话关系。
原始建筑框架,洽谈及水吧为扁长型空间,较为压抑。因此设计师在走廊尽头位置做了挑空处理,打开墙体融入室外光线,让空间通过自然光影形成功能区域的划分。
施工过程现场记录 Construction Process
设计师将深度洽谈位置做为共享共享空间使用,一层顶面以弧面形式延伸到顶面的最高处,引入自然光线并增加景观内庭院,给洽谈区的尽头制造了丰富的空间变化,弧面的背侧也充分利用成为二层卫生间入口的走道。
施工过程现场记录 Construction Process
通过体块的咬合、穿插、堆叠,以建筑手法融合室内互动、行走、洽谈、指引等功能,最终形成大体量室内造型。将沙盘和吧台的边界做倒角处理,四边自然形成三维曲面。
Echoes of nature_ 自然的回响
艺术品:《艺术是流动的寓言》
尺寸:φ2200mm 重量 300kg
材质:聚酯树脂烤漆
雕塑家:Thomas Rentmeister 德国
微观与宏观,界定似乎从来都是以个人为尺度的。然而模糊个人尺度也许会给人以别样的感悟。所谓“一花一世界”好像也是如此。宇宙中的星球如水滴一般流淌而下,象征生命力的流淌。
声音、光线在无垠的宇宙中传播回荡,它们承载着人类已知或未知的信息和情感。凝视、聆听,也许你会感受到这个熟悉却又陌生的自然。风止,光于无声处静静的流淌,听叶落,自然在空间中回响。一桌、一椅、静默的空间,回响出自然的低语。光如暖橙,慵懒肆意流于空间。
效果图 Perspective
洽谈区的座椅在空间中组合在一起时,以浅色系家具为主。配以大面积跳跃的橘色,给空间增加了流动的生机感,丰富了空间的与内涵,自成一幅安静温柔的莫兰迪色系画作。选用温柔的原木,柔软的皮质予人舒适体验。
透过落地窗射进来的阳光,让每个互动瞬间都充满自然的味道。以圆形、椭圆形、半月形的形态变化,呼应座椅及空间的优美曲线,制造着人与空间的有趣交互。
探索生活乐趣,感受自然生活与文化艺术的浪漫氛围,自然而然地更迭与延续。
设计师通过将设计将自然与城市的距离拉近,并使之融合在一起,希望来访者可以置身一个自然美好的生活,传递人文自然基因和城市艺术生活美学。
施工过程现场记录 Construction Process
浙江·时代云图里
点击链接查看相关建筑详情
We want to express the concept of a fun life in urban life, search for interesting hip-go design sourcing around the world, so that "fun" into life.
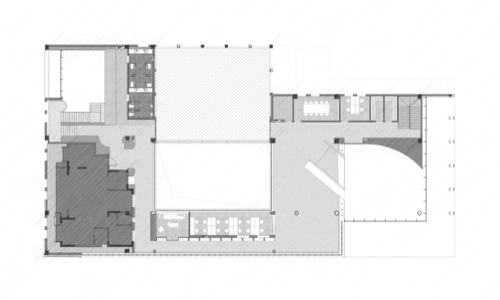
1F 平面布置
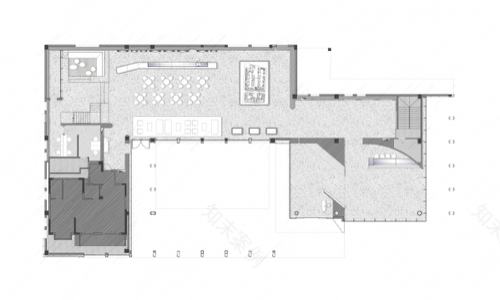
2F 平面布置
项目详情
项目名称 | 时代云图里
业主信息 | 余姚金捷房地产发展有限公司
地理位置 | 浙江省余姚市
完成时间 | 2021 年 10 月
项目面积 | 1493m²
室内设计 | DOME&ASSOCIATES 董世建筑
建筑设计 | 致逸设计
景观设计 | 伍道景观设计
甲方团队 | 金地集团东南区域宁波公司设计部
硬装团队 | 苏军、陈子巍
软装团队 | 印臻焕、高瑞朝、蒿艳蕊
室内摄影 | 棟良®商业摄影
建筑摄影|纯点建筑摄影、孙圣喜
·END·
更多作品
南昌·祥云府
浙江·璀璨瓯江
大连·金地城
呼和浩特·峯启未来
上海·峯汇
武汉·朗悦
武汉·格林映象
想了解更多可浏览官方网站
媒体联络
:Sina weibo: @董世建筑
Instagram: @dome_associates
建筑设计|室内设计|艺术咨询
董世建筑
DOME&ASSOCIATES
客服
消息
收藏
下载
最近



















































