查看完整案例

收藏

下载
“人不可能两次踏进同一条河流。”
——古希腊哲学家赫拉克利特
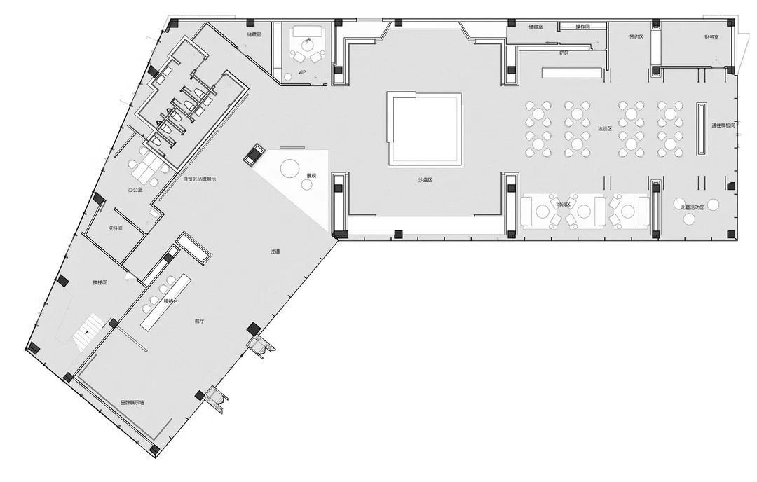
本次设计空间上的不同之处在于在有限的空间尺度(建筑本身的45
°
斜向转换)本身并不规整的两个组合空间,相反我们利用这一点打造出了更具趣味的空间格局,尝试以建筑构造的方式对室内空间进行设计。建筑大面落地玻璃,形成户外景观向室内的自然延伸。
设计手法上保证了空间组合的简洁明快
大空间中,我们通过简单的墙体,组合排列来分隔空间
以此来保证空间的灵动性,及建筑大空间的不规则性。
模型区屏风的元素结合墙体增加空间的仪式感
魔方,是变幻万千的奇妙天地。
方寸之间,玩转多种可能性。
接待前厅整体设计简约而整体,以30度灰色为基底,前台在深色大理石拉丝的背景下凸显而出,视线左上方块盒子切割再添上光线让高冷的体块变得更加有趣,且解决二层功能空间对前厅整体空间完整的破环,同时又成为前厅最主要的的装置存在。
作为空间的第一视线,前厅装置希望达到夸张与吸人眼球,并作为售楼的精神代表。
轻缓的音乐,起伏的呼吸,平静流动的一片水,仿若身处现代艺术馆。
装置以河的型态呼应秦淮河,现代与浓厚文化的交织。
直线再设计中大幅度的运用,在约30度灰的石材进行错落铺贴的整体空间里,结合地台墙体,在本次设计中最主要的过度空间,恰到好处的解决了有限的空间尺度(建筑本身的45斜向转换)所带来的不规则空间。
为营造独特的空间环境,采用相同的石材组合而成的墙体,为在统一材质中寻找石材纹理的变化,即保证其纯净性,又体现其精致感,在石材的选择上也考量许久,最终选择大约在30度左右灰度,且有细腻纹理的石材 。
这里我们用艺术吊件模拟动态的水流来呼应当地的文化元素,在静谧理性的空间中增加情绪的表达,相互冲撞迸发观者思想。
模型区的设计以奢侈品店橱窗的概念出发,由序列的玻璃夹纱而成,静谧且高雅。空间7米多的挑高给观者以直观的视觉震撼效果,结合半磨砂玻璃的通透性顾及了空间隔断功能的同时减缓了超高墙面所带来的压迫感。
靠近幕墙的地方,选用波纹不锈钢板,与室外水景相联系,以“河流”为元素贯穿售楼各个空间,营造一个有文化涵养,有时尚质感和生活氛围的情景空间。
洽谈区的设计依旧以30度灰色为整个空间的主色,结合干净且充满力量的墙体组织了空间的秩序,在其中结合半透磨砂玻璃的屏风,增加观者在空间的仪式感,有效组织洽谈空间和不规则空间。
在整个空间的端头,我们放置墙体阻挡了视线无限的的向外延伸,也给观者留有遐想的空间,与周围屏风形成具有仪式感的空间。
冬日的阳光透过窗户散落于每个角落之中,依靠在沙发上,随手拿起桌上的书籍翻阅,品尝着飘香的热饮,此番情景想必是今朝最桃源之景象。
一束光打进来,绿的椅,枕,石材干净的纹路和谐舒适。
帘在这里的作用是柔化建筑外部空间,使得洽谈区的颜色始终保持在30度灰色。
每一种材质,每一种颜色都相互组合,这些组合唤起心绪相互联系,有一种和谐的冷静。
色彩系统
意向效果
平面布置
项目名称 | 锦绣樾江府
业主信息 | 东原地产、华宇地产、绿都地产
地理位置 | 南京市
完成时间 | 2019.12
项目面积 | 800m²
室内设计 | DOME&ASSOCIATES董世建筑
建筑设计 | 上海成执建筑设计有限公司
景观设计 | 笛东规划设计(北京)股份有限公司
甲方团队 | 李鑫、徐锐、樊迪、郑大进、王斌、林金飞、黄树军、朱祥宇、刘道明、毛家怡、罗冉
硬装团队 | 苏军 王超宇 李辛 邱赛
软装团队 | 钟雪春 江杨智 肖聪
室内摄影 | 夏侯全生
更多作品
南京
·
江畔都会上城
武汉·格林格林
苏州·兰亭都荟
合肥·湖语时光
苏州·原溪
想了解更多可浏览官方网站
媒体联络
:Sina weibo: @董世建筑
Instagram:
@dome_associates
建筑设计|室内设计|艺术咨询
董 世 建 筑
DOME&ASSOCIATES
客服
消息
收藏
下载
最近



















































