查看完整案例

收藏

下载
DESIGN INSPIRATION设计理念
其实山水更像是我们所追求的一种精神世界。
“天地之中” 古人认为天圆地方天地中心即为中原。
而中,则代表这不偏不倚,不卑不亢的平衡关系。
PROJECT OVERVIEW
项目概况
郑州,地处中华腹地,史谓“天地之中”,华夏文明发祥地;康百万庄园以茶待客,杜甫故里以诗会友,园博园以舞宴宾,中原福塔以琴邀朋,感受千年古都的人文底蕴。金地集团的匠心格调向来备受瞩目,而金地·滨河风华,附风雅而筑,蕴藏着更具东方的当代美学生活。该项目毗邻滨水商业,徜徉于一河两湖三公园,六维立体交通环伺,处于闹市,却又能独善享得自然,对话自然。
建筑景观追溯传统院落礼制,打造“四进院落,七重归家礼序”,登门入府,融汇障景、对景、框景、漏景手法,构建出“咫尺藏山水,园里深乾坤”的空间意境。移步换景,渐入园内,满园芳菲,葱郁园林,水景夹道相迎,一方水景映入眼帘,仿若诗画佳境……
整个建筑的外观采用大面的落地幕墙做法,开敞通透,景观有大面积的水景,绿植以及一步一景的设计手法,售楼处三面环水,如何让室内也融入整体环境,这是我们要考虑的方向。
THE ANALYSIS OF RECEPTION AREA
前厅分析
以卷轴的概念发想,通过弧形墙延展的处理方式,提取传统国画中的水,舟,鸟的元素,希望整个空间仿若一幅动态山水画,与自然呼应共生。特此选用具有本土文化特征的《溪山独钓图》,层峦叠蟑,山势起伏,溪谷间,云烟弥漫动荡;扁舟如芥镜中行,远眺溪山一带青。
范宽 溪山独钓图卷(南宋李唐画)
元素提取
设计师借此获取灵感,提炼东方美学元素,用东方的调性混搭各种材质的使用,大面的弧形墙配以精细的传统手工雕刻工艺,细节处更显精致。通过工艺细节,色彩运用,将东方国画的影子与建筑拆解、融合。
整个材料逻辑是:大面积出现的面,通过一些素面肌理感较的材料处理,单个的形体会选用本身可看性强的材料去表现。
意图呈现一幅画卷延展至整个空间的绝美画面,沙盘以舟的形式表达,结合空中飞鸟装置艺术的绝妙空间。
设计师在进门前厅的地面上做了水波纹的意向处理,并
在该位置顺势做了有趣的艺术装置,既可以让人感觉物体正在融化成液体,也可以让人感觉从液体中浮现出来。
整体沙盘形态及细节处理,设计师取意画中舟,漂浮于“水面”。精致水晶飞鸟装置,于舟上,盘旋空中,排布出无尽无限的意境;
金属格栅有序排列,赋予飘动的“飞鸟”元素,丰富格局层次;穿梭于空间,自然山水透过格栅若隐若现;通过线条变化,于诗性的悠缓时空中,呈现出不同气场的呼应与共振,形成一种序列感极强的礼序之美,柔和的灯光映衬下不急不躁、不温不火,纵使外界纷扰,这里依然安静如初。
东方韵味与现代艺术的消融,空间是点、线、面的结合。
延续交叉的弧形墙面宣示着空间的基调;
排列有序的格栅的线条演绎空间的节奏,似乎是在寻求着一种内在关系。
作为茶道、文化体验的休闲区,我们营造出东方意境的雅致生活。
茶室对面的这一组洽谈区在整个动线的中心线上,既要有内容、有分量,也要注意掌握节奏,超大的弧形沙发打破了常规布局的死板,大理石方料雕刻的水纹茶几,兼具了艺术性与实用性。
框景,是东方美学中非常重要的设计表达。我们常常会说透过一扇窗,洞见一个世界。以大尺度落地玻璃窗构筑一个纯净的内心世界,水与玻璃的相互滲入,使室内融入山水、“沿溪而傍陇,吞山怀古。”
厚重的天然大理石与楼梯踏步平台做一个穿插结合关系。
线面是坚实,亦是自由。一字型楼梯的设计,从线性结构到块面的表达,线于面的切换,让空间多了一点轻盈的诗意。
卫生间在选料的处理上,也寻求整体空间的统一和延续;金属格栅、木饰面、深色石材,在这里,无论何处都能感受到东方韵味。
设计师们把主客观意识融于一炉,于婉曲之中见深挚,与意境统为一体,相得益彰。通过自由的意识形态,营造现代生活的诗意与远方。
在饰品的选择上,从文学艺术中提炼文化、意境、色彩、通过现代东方美学的组合方式,呈现出古朴纯净的意象之美。
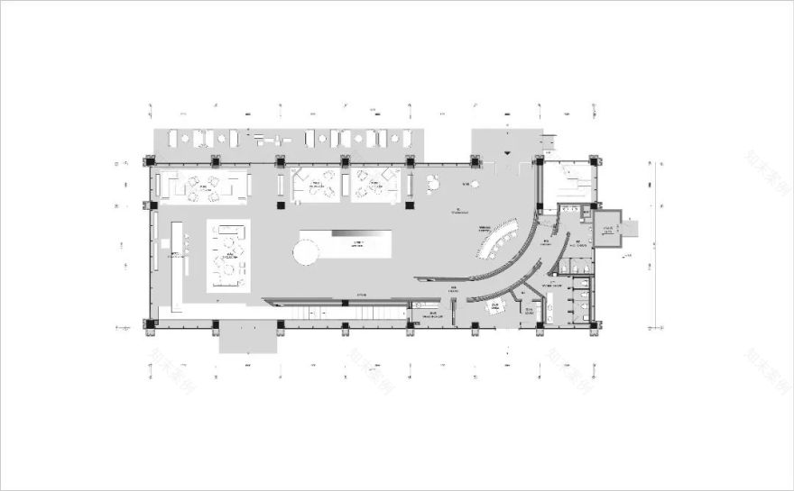
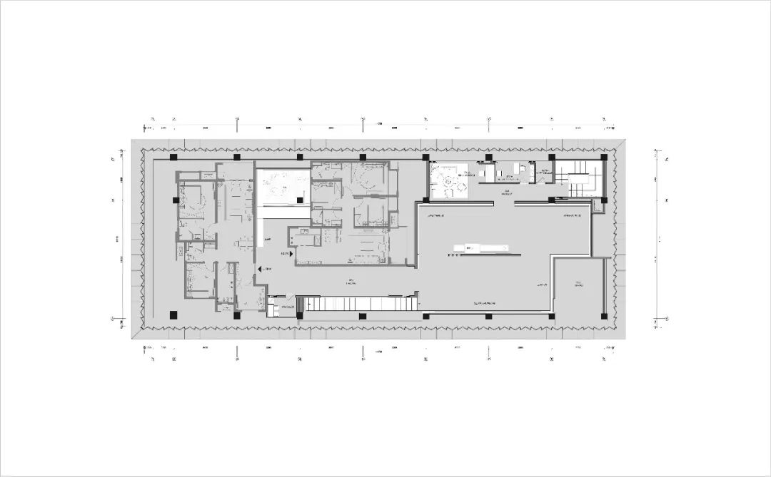
PLAN
平面布置
1F平面图
2F平面图
INFORMATION
项目详情
项目名称 |
滨河风华苑售楼处
业主信息 | 金地集团
地理位置 | 郑州
完成时间 | 2019.5
项目面积 | 1000
m²
室内设计 | DOME&ASSOCIATES董世建筑
建筑设计 | 日清建筑设计
甲方团队 | 尹沙沙、唐晓笙
硬装团队 | 苏军、刘奔、赵予晴、王超宇
软装团队 | 黄馨锌、张瑾、周宇凡、刘少智、江扬智、孙国齐
室内摄影 | 上海恩万建筑摄影
更多作品
苏州·原溪
上海·青溪花园
上海·东碧
馥邸
杭州·玖峯汇
苏州·千浔会所
杭州· 印未来
想了解更多可浏览官方网站
媒体联络
:Sina weibo: @董世建筑
Instagram:
@dome_associates
建筑设计|室内设计|艺术咨询
董 世 建 筑
DOME&ASSOCIATES
客服
消息
收藏
下载
最近



















































