查看完整案例

收藏

下载

翻译
Las piscinas y el edificio AARhus forman parte de un conjunto diseñado por BIG en la isla artificial Ø4, dentro de un plan urbanístico conocido como Aarhus Ø para regenerar la zona portuaria de la segunda ciudad más grande de Dinamarca. La intervención se estructura mediante un paseo marítimo de perfil zigzagueante que la conecta con el resto del puerto. En vez de construir inicialmente las viviendas privadas y caracterizar después el espacio restante intermedio, el proyecto invierte el procedimiento habitual y comienza poniendo en marcha una serie de equipamientos urbanos que revitalicen el barrio antes de que lleguen los residentes.
Las piscinas recuperan la idea de la iniciativa llevada a cabo en el puerto de Copenhague en 2002 con el fin de transformar una antigua zona industrial en un nuevo foco social. Concebida junto con el urbanista Jan Gehl, la estrategia de diseño busca crear un marco arquitectónico capaz de albergar el mayor número de actividades con los mínimos elementos construidos. Así, los bañistas cuentan con una gran variedad de espacios diferentes: una poza circular de buceo, un área infantil de poca profundidad, una piscina rectangular de 50 metros de longitud y dos saunas situadas bajo una pasarela pública, así como vestuarios, zonas para tomar el sol y un mirador. Todo ello se construye mediante una superficie continua de listones de madera y se apoya sobre una plataforma flotante anclada a una serie de cilindros repartidos en el perímetro.
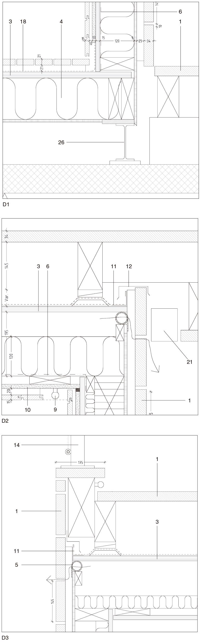
Por su parte, el edificio AARhus es el primero de los siete previstos en el plan general, y se sitúa en el extremo sur de la isla. El proyecto combina los rasgos formales de las tipologías residenciales que predominan en la ciudad: el bloque cerrado en torno a un patio interior, las viviendas en hilera y la torre. Cada esquina del volumen se sitúa en una cota diferente, por lo que el perfil general se conforma mediante niveles escalonados que delimitan amplias terrazas. La envolvente exterior se modela con corredores continuos, mientras que las fachadas interiores se configuran con balcones puntuales. El patio central se organiza con un nivel de aparcamiento a nivel de calle, sobre el que se sitúa un exuberante jardín donde los residentes pueden cultivar verduras y árboles frutales, además de celebrar cenas comunitarias. En planta baja, el perímetro cuenta con locales de uso privado, junto con otros de carácter comercial que contribuyen a dinamizar el espacio público, y en la esquina noreste se incluyen varios apartamentos de dos plantas. La esquina suroeste se curva para definir un espacio multiuso común, abierto al frente marítimo con una terraza.
客服
消息
收藏
下载
最近


























