查看完整案例

收藏

下载

翻译
Tipología:Sede / oficina Comercial / Oficina Torre
Material:Metal Aluminio Malla metálica
Fecha:2011 - 2015
Ciudad:Shanghái
País:China
Fotógrafo:Jerry Yin Eiichi Kano
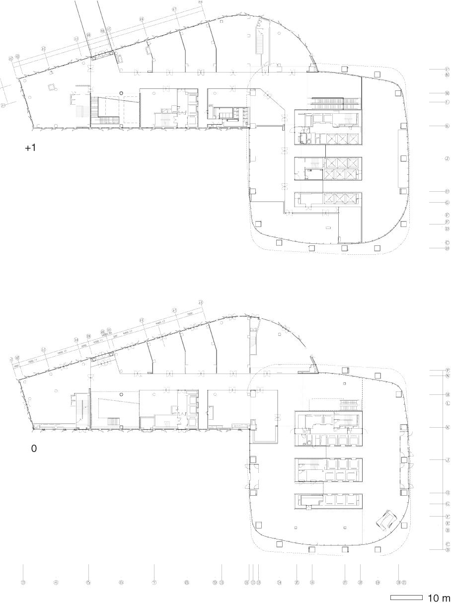
Una piel ondulada de apariencia textil, reviste esta torre de oficinas de 134 metros de altura situada en el barrio de Hongkou, en Shanghái. El proyecto presenta la organización típica de un edificio de tamaño medio, con un núcleo de comunicaciones e instalaciones en el interior y cuatro crujías destinadas a espacios de alquiler, abiertas a las vistas. El elemento que dota al conjunto de un carácter singular es la envoltura que, por su dinamismo, contrasta con la imagen anodina del contexto. Así, tras un primer cerramiento de muro cortina convencional, una segunda piel activa visualmente el volumen mediante una serie de estrías o pliegues que se retuercen verticalmente. Esta piel se compone de piezas de gran formato de malla de aluminio de 18 milímetros de espesor que se fijan a una estructura auxiliar y se perforan con diferentes patrones. La geometría cambiante de estas piezas tridimensionales que se doblan de forma orgánica hace que la respuesta del edificio cambie en función de la incidencia, el tono y la intensidad de la luz solar.
Desde el punto de vista urbano, el edificio se integra en su entorno mediante un podio con usos compartidos que establece una transición gradual desde el espacio público al privado.
客服
消息
收藏
下载
最近


















