查看完整案例

收藏

下载
△项目视频
本案是冠景地产位于郑州白沙项目的销售中心,周边学区资源丰富。立案之初,甲方面临租赁附近门面或者临时搭建的形式满足前期销售需求的选择,以达到节约的目的。
因销售期结束后拆除再造,存在前提投入浪费。最终与业主方达成一致共识:设计一个拆除与建造同时思考,分次进行的销售中心,利用园区副入口设计景观示范区,让临建与景观相结合,满足销售期使用功能,前期作为室内使用,后期作为景观永久保留。保留部分选用优质材料,拆除部分选用基础材料的组合,从而达到节约目的,使资金投入最优化。
This case is the sales center of Guanjing Real Estate located in Zhengzhou Baisha project, and the surrounding school district is rich in resources. At the beginning of the case, Party A is faced with the choice of renting the nearby facade or temporary construction to meet the early sales demand, so as to achieve the purpose of saving. Because of the demolition and reconstruction after the end of the sales period, there is a waste of premise. Finally, a consensus was reached with the owner: to design a sales center with both demolition and construction thinking.
△室外景观
为了实现最初构想,方案从建筑、景观、室内整体设计。与其他项目思考不同的是,本项目不仅要考虑作为销售中心时的使用状态,同时还要兼顾到后期拆除后的景观效果。因此,我们这次设计首先考虑的是后期景观方案,在景观的基础上形成室内功能布局,再从室内空间倒推建筑形式,最后从建筑形式设计出拆除节点及区域,以还原出最初景观方案,最终形成一个完整的方案。
In order to realize the original idea, the overall design from architecture, landscape, interior, unlike other projects, this project should not only consider the use of the sales center, but also to the later demolition after landscape effect, so we first consider the design is the late landscape scheme, on the basis of the landscape form indoor function layout, then from the interior space building form, finally from the architectural form design demolition nodes and area, to restore the original landscape scheme, finally form a complete scheme.
△室外景观
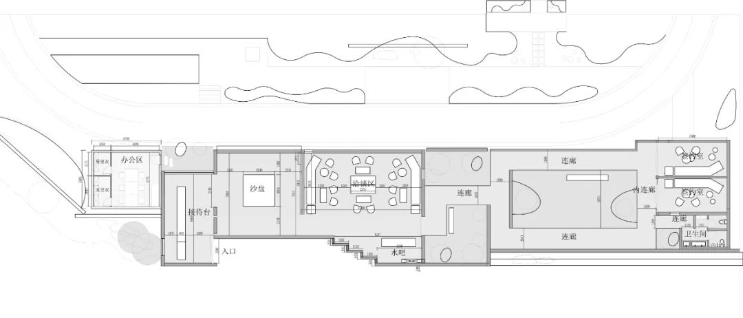
在整体的平面规划上,把地块分为三个区域。第一个区域利用后期景墙临建室内空间,置入了接待、沙盘、洽谈、水吧这些功能,后期为景观连廊及树池。第二个区域是微景观展示区,设计有微地形、景观树以及水景打造园林感,扩展面积,突出品质。第三个区域是洽谈区、财务室以及卫生间,后期作为读书一角,卫生间作为功能永久保留。最后用连廊的形式把这三个区域进行串联,完善和丰富整体的功能体验。
In the overall plane planning, the plot is divided into three areas. The first area uses the indoor space of the later landscape wall, and puts the functions of reception, sand table, negotiation and water bar. In the later period, the landscape corridor and tree pool are built. The second area is the micro-landscape exhibition area, designed with micro-terrain, landscape trees and waterscape to create a sense of garden, expand the area, and highlight the quality. The third area is the negotiation area, finance room and toilet, later as a corner of reading, toilet as a function of permanent retention. Finally, the three
△沙盘区
△过道
△洽谈区
在建筑和景观的设计上,我们用钢结构作为基础框架,设计出切割点,方便后期拆除,减少拆除后修复。墙体方面后期保留景墙部分用石材饰面,其余墙体统一用轻质隔墙加涂料,保证效果的同时把费用降到最低。在建筑上设计天窗和窗洞,向室外借景,拉伸观者视线,把室外景观引到室内,让室内空间更有延伸感。把天光引入室内,利用最节约的自然光来降低白天的灯光消耗。
In the design of architecture and landscape, we use the steel structure as the foundation frame to design the cutting point, to facilitate the later demolition, and reduce the repair after demolition. In the wall, the later retained landscape wall part is decorated with stone, and the rest of the walls are unified with a light partition wall plus paint, to ensure the effect of the cost to the minimum. Sunlights and window holes are designed on the building to borrow scenery from the outside, stretch the viewer’s line of sight, and lead the outdoor landscape to the interior, so that the indoor.
△洽谈区
△签约室
△签约室
室内部分通过建筑与景观的整体考虑,已经拥有了舒适的空间尺度以及外部环境。室内空间更多侧重的是材质分配及细节处理,结合景观后期保留部分用石材饰面来保证品质,后期拆除部分以涂料为基础,用留窗引光的方式扩展空间,方便拆除。重点思考内外结合及收口部分的细节处理,让空间显得更加精致、简约、自然。顶部选用了具有装置感的镜面灯具提升空间尺度,圆形的镜面效果打破了空间的单一性,同时经过设计的定位后,使其反射面都有意外效果,即在设计之中也在意料之外,从而使空间更具有趣味性、自然性、艺术性。
The interior part, through the overall consideration of the building and the landscape, already has a comfortable spatial scale and an external environment. The indoor space focuses more on the material distribution and detail processing, combined with the landscape later retained part of the stone veneer to ensure the quality, the later demolition part is based on the paint, with the window of light to expand the space, convenient demolition. Focus on the combination of internal and external and the details of the detail processing, so that the space appears more delicate.
△装置吊灯
△平面图
△项目地址
项目名称 | 冠景·上院营销中心
项目地址 | 河南·郑州
业主单位 | 冠景地产
设计内容 | 建筑 室内 景观 软装
设计时间 | 2021 年 4 月
竣工时间 | 2022 年 2 月
设计单位 | 二合永设计
项目面积 | 590 平方
室内面积 | 306 平方
设计主创 | 李彦君 曹刚
设计团队 | 董书军 裴珂珂
软装团队 | 阎亚男 贺英
灯光团队 | 河南省光环境设计研究院
项目摄影 | 王鑫炜
设计材料 | 芝麻黑水洗面、木地板、砂岩、乳胶漆
|
商务总负责人 |
COMMERCAIAL DIRECTOR | 总设计师 |
CHIEF DESIGNER | 软装负责人 |
Person in charge of soft decoration
COMPANY TEL :0371-63380939
| 公司地址 |
郑州市经开区第二大街经北三路 129 号
长按关注
↓ ↓ ↓
客服
消息
收藏
下载
最近



















