查看完整案例

收藏

下载
神说:“要有光。”
就有了光。
神看光是好的,
就把光暗分开了。
神称光为昼,
称暗为夜。
有晚上,
有早晨,
是一日。
panDOMO
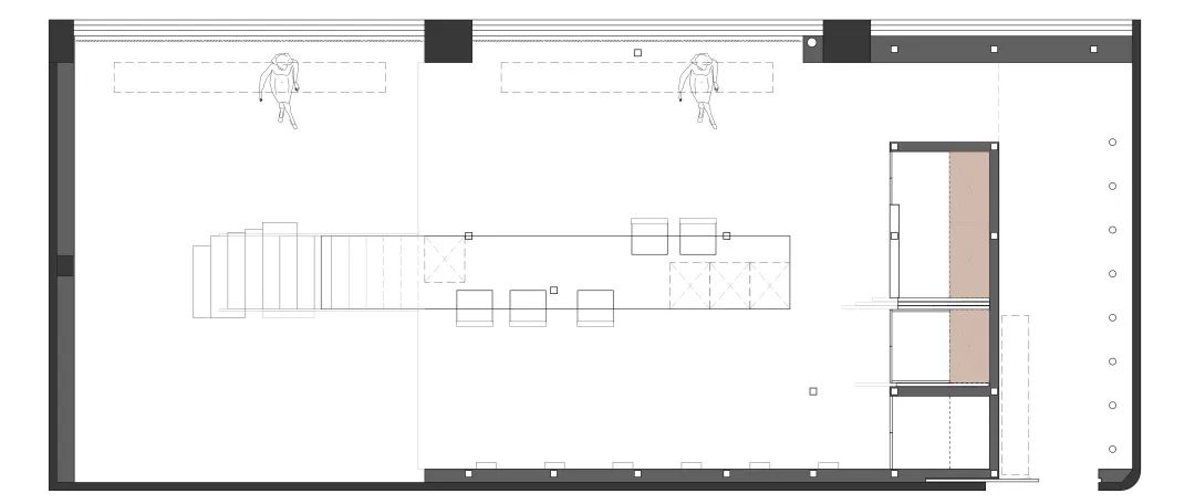
上海panDOMO展厅,是为磐多魔客户提供产品展示的销售空间,占地面积160㎡,挑高6m,这一次,我们摒弃了一切符号性的指向与形式,让光、材质、空间以其本真的属性显现,营造独特的感官体验。
入口的节奏把控非常克制,先经由黑色的门洞进到一条走廊,光线被刻意压低,给人一种神秘意境。
走廊的挑空很高,也没有任何的窗,斜顶的软膜天花对比展厅的光线,调低了几个亮度,呈现出纯净而柔和的光影,让空间散发出一种迷人的情绪。
行至展厅内侧,空间豁然开朗,先抑后扬,带给人惊喜的视觉感受。超长岛台贯穿整个洽谈区,在黑色不锈钢体块的支撑中,悬浮于地面似的,使台面恰好位于最佳的视线之内,既是产品的展示台,也给空间带来非凡的仪式感。
我们在中庭位置搭建出二层空间,支撑部分的黑不锈钢色柱体,与磐多魔台面、地面穿插错落,即凸显个性化,又具有视觉穿透力,完成场地与单体结构融合的同时,又带来功能与形式之间的有机结合。
整体布局通透舒展,明与暗和谐共振,一侧的阳光透过玻璃,在休闲区和洽谈区演绎出一场光明和阴翳的暧昧关系。就这样,在一种大多数人都能接受的舒缓气氛中,起身或坐下,站立或走动都随心随意。
不同型号的磐多魔,在体、块、面之间的使用,以贯穿整体的秩序感和完整的块面表现,形成近同的空间质感和肌理,营造出干净素雅的氛围,令人卸下一身烦躁,内心的情绪得以安抚。
致敬斯帕卡的楼梯设计,以它诗意的断片与节点,成为展厅后部的视觉中心。
踏步也用了磐多魔,长短不一地向水平两侧延伸,不同于斯帕卡严格的形式分离,这里的每一级踏步后侧都做了常规封闭,栏杆设计也更加实用主义,整体呈现更有秩序,也更安全。
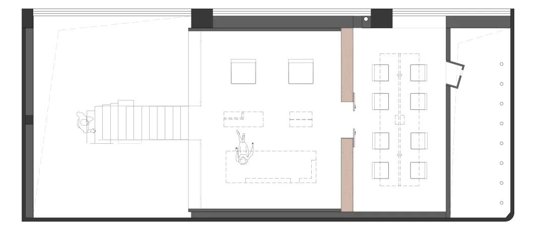
路过楼梯,行至二层区域,关于光影、材质与空间的故事,才进入正题。
一侧墙上的镜面,将二层的拱顶映射其中,隐匿边界,让空间趋于无限。中轴的软膜灯拔地而起,烛火般点亮整个空间。
即使如此,二层展厅的光线仍然是偏暗的,但并不压抑。拱顶设计让光的形式变得丰富而浪漫,门后透过的漫射光,在空间形成教堂般庄严的气息。
拱顶的线形光源,顺着门缝,引出室内的光束,神圣而又克制,使得人全身心平静下来。
除了大的空间格局,细节和质感也是空间的亮点,区域过渡间角落也不乏巧思。沿着光的方向,玻璃窗格双向打开了隔墙,让空间更加灵动、通透。
拱顶洒下的柔光,丰富了空间的体验,如同一种有形的建筑材料,以精妙入微的“细部”,填补了时空的裂缝,完成了诗意的抒情。
极尽克制的办公区域和展区一门之隔,门閤上时的方孔,方便员工随时关照展厅,提供服务。
办公区后面,改了朝向的小门,仿佛通往修道院里供人思索的“小室”,不动声色却意外拥有着安静的力量,让空间多了一分神秘与深邃。
1F
2F
客服
消息
收藏
下载
最近











































