查看完整案例

收藏

下载
订
阅关注
费弗空间设计
请戳
▲ 蓝字
FF DESIGN
FF空间设计
Interior & Decoration Design
/
Global Home Purchase
Rendering
Interior & Decoration Design
FF STUDIO
Construction
FF STUDIO TEAM
Shanghai,China
2020
“毕业照”看多了,今天分享一套效果图
🐂🍺的效果图不仅能体现设计理念
还能展示设计细节和软装搭配
好的效果图能准确呈现出
设计师对材质、色彩和灯光的表达
这些都能让业主在项目真正落地前
将未来生活一览无余
一层
(客厅、餐厨区、老人房
)
若是算上负一层和阁楼一共四层的别墅
一层是公共空间和老人房的所在
原木色极简为主色调的生活
从这里,便徐徐展开了
从客餐厅的地面开始
便选用自然原木风的木板
电视墙面肌理漆的质感
只是在图片上就已呼之欲出
整个空间通过功能与美学的结合
将普通元素进行组合
实现整个空间质感华丽的“转身”
餐厨一体的开放式空间下
餐厅的不锈钢面板和大理石台面的岛台
双双提升了整个空间的质感
整体画面通过凸显不同材料、采光点之间的碰撞
彰显出整个空间的大气,温润的视觉效果
老人房的背景墙采用木饰面作为白墙的装饰
不仅和一旁的墙面相互呼应
更在视觉上和心理上起到收缩的效果
使得整个空间表现出独一无二的雅致
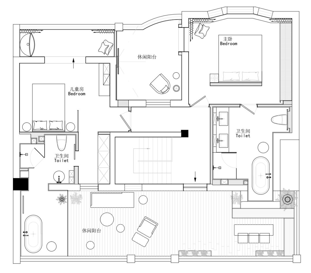
二层
(主卧、儿童房、休闲阳台)
二层空间就是完完全全的私领域
父母和孩子住在一起,卫生间相互独立
还共享一个超大的活动空间
自带弧形空间的主卧装饰极简
超大落地窗的白色不锈钢框架加上纱帘
让整个空间极简中带有一丝雅致的浪漫
从L形床背墙和镂空的线形灯带设计开始
整个主卧都以简洁的线条
营造出充满质感的优雅的时尚感
主卫大面积水泥地砖墙面与玻璃、镜面的结合
更是彰显出整个空间的时尚品质
水泥色地砖和白瓷、玻璃、原木相互交融
呈现出现代质感和温暖氛围的完美融合
小女孩的儿童房长了一副柔柔弱弱的样子
粉色的墙面上浪漫的城堡🏯和彩虹🌈
是整个空间的亮点和精髓所在
公主系的气息中彰显着爸妈对小公主的爱
纯净的白遇上粉色系的浪漫
充满古典美学的圆镜加之现代艺术的精简
使小女孩的卫生间
都长成了一副现实版“纪念碑谷”的样子
粉色的地砖等点缀了原本一望无际的白色墙面
给人一种莫名的温柔而安宁的浪漫
负一层
(玄关、健身区)
入户玄关和健身房都放在了负一层
解决了最让人头疼的入户收纳和健身空间问题
剩下的空间统统留给生活
FF的每一个项目都是独特而有质感的空间
极简的内核下,分别呈现独特而无可挑剔的特性
让整个空间集功能与美学与一身
整体设计以低饱和度的原木与白为主色调
负一层的地面选用浅灰色的地砖进行无缝拼接
白色柜体内嵌木饰板的灯带点缀
都彰显出不同材质碰撞的质感之美
健身区的灯带、射灯、自然光等采光点下
不同光源的色温、感受等带来的差异化照明效果
都以超写实的手法被表现出来
无论是空间本身,还是其中的物品都十分逼真
从器材、家具的形态,到墙漆、板材等的质感
甚至灯光的光影范畴、物件的倒影
都处理的十分细致
阁楼
顶层阁楼倾斜的屋顶限制了空间移动的灵活性
干脆全部留白,做了闲暇时的活动区域
二层上来便是孩子的游乐场🎠
空间以极简的原木色为基调
加以粉白点缀呈现出清新自然的感觉
另一侧,低矮的天花营造出非常舒适的氛围
有趣又迷幻的光源让空间变得神秘起来
加之角落里的石膏人像
使整个空间优雅中透漏着一丝别致的文艺美学
现在,就跟FF一起来期待一下
效果图和落地实景的无差别呈现吧~
- Rendering
-
END
FF DESIGN
/
Copyright © 2018 FF DESIGN . All rights reserved.
硬装设计 | 家居采购
— 费 弗 空 间 —
FF Design
Fantasy 陈晓峰
+86-18121016268
Fantasy
:
Fantasy_M
:feishuai17764
上海市宝山区陆翔路1018弄
龙湖北
城天街1号楼23楼2327-2328室
客服
消息
收藏
下载
最近
































