查看完整案例

收藏

下载
订
阅关注
费弗空间设计
请戳
▲ 蓝字
FF DESIGN
FF空间设计
Interior & Decoration Design
/
Global Home Purchase
A Wonderful View
Interior & Decoration Design
FF STUDIO
Construction
FF STUDIO TEAM
Xuhui,Shanghai,China
2019
城有水则秀,居有水则灵
上海滩的江景房,那真是买一套少一套
如果时尚编辑要出什么金融海归男的10大标配
那么坐拥180度江景的房子必须榜上有名
对稀缺的江景房来说,
一点点异形空间真的不算什么
更何况,都在FF的射程之内(动作)
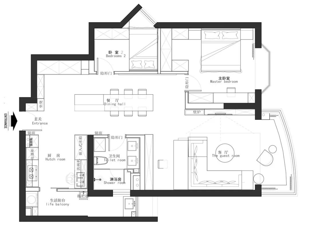
原始的户型中进门的
走廊十分狭长~
在餐、厨的夹击下限制了入户的视觉
厨房、餐厅均无自然采光
狭小的餐厅也在限制居者对于美食和生活的欲望
改造后的空间牺牲了部分卧室的空间
来成全餐厅+工作室的开放格局
毕竟对于需要随时在家办公的金融海归男来说
餐厅不仅是享用美食的所在
还可能是社交兼办公的场所
玄关
怀着对江景房的期待,无奈入户发现
狭长的走廊尽头视觉并不能抵达窗外的江景
断舍离掉次卧的一部分空间,让步开放式餐厅后
大门一开,视线即可穿过书房直直望向窗外
开放式的餐厅拯救了入户的视觉
却依然无法直视客厅的光景
还在一定程度上,保护着屋主的隐私
原木+白的配色下,竟有一丝清风拂面的清爽
从入口到餐厅的一整个转角全都做了收纳
木地板爬上半墙累瘫在一格鞋柜上方
紧挨着白墙的白色玄关柜悄然隐形
只身默默容下许多物件,仅在转角卖了个破绽
留出一处凹槽空出一个座位
有了次卧的退让和灯带的加持
在高亮的白色环绕下
柔柔的自然光照进了餐厅的角落
开不开灯,都能亮堂堂
厨房
进门右手边的厨房简直简单的不像话
可就是这种经过嘻嘻考量过的极简
将人间的烟火以好拿好取好开好关地小心收纳
才能够真正贴心舒适,在日常亲密为伴
灶台和水槽的对称式处理
完全符合料理的动线
烹饪中随时再清洗几根蒜苗
回首便能扔锅里爆炒一番
艺术涂料给空间增添了一抹朴实的味道
生活阳台被藏在长虹玻璃的后头
只洒进一厨的微光
灶台后的不锈钢板打理起来也是十分方便
没有了传统瓷砖的无数接缝
真是怎么住都舒心~
餐厅
原先阴暗的格局经过FF的妙笔
原本见光死的餐厅也能拥抱自然光
毕竟光线对于空间来说
就像化妆之于女人(偷笑表情)
F+oyes一体定制整体性超强
厨房的中岛和餐桌一起被安置在了餐厅
兼操作台、餐桌与工作台的功能为一体
囫囵儿放在同一个空间里
体现了如今社交、工作、用餐
不再泾渭分明的生活方式
整个房间以中岛+餐桌作为主轴
使周遭形成流畅的洄游动线
甭管是在家办公、用餐或者是开个小型会议
甚至偶尔做个Party Animal都绰绰有余
偶尔还能瞥见前方一排天光最亮的大窗
靠近厨房
一侧的墙面用了整块镜面
扩大餐厅视觉效果的同时
还能被当成出门镜使用
旁边就是美观又防尴尬的次卫隐形门
另一侧的墙面也用了一点镜面
来打破白墙面的沉闷
给原本单调的空间增加了一点小心思和乐趣
3000K的黄金光色温柔和
像是清晨透亮的阳光一般
给室内镀上了一层金色的光芒
一旁的墙壁还藏着通往次卧的平开式隐藏门
真的是又省空间,又充满了绝对美感
客厅
餐厅的长条吊灯,拉伸了整个餐厅的长度
将视线延伸到客厅+书房
水泥灰的艺术漆墙面作背景
带给空间性冷淡的高级感
将窗外的大片江景拥入怀中
好比一副巨幅水墨,随昼夜变幻
电视墙没有多余
多余花俏的处理
整墙灰色的储物柜简约而不简单
红色的火焰映照出冬日的气氛
最适合三五亲朋,闲坐夜话
从电视背墙到沙发背墙,再到沙发和地毯
深浅不一的灰色以细微的差别
各异的材质,形成一个朴素的空间
忽然之前,一片冬阳洒落
亮晃晃照亮了客厅
有什么能比傍着一扇可以朝外凝望的大窗
和天光与风景为伴更让人感到幸福的呢?
书房
现代人的客厅,也已不再是单纯待客的所在了
更多的,是要满足自己的日常和生活尺度
于是,将
一部分的空间被拿出来做了书房
案牍之余,抬头便是眼前的天光云影
沙发背墙一侧的黑色金属铁艺桌角
和另一侧的灰色抽屉柜一起
承载了整个书桌的力量
沉稳敦厚,又十分简洁干练
跟书桌等长的整墙书架
藏露设计也十分巧妙
既大肚能容,还能维持表面的云淡风轻
主卧
主卧和客厅共享同一片光景
水泥艺术涂料营造的粗犷古朴的基调下
温润的木质元素以及亮眼的天光作为点缀
在卧室呈现出一种宁谧,又富有张力的美感
惊艳之余,又有
一种静谧和舒适的感觉
床头的隐形出光设计
依然选择了3000K色温的led线条灯
于上方的顶灯、壁灯和下出光设计
划分出光的层次
床对面的衣柜中间
留出一方天地
能工作,能阅读,能小酌怡情
还能转过身来,对着美景,发会儿呆
次卧
次卧不规则的榻榻米
完完全全地利用了每一寸空间
内外空间相映成趣
下方的收纳地柜十分能装
100㎡的格局下,两室的留白
靠的就是超能收纳区的多多担待
衣柜下侧的灯带出光柔和而不刺眼
即是暗角落基础照明的补充
也是空间的一抹装饰
画龙点睛般给生活增添了光彩
卫生间
上下出光设计的镜面柜
将脸部线条打的极为匀称
谁说男生就跟精致无缘了呢?
说在后面
本案是FF继续世贸滨江、家化滨江之后接手的又一套无敌江景,180度无死角的景观景观直击人心。
小区其实老小区,但是经过FF的改造以后,室内焕然一新,依然是一贯的极简。
从设计到完工后拎包入住,半年时间,客户因信任而全案委托,甚至每个验收节点都未参与其中,FF始终感激这一份信任和托付。
整个房子将
最好的景致留给了窗外,将室内相对弱化,毕竟,
内与外,有一个主角够了。虽说是用减法来做的室内,但也保留了一点点炫技的成分在里面。
最终完工的一刻,身在这个空间,看着窗外华灯初上,室内的光线慢慢变暗,也想过若是两人在窗前对饮,该有多么浪漫美好。思绪至此,虽然不舍,还是终将这一份美好,交付给客户吧。
-
A home with a wonderful vie
w
-
END
FF DESIGN
/
Copyright © 2018 FF DESIGN . All rights reserved.
硬装设计 | 家居采购
— 费 弗 空 间 —
FF Design
Fantasy 陈晓峰
+86-18121016268
Fantasy
:
Fantasy_M
:feishuai17764
上海市宝山区陆翔路1018弄
龙湖北
城天街1号楼23楼2327-2328室
客服
消息
收藏
下载
最近









































