查看完整案例

收藏

下载
订
阅关注
费弗空间设计
请戳
▲ 蓝字
FF DESIGN
FF空间设计
Interior & Decoration Design
/
Global Home Purchase
A sweet humble cottage
Interior & Decoration Design
FF STUDIO
Construction
FF STUDIO TEAM
Yangpu,Shanghai,China
2019
有人说,
生活中的一切极简主义,
多少都沾染了奢靡的气息。
这套90平老房子的男主人是位兵哥哥,
新婚时为了媳妇儿装修房子
找到FF
临的时候说了句,
你家很贵,但是我愿赌!
这不,还你一套愿赌服“舒”的家吧~
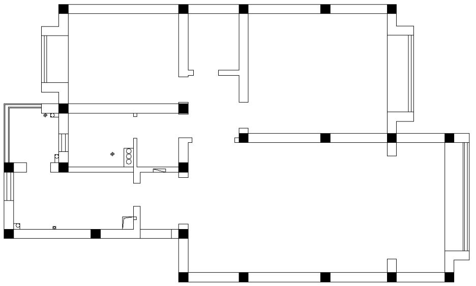
| 原始平面图
老房子的结构和采光,多少都有点问题
鸡肋的生活阳台,窄小的餐厨,
过大的客厅🛋️
整个房子的收纳也是咋看咋缺
只好大动干戈来一个彻底的改头换面
| 设计平面图
原先的结构下,入户即见墙,堵的慌
直接拿掉改了一水吧,时尚又开阔
生活阳台被纳入卫生间
硬生生在厨房卫生间之间挤出一个过道
还在主卧里辟出一个不小的衣帽间
玄关
玄关处
整体深色的低调处理
大而化简带来质感
进门右手边增设一组非常实用的柜子
从换鞋到收鞋,随手挂衣服包包,
都能hold住
柜顶的灯带
与西厨古铜金的墙面相互呼应
明暗之间带来光影的层次
墙面拆除时留下的柱子
就用黄钛拉丝不锈钢直接包了起来
吊顶拉平了
低垂的悬梁,也拉低了层高
只能用镜面不锈钢顶面来给视觉以延伸
入户正对的墙面改成了水吧
黄钛拉丝不锈钢包裹的柱子插入水吧台中
带来体块之前的穿插之感
给
原先低调的配色以不平凡的点缀
客厅
原先独立的阳台被纳入客厅
使得
整窗的采光无碍穿过
空间
木质格栅隔而不断
白天里,即使不开灯也亮堂堂
木质的温润给黑白灰的客厅带来一抹温暖
一刚一柔,相映成趣
浮于客厅与阳台隔断一周的线条灯
和开放式置物架层板加灯带的设计相呼应
用最简约的线条勾勒出空间的层次感
将
明暗有序的空间联系起来
电视墙
下方不对称的黑色镂空设计
与右侧的开放式储物形成一个反“L”型线条框架
和黑色的电视、茶几的相互
呼应
调和出一种冷静而克制的华美质感
浅灰色整墙
电视柜的
隐藏式收纳整洁高级
连主卧的门也被隐身其中
大气、美观,
又特别实用
玩偶的出现
也巧妙地提醒主人:
“门”在这里
整个客厅都采用了无主灯的灯光
设计
以两侧的轨道灯
打亮空间
保留层高的同时还能替业主节省不少预算
棕色皮质沙发和浅灰色单椅的高档质感
在不动声色中点缀了一室优雅
餐厅
客厅的另一边,餐厅也被收入其中
玄关柜背面,四联黑色餐边柜的存在
让黑餐桌黑餐椅全面隐身
使得两个不同功能的区间的衔接更为协调
凡内嵌柜体,都贴心装上了线条灯照明
当光的线条爬上整体黑色餐边柜时
隐隐地透出一种自然的高级感
藏露分明的柜体设计
将空间变得错落有致
越简单,越高级,
装修也像生活一样
有时候去除复杂的装饰和丰富的颜色搭配
可能有意想不到的惊喜
厨房
被打开的厨房加长了整个房子的纵深
集成灶的使用节省占地面积不说
还省出了橱柜的费用
原先90平米的空间
看起来有100多平
水槽和集成灶做了高低台面
90公分高的水槽从此告别弯腰洗菜的时代
灶台的高度加上锅具的高度
烹饪下厨舒适度满分💯
卧室
卧室整体素白的基调下
黑色床背板和镜面的整体延伸
节省空间的同时予空间以精致质感
简约而不简单的全床和梳妆台配的一脸
它们来自
FF的全屋定制品牌F+Oyes
黄钛拉丝不锈钢移门
为家里增添一角明快的色彩温度
打开后则像装饰面板和白墙自然融为一起
将大大的衣帽间藏于其中
黑色不锈钢包裹的简约窗框
将窗外的天光和人文纳入画境之中
墙上简约到底的线条灯散光均匀格调温馨
随处可见FF的匠人用心
卫生间
纳入了生活阳台的卫生间
做了干湿分离
干区选用了保持天然肌理的地砖上墙
镜面柜和收纳柜的储物能力都值得称赞
灰调和素净的空间令空间充满干净温暖的气息
淋浴区是原先的生活阳台
窗户用了玻璃内部夹百叶的形式
保证隐私的同时也方便打理
后记
简约的空间设计通常非常含蓄
往往要做出以少胜多以简胜繁的效果
往往在将设计元素、色彩、照明、原材料
都简化到最少的程度后
对质感要求就一定会上升
最终达到舒适和回归生活的本身的效果
-
A sweet humble cottage
-
END
FF DESIGN
/
Copyright © 2018 FF DESIGN . All rights reserved.
硬装设计 | 软装设计与实现 | 全球家居采购
— 费 弗 空 间 —
FF Design
Fantasy 陈晓峰
+86-18121016268
Fantasy
:
Fantasy_M
:feishuai17764
上海市宝山区陆翔路1018弄
龙湖北
城天街1号楼23楼2327-2328室
客服
消息
收藏
下载
最近



































